Eladó Ház- házrész
Hirdetéskód: 9271582

Miskolc - OTP Ingatlanpont Iroda

128.00 m2
ALAPTERÜLET
4
SZOBASZÁM
nincs megadva
ÉPÍTÉS
nincs megadva
FŰTÉS
  • CSOK igénybe vehető nem
  • Tetőtér beépíthető nem
  • Építés éve 2026
  • Klíma nem
  • Szigetelt nem
Energetikai besorolás: Nincs meghatározva
A+++
A++
A+
A
B
C
D
E
F
G
H
I

Az ingatlan leírása

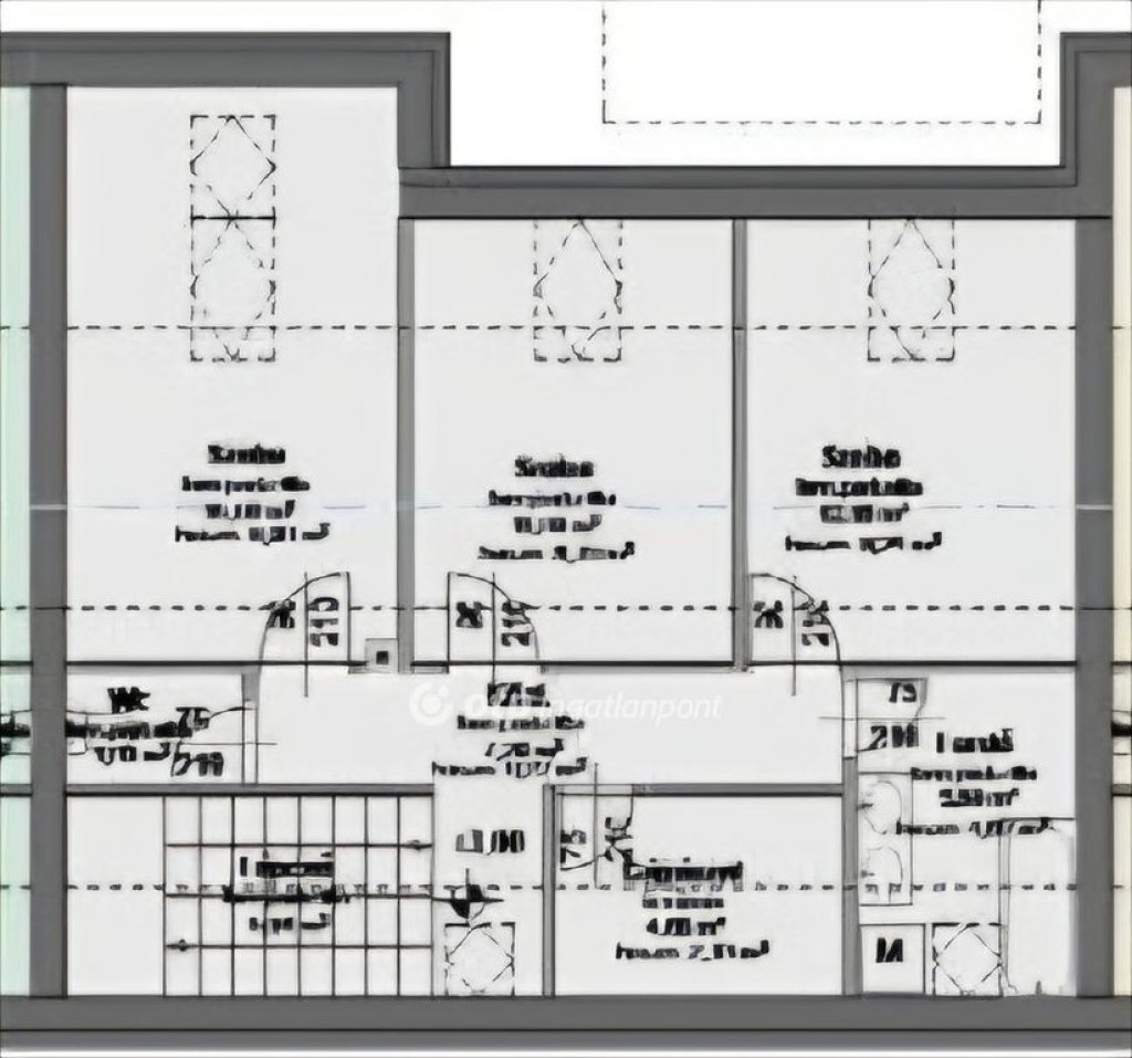
ÚJÉPÍTÉSŰ INGATLAN(OK) FELSŐZSOLCA KEDVELT RÉSZÉN! TERVEZETT ÁTADÁS: 2026 utolsó negyedéve! Eladó újépítésű 109 nm hasznos alapterületű tetőtér beépítéses, nappali + 3 hálószobás, mosókonyhás sorházas újépítésű ingatlan saját kertrésszel, nagy nappali kapcsolatos terasszal és garázzsal. A lakások tervezésénél és kivitelezésénél az építtető a jelenleg érvényben lévő magas hő-és hangszigetelési elvárasok, praktikus minőségi megoldások/trendek figyelembevételével a modern és környezettudatos megoldásokat ötvözi és egy környezetbarát sorházat fog megalkotni. A sorház 30 cm vastag vázkerámia falazattal készül 15 cm Dryvit hőszigeteléssel, a válaszfalak pedig Ytongból épülnek. Az ingatlan teljeskörű energia ellátását a modern kori tervezésnek megfelelően elektromos áramra tervezték, a villamos hálózat 3 fázisról 3 x 20 A-ről lesz megtáplálva. A lakások fűtését hőszivattyú által biztosított központi fűtésrendszer látja el. Alternatív lehetőségként a kialakított kéménynek köszönhetően a nappaliban kandalló elhelyezésére is van mód. A beépítésre kerülő hideg- és melegburkolatok, beltéri ajtók, kilincsek, szaniterek tekintetében a vevőknek lehetősége van egyéni igények alapján több felkínált lehetőség közül választani az adott műszaki tartalom határain belül, amennyiben az építés ezen szakaszáig vásárolnak. A sorháztól a távolsági busz megállója (Tiszaújváros, Ónod) a városi buszközlekedés megállója (Miskolc 7-es járat) 5 perces sétával, valamint az élelmiszerboltok (Coop abc), orvosi rendelők, bölcsőde, óvodák, iskolák, zeneiskola, sportiskola gyalogosan és autóval is könnyen megközelíthetők. Teljeskörű hitelügyintézéssel állunk ügyfeleink rendelkezésére! További információért és az ingatlan megtekintéséert várom megtisztelő hívását!

Térkép

A hirdető elérhetősége

Miskolc - OTP Ingatlanpont Iroda

dr. Rohács Andrea
+36 70 439