Eladó Ház- házrész
Hirdetéskód: 9305220

Eger Kertész utca 25 - OTP Ingatlanpont Iroda

Felújításhoz személyi kölcsönt keres? Kalkuláljon itt! →
99.00 m2
ALAPTERÜLET
3
SZOBASZÁM
nincs megadva
ÉPÍTÉS
nincs megadva
FŰTÉS
  • CSOK igénybe vehető nem
  • Tetőtér beépíthető nem
  • Építés éve 2025
  • Klíma nem
  • Szigetelt nem
Energetikai besorolás: Nincs meghatározva
A+++
A++
A+
A
B
C
D
E
F
G
H
I

Az MBH Bank személyi kölcsön ajánlata

Fizetett hirdetés
1 millió Ft
6 évre
20 585 Ft/hó
THM: 14.5%
Részletek →
2 millió Ft
6 évre
41 169 Ft/hó
THM: 14.5%
Részletek →
3 millió Ft
6 évre
61 754 Ft/hó
THM: 14.5%
Részletek →

A tájékoztatás nem teljes körű és nem minősül ajánlattételnek.

Az ingatlan leírása

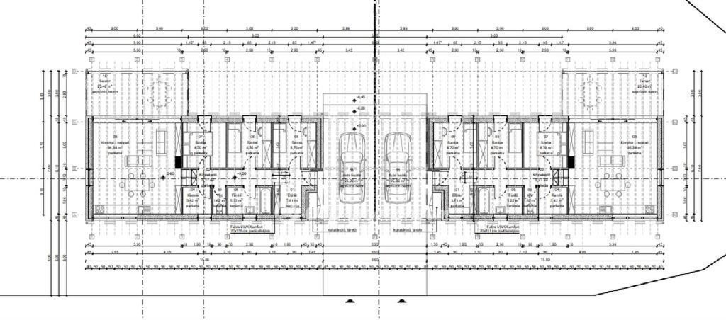
Heves megye, Felsőtárkány, Várhegy lakópark, igényes alapanyagokból kivitelezett, újépítésű, 98 m2-es ikerházrész, 1000 m2-es telekkel eladó. Az ingatlant amerikai konyhás nappali, három félszoba, kamra, fürdőszoba, WC, előszoba, panorámás terasz (20 m2) és gépkocsibeálló (26 m2) alkotja. Az építmény nem klasszikus ikerház, előnye, hogy a két rész közös falszakasszal nem rendelkezik, a gépkocsibeállónál érintkeznek. A tartószerkezet 15 cm-es szigeteléssel ellátott, 30 cm-es Leier téglákból épült, míg a válaszfalakhoz 10 cm-es Ytong blokkokat használtak. A hőszigetelt tető héjazata Bramac cserép. Egyedi, borovi fenyőből készült ablakait 3 rétegű üveggel látták el. A meleget, padlófűtésen keresztül Ariston hőszivattyús rendszer biztosítja. A nappaliban egy Midea típusú hőszivattyús klíma növeli a komfortérzetet. Kialakításának, méretének és elhelyezkedésének köszönhetően ideális otthona lehet akár többgyermekes családnak is. Felkeltették érdeklődését a leírtak? Egyeztessünk egy személyes megtekintés lehetőségéről! Ingatlanirodánk ügyvédi háttérrel, babaváró hitel, CSOK plusz, valamint kamatkedvezményes hitel ügyintézésével támogatja ügyfelei ingatlanvásárlását!

Térkép

A hirdető elérhetősége

Eger Kertész utca 25 - OTP Ingatlanpont Iroda

Bata Zoltán
+36 70 317