Eladó Ház- házrész
Hirdetéskód: 9213804
Eger Kertész utca 25 - OTP Ingatlanpont Iroda
Ez a hirdetés megfelelhet a FIX 3%-os programnak.
Tudj meg többet a részletekről itt.
165 m2
ALAPTERÜLET4
SZOBASZÁMnincs megadva
ÉPÍTÉSnincs megadva
FŰTÉS- CSOK igénybe vehető nem
- Tetőtér beépíthető nem
- Építés éve 1983
- Klíma nem
- Szigetelt nem
A+++
A++
A+
A
B
C
D
E
F
G
H
I
Az ingatlan leírása
Kizárólag az OTP Ingatlanpont kínálatában!
Felsőtárkányban, a Bükk hegység lábánál, Eger közvetlen közelében eladó egy kiváló állapotú, kétgenerációs családi ház, valamint egy külön bejáratú, apartmanként hasznosítható melléképület!
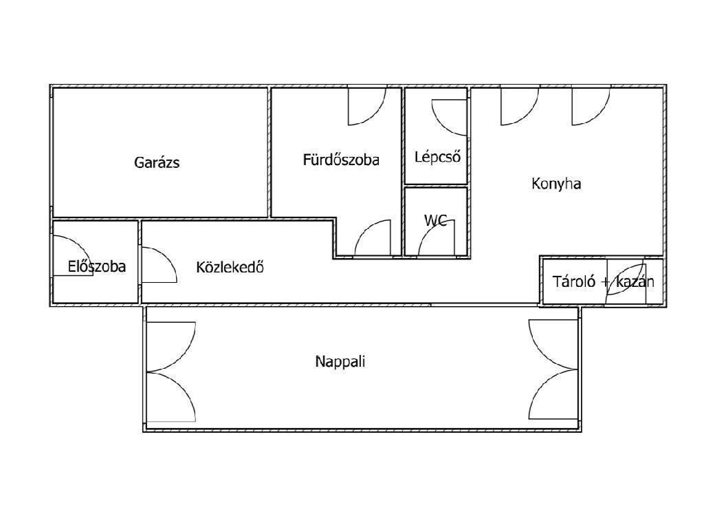
A 712 m2-es gondozott telken található egy 165 m2 főépület . A ház B30-as téglából épült, külső és mennyezeti hőszigeteléssel, bitumenes zsindelytetővel, valamint műanyag, hőszigetelt a kornak megfelelő nyílászárókkal rendelkezik.
Az épület fűtéséről gázkazán és a nappaliban található kandalló gondoskodik, a meleg vizet a földszinten villanybojler, a tetőtérben gázkazán biztosítja.
A földszinten tágas nappali, étkezős konyha, előszoba, gardróbos közlekedő, valamint kádas és zuhanyzós fürdőszoba, valamint egy garázs kapott helyet. A tetőtérbe monolit vasbeton lépcső vezet, ahol négy szoba, zuhanyzós fürdő és külön WC található. A ház alatt garázs és pince, az udvaron pedig ásott kút segíti a kert locsolását.
A térkövezett udvaron egy 117 m2-es melléképület található, amely két külön bejáratú, önálló fűtésű lakrészt tartalmaz. Az egyik lakrészben nappali, konyha, WC, két szoba és fürdő, a másikban teakonyha, két szoba és fürdő+WC található. Az épület Ytongból és téglából épült, zsindelyfedéssel, műanyag és fa nyílászárókkal, valamint külön mérőórákkal (víz, villany, gáz) rendelkezik.
A telken kialakításra került egy kemence, műhely, fatároló.
Az ingatlan rendszeresen karbantartott, statikailag kiváló állapotú, és azonnal költözhető.
Az OTP Ingatlanpont nemcsak az ingatlan értékesítésében segíti ügyfeleit, hanem
teljes körű, díjmentes pénzügyi és jogi hátteret biztosít az adásvétel teljes folyamatában.
Kollégáink segítenek a legkedvezőbb hitel- és támogatási lehetőségek kiválasztásában:
Falusi CSOK, CSOK Plusz, Babaváró, Otthonfelújítási támogatás és egyéb konstrukciók elérhetők.
Szükség esetén energetikai tanúsítvány, értékbecslés, földhivatali ügyintézés és ügyvédi közreműködés is rendelkezésre áll,
így az ügyintézés egy kézben, biztonságosan és gyorsan történik.
Kiváló választás nagycsaládosoknak, összeköltözőknek, vállalkozásra, akár falusi turizmusra, illetve vendégházként is ideális lehetőség.
?? Amennyiben hirdetés felkeltette érdeklődését, kérem forduljon hozzánk bizalommal ? segítünk álmai otthonát megtalálni!
Felsőtárkányban, a Bükk hegység lábánál, Eger közvetlen közelében eladó egy kiváló állapotú, kétgenerációs családi ház, valamint egy külön bejáratú, apartmanként hasznosítható melléképület!
A 712 m2-es gondozott telken található egy 165 m2 főépület . A ház B30-as téglából épült, külső és mennyezeti hőszigeteléssel, bitumenes zsindelytetővel, valamint műanyag, hőszigetelt a kornak megfelelő nyílászárókkal rendelkezik.
Az épület fűtéséről gázkazán és a nappaliban található kandalló gondoskodik, a meleg vizet a földszinten villanybojler, a tetőtérben gázkazán biztosítja.
A földszinten tágas nappali, étkezős konyha, előszoba, gardróbos közlekedő, valamint kádas és zuhanyzós fürdőszoba, valamint egy garázs kapott helyet. A tetőtérbe monolit vasbeton lépcső vezet, ahol négy szoba, zuhanyzós fürdő és külön WC található. A ház alatt garázs és pince, az udvaron pedig ásott kút segíti a kert locsolását.
A térkövezett udvaron egy 117 m2-es melléképület található, amely két külön bejáratú, önálló fűtésű lakrészt tartalmaz. Az egyik lakrészben nappali, konyha, WC, két szoba és fürdő, a másikban teakonyha, két szoba és fürdő+WC található. Az épület Ytongból és téglából épült, zsindelyfedéssel, műanyag és fa nyílászárókkal, valamint külön mérőórákkal (víz, villany, gáz) rendelkezik.
A telken kialakításra került egy kemence, műhely, fatároló.
Az ingatlan rendszeresen karbantartott, statikailag kiváló állapotú, és azonnal költözhető.
Az OTP Ingatlanpont nemcsak az ingatlan értékesítésében segíti ügyfeleit, hanem
teljes körű, díjmentes pénzügyi és jogi hátteret biztosít az adásvétel teljes folyamatában.
Kollégáink segítenek a legkedvezőbb hitel- és támogatási lehetőségek kiválasztásában:
Falusi CSOK, CSOK Plusz, Babaváró, Otthonfelújítási támogatás és egyéb konstrukciók elérhetők.
Szükség esetén energetikai tanúsítvány, értékbecslés, földhivatali ügyintézés és ügyvédi közreműködés is rendelkezésre áll,
így az ügyintézés egy kézben, biztonságosan és gyorsan történik.
Kiváló választás nagycsaládosoknak, összeköltözőknek, vállalkozásra, akár falusi turizmusra, illetve vendégházként is ideális lehetőség.
?? Amennyiben hirdetés felkeltette érdeklődését, kérem forduljon hozzánk bizalommal ? segítünk álmai otthonát megtalálni!