Eladó Ház- házrész
Hirdetéskód: 9309631

OTP Ingatlanpont Csongrád

Felújításhoz személyi kölcsönt keres? Kalkuláljon itt! →
115.00 m2
ALAPTERÜLET
4
SZOBASZÁM
nincs megadva
ÉPÍTÉS
Gáz (cirkó)
FŰTÉS
  • CSOK igénybe vehető nem
  • Tetőtér beépíthető nem
  • Építés éve 1983
  • Fűtés Gáz (cirkó)
  • Klíma nem
  • Szigetelt nem
Energetikai besorolás: Nincs meghatározva
A+++
A++
A+
A
B
C
D
E
F
G
H
I

Az MBH Bank személyi kölcsön ajánlata

Fizetett hirdetés
1 millió Ft
6 évre
20 585 Ft/hó
THM: 14.5%
Részletek →
2 millió Ft
6 évre
41 169 Ft/hó
THM: 14.5%
Részletek →
3 millió Ft
6 évre
61 754 Ft/hó
THM: 14.5%
Részletek →

A tájékoztatás nem teljes körű és nem minősül ajánlattételnek.

Az ingatlan leírása

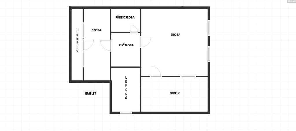
*** CSAK AZ OTP INGATLANPONT KÍNÁLATÁBAN! *** Eladó egy teljesen felújított, 115 nm-es ingatlan Felgyő egyik legcsendesebb utcájában, ideális otthon vagy befektetésnek! Ez a modern és kényelmes lakás három hálószobával, egy amerikai konyhás nappalival, egy elegáns fürdőszobával és WC-vel várja új tulajdonosát. A felújítás során minden részletre odafigyeltek: új burkolatok minden helyiségben, korszerűsített villany-, víz- és szennyvíz hálózat, műanyag nyílászárók szúnyoghálóval és redőnnyel ellátva, így biztosítva a nyugodt és energiatakarékos működést. A fűtés korszerű, turbó-gázkazánnal lett felszerelve, amely nemcsak a meleget, hanem a meleg vizet is biztosítja. A hőleadás padlófűtéssel és új radiátorokkal történik. A kellemes hőmérsékletet, 4 db 3,5 kw-os klíma biztosítja. A fürdőszoba és a WC frissen felújított, modern kialakítású, hogy otthonod még kényelmesebbé váljon. A konyha egyedi, asztalos által készített, beépített gépekkel ellátott konyhabútorral került kialakításra. Az ingatlanhoz tartozó telek alapterülete 1019 nm, melyen egy 20 nm-es zárható garázs, egy praktikus kamra és egy ól is helyet kapott, ideális tárolási lehetőség vagy hobbihelyiség számára. Ne hagyja ki ezt a kivételes lehetőséget! Keressen minket még ma, és legyen Öné ez a modern, jól karbantartott otthon. Legújabb szolgáltatásként ajánlom minden kedves ügyfelem részére az OTP Bank által közvetített Babaváró, CSOK PLUSZ, Otthon Start Hitelprogram vagy egyéb kölcsönök intézését. Számos konstrukció közül választhatnak. Irodáink Szentes, Petőfi utca 12. A buszmegálló felől, és Csongrád, Fő utca 54. szám alatt várja a személyes érdeklődőket. ***VÁLASSZUK KI EGYÜTT AZ ÖNNEK LEGMEGFELELŐBB AJÁNLATOT! BANKI SORBAN ÁLLÁS NÉLKÜL! Az adásvételi szerződés megkötéséhez igény szerint megbízható ügyvédi közreműködést biztosítunk, és segítséget nyújtunk az adásvételhez kapcsolódó ügyek intézésénél.

Térkép

A hirdető elérhetősége

OTP Ingatlanpont Csongrád

Vas Edit
+36 70 402