Eladó Ház- házrész
Hirdetéskód: 9211180
Albrecht Home Kft.
113 m2
ALAPTERÜLET4
SZOBASZÁMnincs megadva
ÉPÍTÉSnincs megadva
FŰTÉS- CSOK igénybe vehető nem
- Tetőtér beépíthető nem
- Építés éve 2020
- Klíma nem
- Szigetelt nem
A+++
A++
A+
A
B
C
D
E
F
G
H
I
Az ingatlan leírása
- EXKLUZÍV , MODERN OTTHON A LEGJOBB HELYEN !
-Eladó egy 2020-ban épült, új építésű családi otthon, mely tökéletes választás lehet azok számára, akik a modern, letisztult vonalakat és a napfényes tereket kedvelik.
Az ingatlan jellemzői:
Az ingatlan 120 négyzetméteres, tégla építésű .
A kertkapcsolatos nappaliból nyíló, udvarra néző kilátás különleges hangulatot áraszt, tökéletes helyet biztosítva a pihenésre és kikapcsolódásra.
Az ingatlanban a fűtésről és a hűtésről egyaránt gondoskodtak.
A teljes körű kényelmet hőszivattyú, kandalló és padlófűtés garantálja a hideg hónapokban, míg a forró nyári napokon a mennyezeti hűtés biztosítja az optimális hőmérsékletet.
Az ingatlan nem csak a magas színvonalú kényelmi funkciókkal tűnik ki, de elhelyezkedése is ideális.
Nyugodt, csendes környezetben található, mégis közel esik a városközponthoz, így könnyedén hozzáférhető minden fontos szolgáltatás.
Az otthon nem csupán a legújabb építési technológiával büszkélkedhet, de a belső terének elrendezése is a praktikum és esztétikum tökéletes ötvözete.
A hálószobák, a tágas nappali, az étkező és a modern felszereltségű konyha mind úgy lettek kialakítva, hogy maximalizálják az ingatlan napfényes jellegét, biztosítva ezzel egy meleg és barátságos hangulatot a leendő tulajdonosok számára.
Az ingatlan helyiségei:
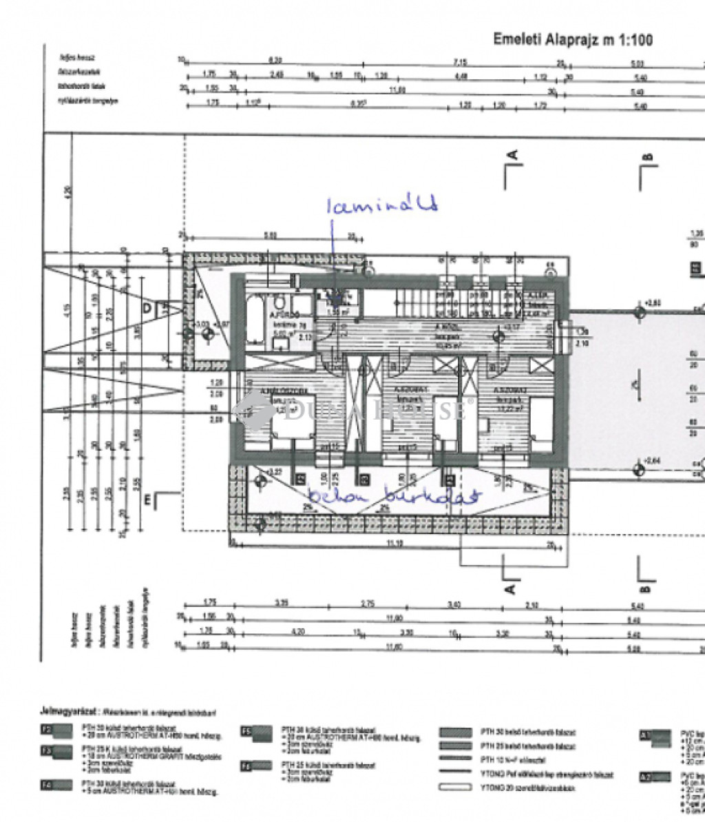
- 3 szoba
-Nagy amerikai konyhás nappali
- Fürdő + Wc egyben
- Közlekedő
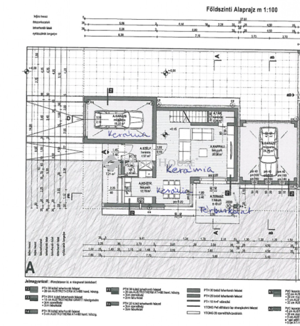
- Előszoba
- garázs
- kocsibeálló
- 2 tároló
- Terasz
Várjuk szeretettel azok jelentkezését, akik igényes otthonra vágynak, ahol a modern technológia és a kényelem harmonikus összhangban van.
Ne hagyja ki ezt a különleges lehetőséget, lépjen kapcsolatba velünk még ma, hogy megtekinthesse álmai otthonát!
Vásárolna, de nincs meg rá a megfelelő keret ?
Kollégám díjmentes, banksemleges hitelügyintézéssel áll rendelkezésére.
Amennyiben Irodánk által kínált CSALÁDI HÁZ vagy bármely, a kínálatunkban található LAKÁS, vagy TELEK felkeltette érdeklődését, hívjon a hét minden napján a megadott telefonszámon.
-Eladó egy 2020-ban épült, új építésű családi otthon, mely tökéletes választás lehet azok számára, akik a modern, letisztult vonalakat és a napfényes tereket kedvelik.
Az ingatlan jellemzői:
Az ingatlan 120 négyzetméteres, tégla építésű .
A kertkapcsolatos nappaliból nyíló, udvarra néző kilátás különleges hangulatot áraszt, tökéletes helyet biztosítva a pihenésre és kikapcsolódásra.
Az ingatlanban a fűtésről és a hűtésről egyaránt gondoskodtak.
A teljes körű kényelmet hőszivattyú, kandalló és padlófűtés garantálja a hideg hónapokban, míg a forró nyári napokon a mennyezeti hűtés biztosítja az optimális hőmérsékletet.
Az ingatlan nem csak a magas színvonalú kényelmi funkciókkal tűnik ki, de elhelyezkedése is ideális.
Nyugodt, csendes környezetben található, mégis közel esik a városközponthoz, így könnyedén hozzáférhető minden fontos szolgáltatás.
Az otthon nem csupán a legújabb építési technológiával büszkélkedhet, de a belső terének elrendezése is a praktikum és esztétikum tökéletes ötvözete.
A hálószobák, a tágas nappali, az étkező és a modern felszereltségű konyha mind úgy lettek kialakítva, hogy maximalizálják az ingatlan napfényes jellegét, biztosítva ezzel egy meleg és barátságos hangulatot a leendő tulajdonosok számára.
Az ingatlan helyiségei:
- 3 szoba
-Nagy amerikai konyhás nappali
- Fürdő + Wc egyben
- Közlekedő
- Előszoba
- garázs
- kocsibeálló
- 2 tároló
- Terasz
Várjuk szeretettel azok jelentkezését, akik igényes otthonra vágynak, ahol a modern technológia és a kényelem harmonikus összhangban van.
Ne hagyja ki ezt a különleges lehetőséget, lépjen kapcsolatba velünk még ma, hogy megtekinthesse álmai otthonát!
Vásárolna, de nincs meg rá a megfelelő keret ?
Kollégám díjmentes, banksemleges hitelügyintézéssel áll rendelkezésére.
Amennyiben Irodánk által kínált CSALÁDI HÁZ vagy bármely, a kínálatunkban található LAKÁS, vagy TELEK felkeltette érdeklődését, hívjon a hét minden napján a megadott telefonszámon.