Eladó Ház- házrész
Hirdetéskód: 9199247

CsornaIngatlan

83 m2
ALAPTERÜLET
2
SZOBASZÁM
Tégla
ÉPÍTÉS
Központi fűtés
FŰTÉS
  • Belső szintek 3
  • Kilátás Udvari
  • Ingatlan komfort Összkomfortos
  • Parkolási lehetőség Önálló garázs
  • Építés éve 1985
  • Fűtés Központi fűtés
  • Építőanyag Tégla
  • Erkély, terasz Terasz 28m2
  • Víz telken belül
  • Csatorna telken belül
  • Gáz telken belül
  • Villany telken belül
Energetikai besorolás: Nincs meghatározva
A+++
A++
A+
A
B
C
D
E
F
G
H
I

Az ingatlan leírása

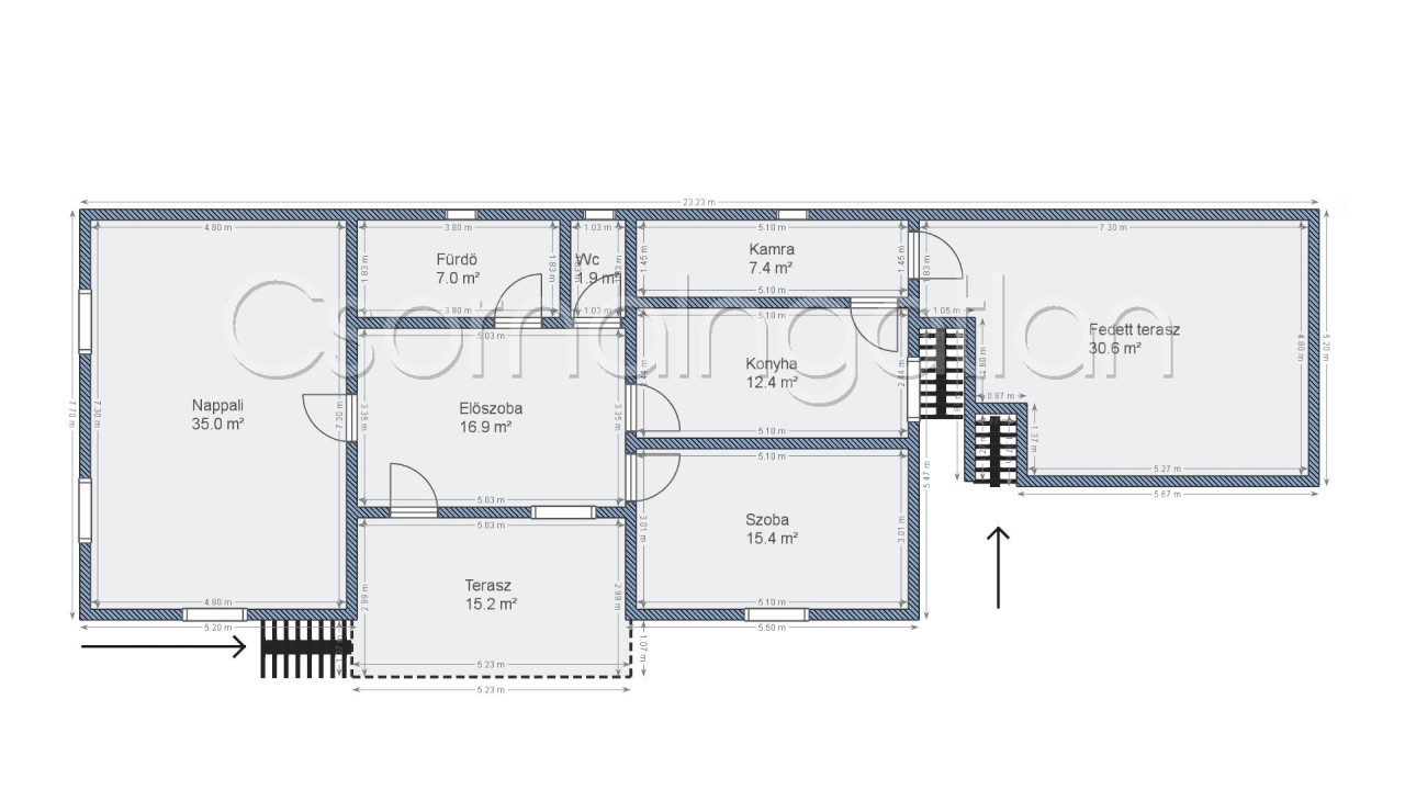
Farádon 1985-ben épült családi ház, tágas, fedett terasszal, 1216 m2-es telken eladó.


 


HELYISÉGEK


- 83 m2


- tágas, napfényes nappali


- hálószoba


- előszoba


- fürdőben kád és zuhanykabin, külön helyiségben a toalett


- konyha + kamra


- 2 bejárat


 


Terasz


- 28 m2


- járólapozott, fedett


- udvarra néző


 


Pince


- kb. 30 m2 (kamra, konyha, szoba alatt)


- udvarról nyíló bejárat


- járólapozott


 


Tetőtér


- beépíthető


- kb. 60 m2-es terület hasznosítható


- erkély


 


MŰSZAKI JELLEMZŐK


- 2015-ben teljes felújítás (új közművezetékek, burkolatok, belső nyílászárók, konyhabútor)


- új fa hőszigetelt nyílászárók, redőnnyel felszerelve


- beton alap és födém


- fűtés kombi gázkazánnal


- ipari áram


 


MELLÉKÉPÜLETEK


- garázs


- műhely


 


TELEK


- 1216 m2


- körbekerített, gondozott


- előkert


- fúrt kút


- gyümölcsfák, veteményes


 


FONTOS LEHET


- tehermentes


- egy tulajdonos


 


FARÁD


A kb. 1900 fős település Csornától 4 km-re, az M85-ös gyorsforgalmi út lehajtójánál fekszik.


- óvoda, általános iskola


- családorvosi szolgálat, gyógyszertár


- boltok, posta stb. helyben megtalálható


- falusi CSOK a településen igényelhető

Térkép

A hirdető elérhetősége

CsornaIngatlan

Katrinecz Julia
+36 20 501