Eladó Ház- házrész
Hirdetéskód: 9327426

CsornaIngatlan

Felújításhoz személyi kölcsönt keres? Kalkuláljon itt! →
FIX 3% Program

Ez a hirdetés megfelelhet a FIX 3%-os programnak.
Tudj meg többet a részletekről itt.

124.00 m2
ALAPTERÜLET
4
SZOBASZÁM
Tégla
ÉPÍTÉS
Központi fűtés
FŰTÉS
  • Belső szintek 2
  • Kilátás Udvari
  • Ingatlan komfort Összkomfortos
  • Fűtés Központi fűtés
  • Építőanyag Tégla
  • Víz telken belül
  • Csatorna telken belül
  • Gáz telken belül
  • Villany telken belül
Energetikai besorolás: Nincs meghatározva
A+++
A++
A+
A
B
C
D
E
F
G
H
I

Az MBH Bank személyi kölcsön ajánlata

Fizetett hirdetés
1 millió Ft
6 évre
20 585 Ft/hó
THM: 14.5%
Részletek →
2 millió Ft
6 évre
41 169 Ft/hó
THM: 14.5%
Részletek →
3 millió Ft
6 évre
61 754 Ft/hó
THM: 14.5%
Részletek →

A tájékoztatás nem teljes körű és nem minősül ajánlattételnek.

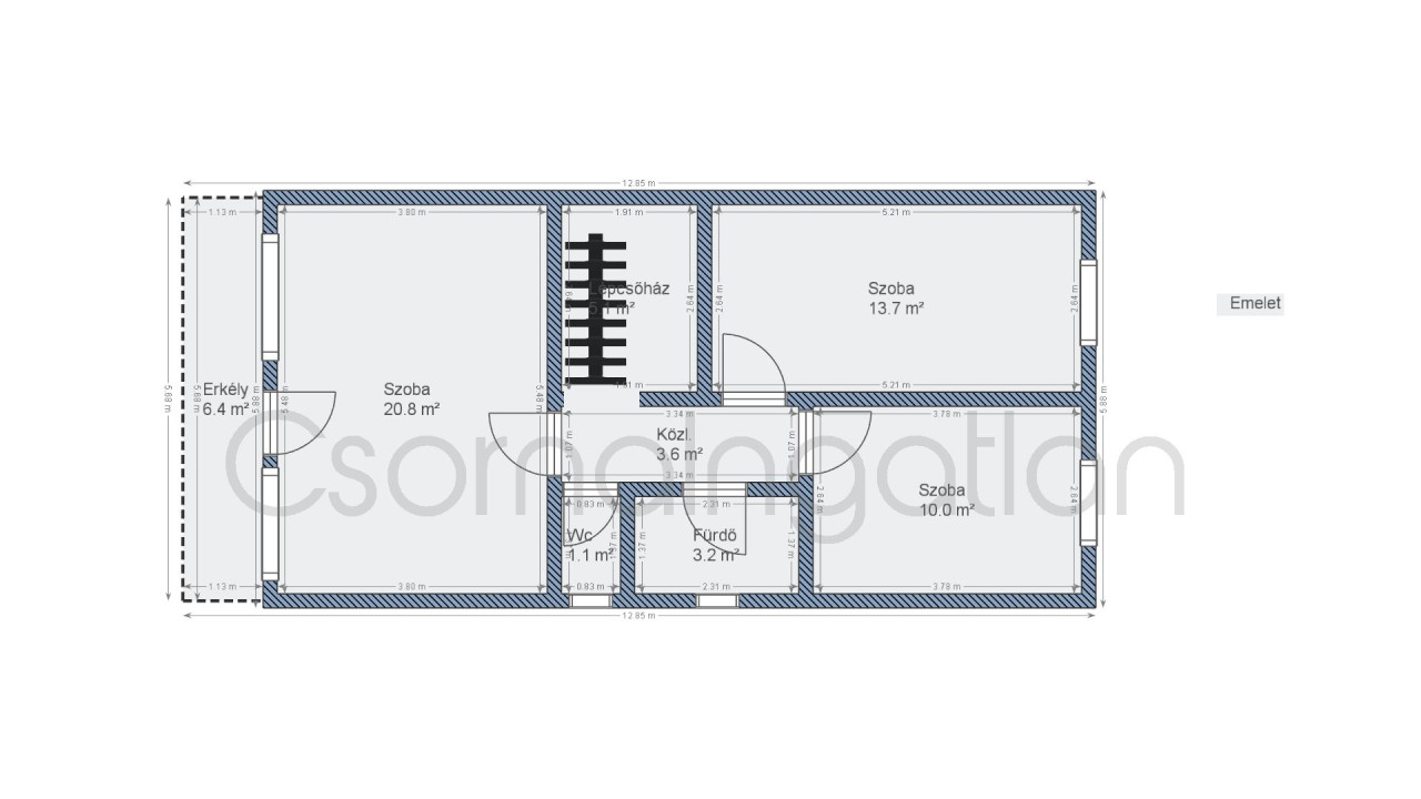
Az ingatlan leírása

Farádon 124 m2-es, kétszintes, 3 szoba nappalis ikerházrész eladó.


 


HELYISÉGEK:


Földszint:


- nappali


- konyha


- étkező


- kamra


- kazánház


- fürdőben zuhanyzó és toalett


- közlekedő


- terasz (utca és udvar felől is)


 


Emelet:


- 3 szoba


- fürdőben kád, külön helyiségben a toalett


- erkély


 


MŰSZAKI JELLEMZŐK:


- 1978-ban épült


- új hőszigetelt műanyag nyílászárók redőnnyel, szúnyoghálóval felszerelve


- a födém szigetelt


- új villany, víz és szennyvíz vezetékek


- ipari áram


- új lemeztető


- új gáz cirkó kazán, plusz meleg víz tároló


- cserépkályha


 


TELEK:


- 1764 m2-es osztatlan közös tulajdonú telek


-  3 saját garázs


- térkövezett kocsibejáró


- 3 db tároló (mindegyik 7,2 m2-es)


- fúrt kút


- előkert


 


EGYÉB:


- tehermentes


- 2 tulajdonos


 


FARÁD


A kb. 1900 fős település Csornától 4 km-re, az M85-ös gyorsforgalmi út lehajtójánál fekszik.


- óvoda, általános iskola


- családorvosi szolgálat, gyógyszertár


- boltok, posta stb. helyben megtalálható


- falusi CSOK a településen igényelhető

Térkép

Ingatlan adásvétel ügyvédi díja
310 050 Ft
a hirdetésben szereplő ár alapján
  • A vételár 0,45%-a
  • Szerződéscsomag teljeskörű képviselettel
  • Ingyenes tulajdoni lap ellenőrzés
  • Az ÁFA-t már tartalmazza
Érdekel az ajánlat →
A tájékoztatás nem teljes körű és nem minősül ajánlattételnek. Minimum díj: 150 000 Ft, maximum díj: 600 000 Ft. A díj kizárólag lakóingatlan adásvételére vonatkozik.

A hirdető elérhetősége

CsornaIngatlan

Katrinecz Julia
+36 20 501