Eladó Ház- házrész
Hirdetéskód: 9247204
OTP Ingatlanpont Csongrád
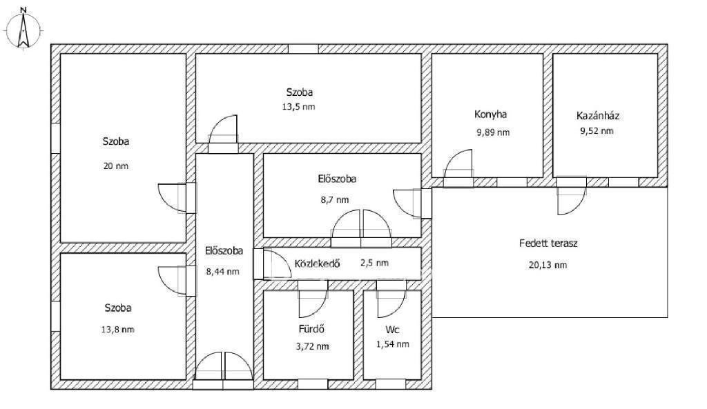
88.00 m2
ALAPTERÜLET3
SZOBASZÁMnincs megadva
ÉPÍTÉSnincs megadva
FŰTÉS- CSOK igénybe vehető nem
- Tetőtér beépíthető nem
- Építés éve 1975
- Klíma nem
- Szigetelt nem
A+++
A++
A+
A
B
C
D
E
F
G
H
I
Az ingatlan leírása
Eladásra kínálunk Csongrád-Csanád Vármegyében Fábiánsebestyénen egy 84 nm-es 3 szobás családi házat a központban, még is csendes környezetben. A ház 948 nm-es tágas telken található, tipikus kádár kocka ház, mely 1975-ben épült és 2020-ban felújításon esett át. Vegyes tüzelésű fűtés rendszer lett kialakítva, az összes nyílászáró ki lett cserélve és redőnyök is kerültek az ablakokra. A külső homlokzat szigeteléssel és nemesvakolattal lett ellátva. A vegyestüzelés mellett a házban cserépkályha is található a hidegebb napokra. Különálló wc, fürdőszoba, 3 szoba, konyha, kazánház, melléképület, fedett terasz és gondozott kert tartozik a házhoz. Közelben óvoda, iskola orvosirendelő, boltok megtalálhatóak.
Amennyiben az OTP Ingatlanpont kínálatából választ, számíthat szakmai támogatásunkra a teljes vételi folyamat során az adásvételi szerződés megkötésétől a hitel-ügyintézésen át az ingatlan átadásáig. Az OTP Ingatlanpont kedvezményes pénzügyi konstrukciókkal áll ügyfelei rendelkezésére, és VIP-szolgáltatást nyújt az OTP-hiteltermékek , valamint CSOK-ügyintézésben. Kedvező hitelajánlatokkal (BABAVÁRÓ hitel, piaci hitel, és szabadfelhasználású hitel) várjuk jelentkezését. Számos konstrukció közül választhatnak. Irodáink Szentes, Petőfi utca 12. A buszmegálló felől, és Csongrád, Fő utca 54. szám alatt várja a személyes érdeklődőket. ***VÁLASSZUK KI EGYÜTT AZ ÖNNEK LEGMEGFELELŐBB AJÁNLATOT! BANKI SORBAN ÁLLÁS NÉLKÜL! ***
Amennyiben az OTP Ingatlanpont kínálatából választ, számíthat szakmai támogatásunkra a teljes vételi folyamat során az adásvételi szerződés megkötésétől a hitel-ügyintézésen át az ingatlan átadásáig. Az OTP Ingatlanpont kedvezményes pénzügyi konstrukciókkal áll ügyfelei rendelkezésére, és VIP-szolgáltatást nyújt az OTP-hiteltermékek , valamint CSOK-ügyintézésben. Kedvező hitelajánlatokkal (BABAVÁRÓ hitel, piaci hitel, és szabadfelhasználású hitel) várjuk jelentkezését. Számos konstrukció közül választhatnak. Irodáink Szentes, Petőfi utca 12. A buszmegálló felől, és Csongrád, Fő utca 54. szám alatt várja a személyes érdeklődőket. ***VÁLASSZUK KI EGYÜTT AZ ÖNNEK LEGMEGFELELŐBB AJÁNLATOT! BANKI SORBAN ÁLLÁS NÉLKÜL! ***