Eladó Ház- házrész
Hirdetéskód: 9313037
OTP Ingatlanpont Csongrád
Felújításhoz személyi kölcsönt keres? Kalkuláljon itt! →79.00 m2
ALAPTERÜLET2
SZOBASZÁMnincs megadva
ÉPÍTÉSGáz (héra)
FŰTÉS- CSOK igénybe vehető nem
- Tetőtér beépíthető nem
- Építés éve 1980
- Fűtés Gáz (héra)
- Klíma nem
- Szigetelt nem
A+++
A++
A+
A
B
C
D
E
F
G
H
I
Az ingatlan leírása
Csak az OTP Ingatlanpont kínálatában!!!
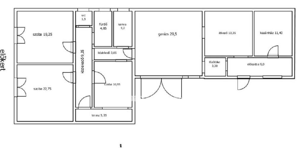
Eladó 79m2-es jó szerkezeti állapotú téglaház Csongrád-Csanád vármegyében, Fábiánsebestyén csendes, nyugodt utcájában. Az ingatlan ideális választás mindazok számára, akik vidéki környezetben, mégis jól ellátott településen szeretnének élni.
A ház belső elrendezése praktikus és élhető: két és fél szoba, fürdőszoba, külön WC és kamra áll rendelkezésre. A bejárat előtt egy hangulatos, fedett terasz kapott helyet, amely esős időben is kényelmes érkezést biztosít. A konyha külön épületrészben található, amely az udvarról közelíthető meg, és egy tágas előszobával, valamint étkezővel egészül ki. Itt kapott helyet a fűtésről gondoskodó gáz- és vegyes tüzelésű kazán is.
A 700 m2-es telek rendezett, a ház mögött két autó számára alkalmas garázs található. A telek végében jelenleg ólak és tárolók állnak, amelyek igény szerint könnyen elbonthatók, így a terület további lehetőségeket kínál.
Az ingatlan teljes közművel ellátott, a melegvizet kedvezményes áramról működő villanybojler biztosítja. A villamos hálózat 3x10A teljesítményű, valamint ipari áram is be van vezetve, ami külön előnyt jelenthet.
A település jól felszerelt: óvoda, iskola, gyógyszertár, üzletek és cukrászda is megtalálható, így minden adott a kényelmes mindennapokhoz. Szentes autóval rövid idő alatt elérhető, de a tömegközlekedés is rendszeres.
Az OTP Bankcsoport teljes körű ügyintézéssel segíti az adásvételt, legyen szó finanszírozásról vagy jogi háttérről. Kedvezményes hitellehetőségek, Babaváró, CSOK Plusz és egyéb konstrukciók is elérhetők, személyre szabott ügyintézéssel.
Irodáink Szentesen a Petőfi utca 12. szám alatt, valamint Csongrádon a Fő utca 54. szám alatt várják a személyes érdeklődőket.
Válasszuk ki együtt az Ön számára legmegfelelőbb ingatlant ? banki sorban állás nélkül!
Eladó 79m2-es jó szerkezeti állapotú téglaház Csongrád-Csanád vármegyében, Fábiánsebestyén csendes, nyugodt utcájában. Az ingatlan ideális választás mindazok számára, akik vidéki környezetben, mégis jól ellátott településen szeretnének élni.
A ház belső elrendezése praktikus és élhető: két és fél szoba, fürdőszoba, külön WC és kamra áll rendelkezésre. A bejárat előtt egy hangulatos, fedett terasz kapott helyet, amely esős időben is kényelmes érkezést biztosít. A konyha külön épületrészben található, amely az udvarról közelíthető meg, és egy tágas előszobával, valamint étkezővel egészül ki. Itt kapott helyet a fűtésről gondoskodó gáz- és vegyes tüzelésű kazán is.
A 700 m2-es telek rendezett, a ház mögött két autó számára alkalmas garázs található. A telek végében jelenleg ólak és tárolók állnak, amelyek igény szerint könnyen elbonthatók, így a terület további lehetőségeket kínál.
Az ingatlan teljes közművel ellátott, a melegvizet kedvezményes áramról működő villanybojler biztosítja. A villamos hálózat 3x10A teljesítményű, valamint ipari áram is be van vezetve, ami külön előnyt jelenthet.
A település jól felszerelt: óvoda, iskola, gyógyszertár, üzletek és cukrászda is megtalálható, így minden adott a kényelmes mindennapokhoz. Szentes autóval rövid idő alatt elérhető, de a tömegközlekedés is rendszeres.
Az OTP Bankcsoport teljes körű ügyintézéssel segíti az adásvételt, legyen szó finanszírozásról vagy jogi háttérről. Kedvezményes hitellehetőségek, Babaváró, CSOK Plusz és egyéb konstrukciók is elérhetők, személyre szabott ügyintézéssel.
Irodáink Szentesen a Petőfi utca 12. szám alatt, valamint Csongrádon a Fő utca 54. szám alatt várják a személyes érdeklődőket.
Válasszuk ki együtt az Ön számára legmegfelelőbb ingatlant ? banki sorban állás nélkül!