Eladó Ház- házrész
Hirdetéskód: 9294142

-

Felújításhoz személyi kölcsönt keres? Kalkuláljon itt! →
211.00 m2
ALAPTERÜLET
6
SZOBASZÁM
Tégla
ÉPÍTÉS
Hőszivattyú
FŰTÉS
  • Belső szintek 2
  • Tetőtér beépíthető nem
  • Ingatlan komfort Duplakomfortos
  • Parkolási lehetőség Terem garázs
  • Építés éve 2023
  • Fűtés Hőszivattyú
  • Építőanyag Tégla
  • Szigetelt igen
  • Bútorozott igen
  • Akadálymentesített igen
  • Víz telken belül
  • Csatorna telken belül
  • Gáz nincs
  • Villany telken belül

Energetikai besorolás: B

A+++
A++
A+
A
B
C
D
E
F
G
H
I

Az MBH Bank személyi kölcsön ajánlata

Fizetett hirdetés
1 millió Ft
6 évre
20 585 Ft/hó
THM: 14.5%
Részletek →
2 millió Ft
6 évre
41 169 Ft/hó
THM: 14.5%
Részletek →
3 millió Ft
6 évre
61 754 Ft/hó
THM: 14.5%
Részletek →

A tájékoztatás nem teljes körű és nem minősül ajánlattételnek.

Az ingatlan leírása

2026-os év indítással , kedvező áron kínáljuk Önnek ezt az egyedi kialakítású ingatlant.

A NYUGALOM SZIGETÉT ITT MEGTALÁLHATJA !
Alacsony rezsi " H" tarifás áram elszámolás -hőszivattyú!

Fejér- vármegyében, Etyek-Botpusztán kínáljuk eladásra ezt az egyedi stílusú, kétszintes, házi lifttel rendelkező duplagarázsos, nagy telkes családi kúriát Ügyfeleinknek.

XI-XII. KERÜLETBEN KISEBB LAKÁS BESZÁMITÁSA IS EGYEZTETÉSSEL MEGOLDHATÓ.
(egyeztetést követően más kerület is szóba jöhet)

Mind kívülről mind belülről stíluskommunikátor által megálmodott kialakítás, melyet az angol György korabeli stílus ihletett. Kúria jellegű családi ház.

A telek fekvésénél és elhelyezkedésénél fogva örök panorámát biztosít tulajdonosainak a
budai hegyekre.A telek hátsó része intimitást biztosít a lakóinak.

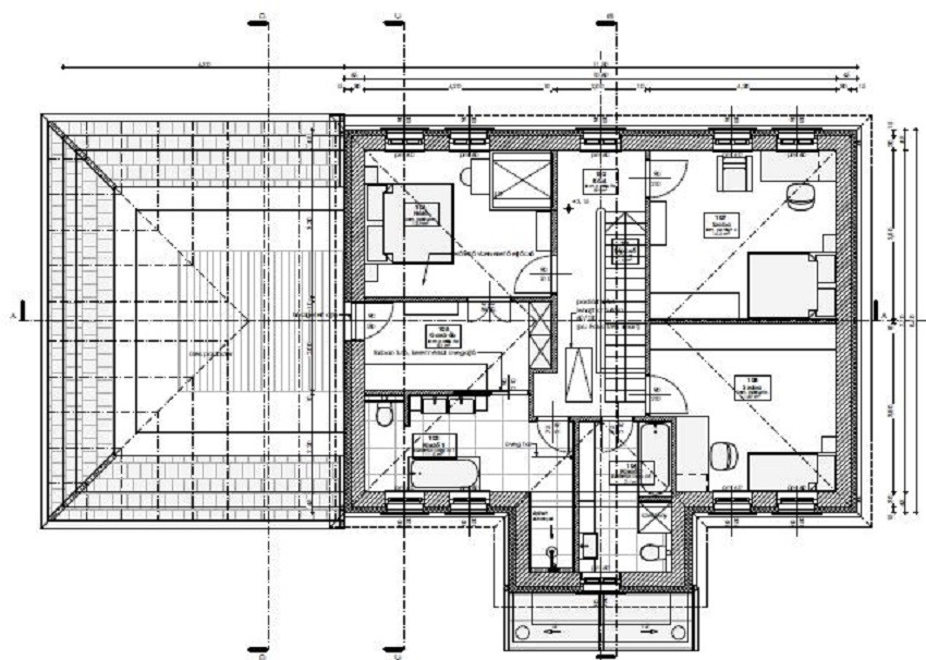
A 6 szobás ház a telek központi részén helyezkedik el, elegáns előkerttel és mind pihenésre,
mind játékra kiválóan alkalmas hátsó, 2 oldalról fákkal védett kerttel rendelkezik. A kert
adottságai a jövőben számos fejlesztést (medence, jacuzzi, szauna,...) tesznek lehetővé.

Telek mérete: 1870 m2
Építés éve: 2023
Energetika : BB
Földszint : kandallós nappali, TV szoba, közlekedő, lépcsőfeljáró, vendég WC, konyha,
étkező, előtér, oldalsó tárolóhelyiségek, 2 autó számára 50 nm-es fűthető garázs , gépészeti
helyiség mosókonyhával, kamra. 50 nm -es hátsó terasz

Emelet: 2 tágas fürdőszoba wc-vel, járható gardróbszoba, 3 hálószoba, közlekedő. A
gardróbból a garázs tetőterében kialakított 15 nm hasznos alapterületű praktikus, pakolható
tárolóba juthatunk.

A házban szúnyoghálós 3 rétegű üveggel szerelt külső nyílászárók, magas minőségű
burkolatok, csaptelepek, világító testek, a konyhában kiváló minőségű gépek találhatóak
(AEG). A felső szinten minden szobán távirányítású redőnyök szolgálják a kényelmet.
Gépészet hűtés/fűtés: Hőszivattyú (LG - 16Kw-os - monoblokkos).

Mennyezet hűtés/fűtés és padló fűtés. Helységenként távvezérelhető (Okos/programozható) termosztátokkal.

A "H"-tarifás mérőóra kiépítve és beüzemelve a hőszivattyúhoz. Ennél a háznál kedvező rezsiköltséggel számolhat.

A ház helyiségeinek ideális levegőjéről egy hővisszanyerős szellőztető rendszer
gondoskodik.A tervező harmonikus, meleg színekkel valamint funkcionális kialakításokkal tette lakhatóvá és igazán igényessé a házat.

A bútorok az elegáns, letisztult stílust képviselik, igazodva a ház enteriőrjéhez.
Aki belép a házba egy csipetnyi Angliát kap, annak minden bájával, és a mai igényekre szabott
kényelemmel.

Extrák: belső lift, riasztó, külső kamerarendszer, automata garázs és bejárati kapuzat,
kandalló, több körös automata kerti öntözőrendszer (fúrt kútról üzemel).

MEGKÖZELÍTÉSE,ELHELYEZKEDÉSE:
Etyek Budapesttől nyugati irányban az M1 autópályán autózva Pest megye határán a
fővárostól mindössze 26 km-re található! Kiváló busz közlekedés, 30 percenként induló járattal juthatunk Budapest Kelenföldi pályaudvarra, ahol a M4 metróval és számos Bkk.járattal a főváros bármely pontját könnyen elérhetjük.

A településen szinte minden megtalálható, ami egy család számára fontos lehet: óvoda, iskola,
művészeti iskola a gyerekeknek, orvos, gyógyszertár, posta és a bevásárláshoz egy termelői
piac is. A budaörsi bevásárló központok 15 perc alatt elérhetőek autóval.

A település külterületén horgásztó található, ami a környék kirándulóhelyeit gazdagítja. A
szőlőhegyek lankáin túl a Korda filmstúdiót találjuk. Évente néhány alkalommal bor- és
művészeti fesztivál is csábítja az ide látogatókat.
Az ingatlan lokációja egyszerre nyújtja az otthon nyugalmát és csendet valamint a főváros
közelségét.

Ha egy igazi otthonra vágyik, ha szeretné, hogy minden napja úgy teljen a teraszon ülve egy
pohár borral, mintha nyaralna, ha egy igazán egyedi házat szeretne, mindezt megkaphatja
ebben az ingatlanban!

Hívjon- és rövid egyeztetést követően mutatjuk Önnek ezt a kiváló ingatlant.

Térkép

Ingatlan adásvétel ügyvédi díja
600 000 Ft
a hirdetésben szereplő ár alapján
  • A vételár 0,45%-a
  • Szerződéscsomag teljeskörű képviselettel
  • Ingyenes tulajdoni lap ellenőrzés
  • Az ÁFA-t már tartalmazza
Érdekel az ajánlat →
A tájékoztatás nem teljes körű és nem minősül ajánlattételnek. Minimum díj: 150 000 Ft, maximum díj: 600 000 Ft. A díj kizárólag lakóingatlan adásvételére vonatkozik.

A hirdető elérhetősége

Sárkány Ingatlan

+36 20 585