Eladó Ház- házrész
Hirdetéskód: 9260757

Szabó Rita

122.00 m2
ALAPTERÜLET
4
SZOBASZÁM
Tégla
ÉPÍTÉS
Hőszivattyú
FŰTÉS
  • Belső szintek 1
  • Kilátás Kertre néző
  • Ingatlan komfort Összkomfortos
  • Parkolási lehetőség Önálló garázs
  • Építés éve 2026
  • Fűtés Hőszivattyú
  • Építőanyag Tégla
  • Erkély, terasz Terasz 32.00m2
  • Szigetelt igen
  • Bútorozott nem
  • Víz telken belül
  • Csatorna telken belül
  • Villany telken belül
Energetikai besorolás: Nincs meghatározva
A+++
A++
A+
A
B
C
D
E
F
G
H
I

Az ingatlan leírása

Hivatkozzon erre, kód: 5095SZR


- ÚJ ÉPÍTÉSŰ ÖNÁLLÓ HÁZ


- CSENDES, MADÁRCSICSERGŐS KÖRNYEZET


- NAPPALI + 3 SZOBA, 1 GK-S GARÁZS, NAGY TERASZ


- HŐSZIVATTYÚS FŰTÉS


- AJÁNDÉK REJTETT REDŐNY, "H" TARIFA ELŐKÉSZÍTÉS


Érd Dombosváros részén csendes, madárcsicsergős környezetben a Fundoklia-völgy szomszédságában 1086m2-es telken nappali + 3 szobás + 1 gk-s garázs, összesen nettó 122.32m2-es (teraszok felével), új építésű önálló családi ház leköthető igény szerinti befejezéssel.


Várható átadás: 2026. augusztus.


Megbízható beruházó, számos megtekinthető referencia!


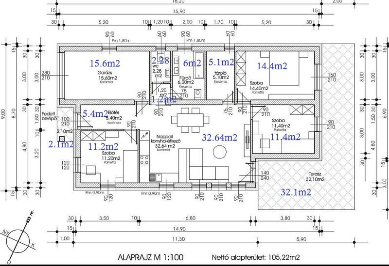
Az ingatlan felosztása a következő (nettó 89.62m2 lakótér + garázs + teraszok): elő - terasz (2.1m2), előtér (5.4m2), nappali - konyha - étkező (32.64m2), közlekedő (1.2m2), fürdőszoba + wc (6m2), wc (2.28m2), tároló / gardrób (5.1m2), 3 szoba (11.2m2, 11.4m2, 14.4m2), garázs (15.6m2), terasz (32.1m2).


Szerkezeti leírás: Beton alap. Tégla főfalak + 15cm dryvit szigetelés. Ytong válaszfalak. A külső nyílászárók műanyag szerkezetűek, 3 rétegű 6 légkamrás, fokozott hőszigetelésű üvegezéssel ellátva, rejtett redőnnyel szerelve. A belső nyílászárók dekorfóliás ajtók. Fa födém szigeteléssel. Cserép fedésű tető.


Az igény szerinti befejezésnek köszönhetően a hideg-meleg burkolatok 6000Ft / m2 árig, a beltéri ajtók 60.000Ft / db. áron választhatóak.


Fűtés: Az ingatlan fűtését 10Kw-os hőszivattyús rendszer látja el, minden helyiségben padlófűtésen keresztül.


Parkolás: 1 gépkocsi számára alkalmas garázsban lehetséges, valamint saját udvaron belül fedetlen-felszíni beálló áll rendelkezésre.


Extrák: rejtett redőny, "H" tarifa előkészítés, riasztó előkészítés, klíma előkészítés, elektromos garázsajtó.


Megközelíthetőség és infrastruktúra: Az ingatlan tömegközlekedéstől kiesőbb területen helyezkedik el, ezért legfőképp autóval rendelkezőknek ajánljuk! Gépkocsival óvoda, iskola, gyógyszertár, bevásárlási lehetőségek, orvosi rendelők 10 perc alatt elérhetők!


További hasonló ingatlanok találhatók még a kínálatunkban!


Szüksége van hitelre? SEGÍTÜNK!


Bankfüggetlen hitel tanácsadónk díjmentesen áll az Ön rendelkezésére! Keressen bizalommal!


A hirdetésben szereplő adatok, információk, képek, alaprajzok stb... tájékoztató jellegűek! Irodánk az esetleges elírásokért felelősséget nem tud vállalni!  


Tájékoztatjuk a Tisztelt Érdeklődőket, hogy az ingatlan hirdetésében szereplő telefonszám felhívásával Önök hozzájárulnak személyes adataik (név, telefonszám), a hirdetést feladó -Otthonplusz.hu Kft. - által a bizalmas kezeléshez és nyilvántartáshoz. 

Térkép

A hirdető elérhetősége

Otthon Plusz Ingatlanközvetítő Iroda

Szabó Rita
+36 20 953