Eladó Ház- házrész
Hirdetéskód: 9315035
OTP Ingatlanpont - Budapest IX. ker., Üllői út 21.
Felújításhoz személyi kölcsönt keres? Kalkuláljon itt! →179.00 m2
ALAPTERÜLET5
SZOBASZÁMnincs megadva
ÉPÍTÉSGáz (cirkó)
FŰTÉS- CSOK igénybe vehető nem
- Tetőtér beépíthető nem
- Építés éve 2004
- Fűtés Gáz (cirkó)
- Klíma nem
- Szigetelt nem
A+++
A++
A+
A
B
C
D
E
F
G
H
I
Az ingatlan leírása
Különleges otthon Érd Parkváros és Törökbálint határán, panorámás kilátás, medence, privát kert, kivételes adottságokkal!
CSOK+-ra alkalmas!
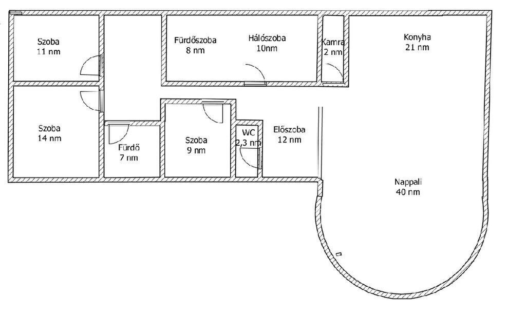
Eladó egy egyedi hangulatú, kivételes adottságokkal rendelkező, háromszintes, 179 nm-es, szigetelt családi ház, 836 nm-es telken, Érd Parkváros és Törökbálint határán.
A ház összesen 5 szobával rendelkezik, és olyan környezetben helyezkedik el, ahol a természet közelsége és a városi kényelem harmonikusan találkozik.
Az utca frontja Törökbálintra néz, ahol már nincsenek lakóépületek!
így biztosított a nyugalom és a zavartalan panoráma.
Főbb jellemzők:
Háromszintes kialakítás: az utcafronti szinten található a kétállásos garázs, fölötte pedig egy kb. 30 nm-es, napfényes terasz.
A fél szinten mosókonyha, dolgozószoba és külön nappali kapott helyet, ideális vendégeknek, munkához vagy pihenéshez.
Fő lakószint: tágas, fa kupolás nappali, étkező és konyha egy légtérben, mégis jól elkülönülő hálószobákkal.
A természetes fény és a minőségi anyaghasználat különleges atmoszférát teremt.
Két nagy terasz: az egyik a garázs fölött, az utca irányába néz, tökéletes reggeli kávézáshoz vagy naplementéhez.
A másik a hátsó, kertre néző terasz, amely közvetlen kapcsolatban van a kültéri élettel.
Privát kert és medence: a ház mögötti teraszról elérhető a gondozott, intim hangulatú kert, ahol egy épített, lépcsős, 6×3 méteres medence található, ideális helyszín a nyári pihenéshez.
További előnyök: Kiváló elhelyezkedés, közel Törökbálint központjához, Érdhez és az M7-es autópályához.
Csendes környék, természetközeli életérzés.
Stílusos kialakítás, praktikus térszervezés, kiváló minőségű anyagok.
Ez az otthon ideális választás azoknak, akik nem sablonos házat keresnek, hanem egy valóban egyedi, értékálló ingatlant különleges környezetben.
Az OTP Bankcsoport teljes körű ügyintézéssel áll az eladók és a vevők rendelkezésére! A kínálatunkból választott ingatlan finanszírozásához kedvezményes hitel konstrukciókat kínálunk. Az adásvételi szerződés megkötéséhez igény szerint megbízható ügyvédi közreműködést biztosítunk, és segítséget nyújtunk az adásvételhez kapcsolódó ügyek intézésében. További információért vagy megtekintéssel kapcsolatban hívjon a hét bármely napján
CSOK+-ra alkalmas!
Eladó egy egyedi hangulatú, kivételes adottságokkal rendelkező, háromszintes, 179 nm-es, szigetelt családi ház, 836 nm-es telken, Érd Parkváros és Törökbálint határán.
A ház összesen 5 szobával rendelkezik, és olyan környezetben helyezkedik el, ahol a természet közelsége és a városi kényelem harmonikusan találkozik.
Az utca frontja Törökbálintra néz, ahol már nincsenek lakóépületek!
így biztosított a nyugalom és a zavartalan panoráma.
Főbb jellemzők:
Háromszintes kialakítás: az utcafronti szinten található a kétállásos garázs, fölötte pedig egy kb. 30 nm-es, napfényes terasz.
A fél szinten mosókonyha, dolgozószoba és külön nappali kapott helyet, ideális vendégeknek, munkához vagy pihenéshez.
Fő lakószint: tágas, fa kupolás nappali, étkező és konyha egy légtérben, mégis jól elkülönülő hálószobákkal.
A természetes fény és a minőségi anyaghasználat különleges atmoszférát teremt.
Két nagy terasz: az egyik a garázs fölött, az utca irányába néz, tökéletes reggeli kávézáshoz vagy naplementéhez.
A másik a hátsó, kertre néző terasz, amely közvetlen kapcsolatban van a kültéri élettel.
Privát kert és medence: a ház mögötti teraszról elérhető a gondozott, intim hangulatú kert, ahol egy épített, lépcsős, 6×3 méteres medence található, ideális helyszín a nyári pihenéshez.
További előnyök: Kiváló elhelyezkedés, közel Törökbálint központjához, Érdhez és az M7-es autópályához.
Csendes környék, természetközeli életérzés.
Stílusos kialakítás, praktikus térszervezés, kiváló minőségű anyagok.
Ez az otthon ideális választás azoknak, akik nem sablonos házat keresnek, hanem egy valóban egyedi, értékálló ingatlant különleges környezetben.
Az OTP Bankcsoport teljes körű ügyintézéssel áll az eladók és a vevők rendelkezésére! A kínálatunkból választott ingatlan finanszírozásához kedvezményes hitel konstrukciókat kínálunk. Az adásvételi szerződés megkötéséhez igény szerint megbízható ügyvédi közreműködést biztosítunk, és segítséget nyújtunk az adásvételhez kapcsolódó ügyek intézésében. További információért vagy megtekintéssel kapcsolatban hívjon a hét bármely napján