Eladó Ház- házrész
Hirdetéskód: 9320929

Fővállalkozó Balla és Balla Kft

Felújításhoz személyi kölcsönt keres? Kalkuláljon itt! →
162.00 m2
ALAPTERÜLET
3
SZOBASZÁM
nincs megadva
ÉPÍTÉS
nincs megadva
FŰTÉS
  • CSOK igénybe vehető nem
  • Tetőtér beépíthető nem
  • Építés éve 1985
  • Klíma nem
  • Szigetelt nem
Energetikai besorolás: Nincs meghatározva
A+++
A++
A+
A
B
C
D
E
F
G
H
I

Az MBH Bank személyi kölcsön ajánlata

Fizetett hirdetés
1 millió Ft
6 évre
20 585 Ft/hó
THM: 14.5%
Részletek →
2 millió Ft
6 évre
41 169 Ft/hó
THM: 14.5%
Részletek →
3 millió Ft
6 évre
61 754 Ft/hó
THM: 14.5%
Részletek →

A tájékoztatás nem teljes körű és nem minősül ajánlattételnek.

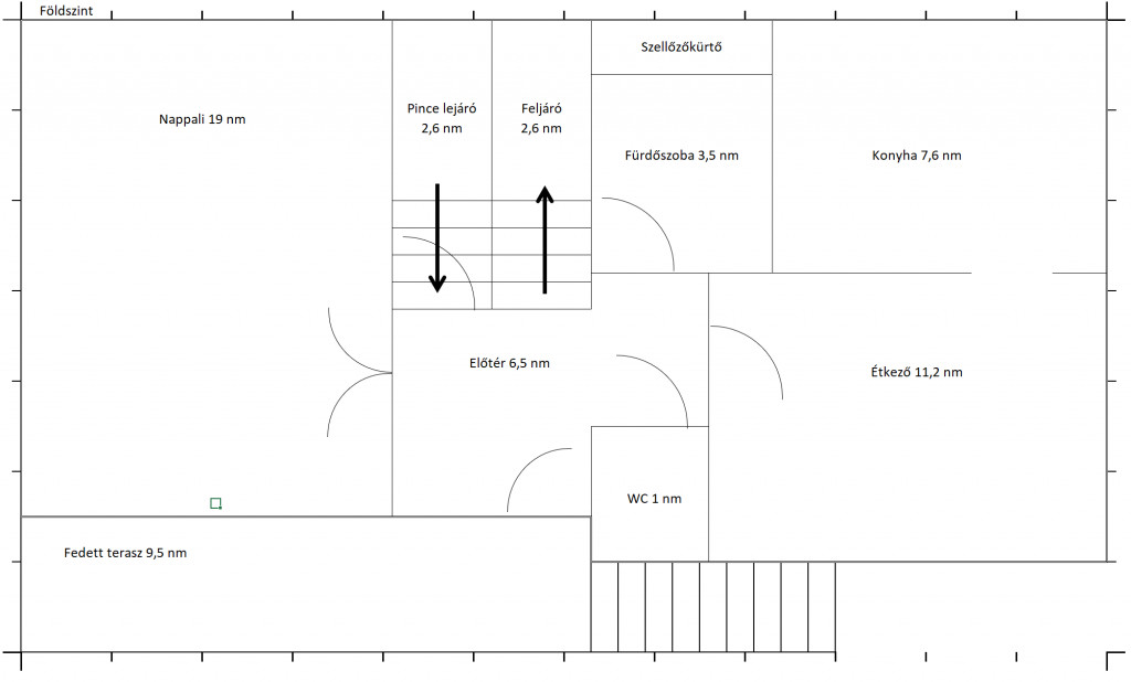
Az ingatlan leírása

Érden Dombosvárosban eladó egy 162 nm-es, 108 nm-es lakótérrel rendelkező, 3 nagy szobás, belső kétszintes, teraszos, erkélyes, közepes állapotú, de korszerűsítésre szorulót ikerház fél.

Akár azonnal költözhető!

A jó elrendezésű, napfényes otthon 1986-ban épült téglából. Alapja, falazata masszív, nem vizes, nem penészes.

A fűtés gázcirkóval megoldott, a hő leadók radiátorok. Meleg víz ellátásról éjszakai áramról működő villanybojler gondoskodik.. Minden használható állapotban van, de a szükséges korszerűsítés, felújítás már az új tulajdonos feladata lesz.

A szuterénben kapott helyet a garázs, a kazánház és még két külön helyiség ami tárolónak, műhelynek használható.

A 788 kert rendezett, található még benne egy 20 nm-es, kéménnyel, kis padlástérrel rendelkező téglaépület is.

Elsősorban készpénzes érdeklődők jelentkezését várjuk!.

Az ingatlan jó helyen épült. A Bem téri alközpont és az M7-es autópálya pár perc alatt elérhető. A buszmegálló 200 m-re található!.

Irányára: 83.000.000 Ft.

Térkép

Ingatlan adásvétel ügyvédi díja
373 500 Ft
a hirdetésben szereplő ár alapján
  • A vételár 0,45%-a
  • Szerződéscsomag teljeskörű képviselettel
  • Ingyenes tulajdoni lap ellenőrzés
  • Az ÁFA-t már tartalmazza
Érdekel az ajánlat →
A tájékoztatás nem teljes körű és nem minősül ajánlattételnek. Minimum díj: 150 000 Ft, maximum díj: 600 000 Ft. A díj kizárólag lakóingatlan adásvételére vonatkozik.

A hirdető elérhetősége

Fővállalkozó Balla és Balla Kft

Szabó Éva
+36 70 682