Eladó Ház- házrész
Hirdetéskód: 9286926
GDN Ingatlanhálózat - Sasad
Felújításhoz személyi kölcsönt keres? Kalkuláljon itt! →
Ez a hirdetés megfelelhet a FIX 3%-os programnak.
Tudj meg többet a részletekről itt.
180.00 m2
ALAPTERÜLET4
SZOBASZÁMnincs megadva
ÉPÍTÉSGáz (cirkó)
FŰTÉS- CSOK igénybe vehető nem
- Tetőtér beépíthető nem
- Fűtés Gáz (cirkó)
- Klíma nem
- Szigetelt nem
A+++
A++
A+
A
B
C
D
E
F
G
H
I
Az ingatlan leírása
Az ingatlan egyik legnagyobb előnye, hogy a lakóházon kívül a telken még az alábbi, különálló épületek is megtalálhatók:
-Önálló, külön bejáratú üzlethelyiség.
-Különálló tároló/raktár.
-Fedett gépkocsibeálló.
Ház:
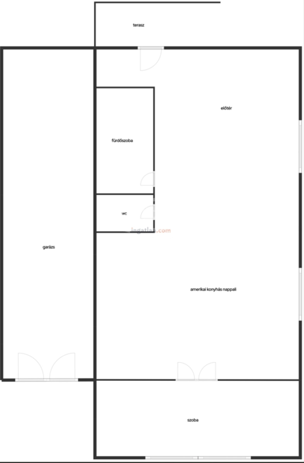
Az ingatlan két külön lakásra osztható, így rugalmasan használható akár bérbeadásra, akár saját vállalkozás + lakhatás kombinációra is.
Alsó szinten nappali, étkező-konyha, 2 szoba és fürdő található.
Tetőtéri rész amerikai konyhás nappalival + hálóval, külön WC-vel és fürdővel rendelkezik.
Itt akár önálló bérlői egységek vagy egy nagyobb családi otthon is kialakítható.
37m2-es hosszú, szerelőaknás garázs.
Nyílászárók: vegyes típusúak (modern fa és műanyag)
Új villanyhálózat.
Elhelyezkedés: frekventált, főút menti pozíció. Jó láthatóság!
Rugalmas beosztás: különálló egységek kialakítására.
Többféle hasznosítás: lakó + üzleti funkció egy helyen.
Erős piaci kereslet: az ilyen jellegű ingatlanok hosszú távon stabil bérleti lehetőséget kínálnak (pl. irodának vagy szolgáltató egységnek is keresett).
AMENNYIBEN NEM RENDELKEZIK A TELJES VÉTELÁRRAL, segítünk Önnek megtalálni a legjobb megoldást!
BANKFÜGGETLEN hitelcentrumunk minden elérhető bank és hitelintézet ajánlatát versenyezteti az Ön kedvéért, ráadásul díjmentesen. Önnek nincs más dolga, mint elbeszélgetni munkatársunkkal, aki a hallott információk alapján versenyre hívja a bankokat, hogy Ön hosszú távon is a legjobb konstrukciót kaphassa. A legjobb ajánlatokból végül Ön választhatja ki a nyertest. Munkatársaink sokéves szakmai tapasztalattal várják Önt, előre egyeztetve akár a normál munkaidő után is. ...TOVÁBBI, TÖBBEZRES INGATLAN KÍNÁLAT: - GDN azonosító: 393167
-Önálló, külön bejáratú üzlethelyiség.
-Különálló tároló/raktár.
-Fedett gépkocsibeálló.
Ház:
Az ingatlan két külön lakásra osztható, így rugalmasan használható akár bérbeadásra, akár saját vállalkozás + lakhatás kombinációra is.
Alsó szinten nappali, étkező-konyha, 2 szoba és fürdő található.
Tetőtéri rész amerikai konyhás nappalival + hálóval, külön WC-vel és fürdővel rendelkezik.
Itt akár önálló bérlői egységek vagy egy nagyobb családi otthon is kialakítható.
37m2-es hosszú, szerelőaknás garázs.
Nyílászárók: vegyes típusúak (modern fa és műanyag)
Új villanyhálózat.
Elhelyezkedés: frekventált, főút menti pozíció. Jó láthatóság!
Rugalmas beosztás: különálló egységek kialakítására.
Többféle hasznosítás: lakó + üzleti funkció egy helyen.
Erős piaci kereslet: az ilyen jellegű ingatlanok hosszú távon stabil bérleti lehetőséget kínálnak (pl. irodának vagy szolgáltató egységnek is keresett).
AMENNYIBEN NEM RENDELKEZIK A TELJES VÉTELÁRRAL, segítünk Önnek megtalálni a legjobb megoldást!
BANKFÜGGETLEN hitelcentrumunk minden elérhető bank és hitelintézet ajánlatát versenyezteti az Ön kedvéért, ráadásul díjmentesen. Önnek nincs más dolga, mint elbeszélgetni munkatársunkkal, aki a hallott információk alapján versenyre hívja a bankokat, hogy Ön hosszú távon is a legjobb konstrukciót kaphassa. A legjobb ajánlatokból végül Ön választhatja ki a nyertest. Munkatársaink sokéves szakmai tapasztalattal várják Önt, előre egyeztetve akár a normál munkaidő után is. ...TOVÁBBI, TÖBBEZRES INGATLAN KÍNÁLAT: - GDN azonosító: 393167