Eladó Ház- házrész
Hirdetéskód: 9184491
Érd Bajcsy-Zsilinszky út 160 - OTP Ingatlanpont Iroda
Felújításhoz személyi kölcsönt keres? Kalkuláljon itt! →
Ez a hirdetés megfelelhet a FIX 3%-os programnak.
Tudj meg többet a részletekről itt.
140.00 m2
ALAPTERÜLET4
SZOBASZÁMnincs megadva
ÉPÍTÉSEgyéb fűtés
FŰTÉS- CSOK igénybe vehető nem
- Belső szintek 2
- Tetőtér beépíthető nem
- Építés éve 2025
- Fűtés Egyéb fűtés
- Klíma nem
- Szigetelt nem
A+++
A++
A+
A
B
C
D
E
F
G
H
I
Az ingatlan leírása
ÚJ ÉPÍTÉSŰ CSALÁDI HÁZ ÉRD FENYVES-PARKVÁROSBAN
Modern otthon, magas műszaki tartalommal, A+ energiaosztállyal!
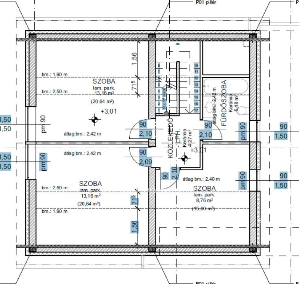
Eladó Érd egyik legkedveltebb, csendes és zöldövezeti részén, Fenyves Parkvárosban egy nettó 140 nm-es, 2 szintes, új építésű, modern családi ház.
A tágas, 41 nm-es amerikai konyhás nappali mellé 3 kényelmes hálószoba és dupla komfortos kialakítás biztosítja a család kényelmét.
Magas műszaki tartalom A+ energiaosztály
15 cm homlokzati hőszigetelés
10 cm aljzatszigetelés
3 rétegű, 7 légkamrás nyílászárók
Korszerű hőszivattyús fűtésrendszer
Padlófűtés a teljes házban
Cseréptető
Alacsony fenntartási költségek, környezettudatos működés
Elhelyezkedés:
Nyugodt, madárcsicsergős, családias környék, mégis közel az M7-es autópályához, iskolákhoz, bevásárlási lehetőségekhez.
Tökéletes választás mindazoknak, akik modern, energiatakarékos és hosszú távra tervezett otthont keresnek Érden!
Megbízható kivitelező. A házat több sikeres referencia-munkával rendelkező kivitelező építi. Céges építkezés, amely államilag támogatott hitelkonstrukciókra is alkalmas.
Az OTP Bankcsoport teljes körű ügyintézéssel áll az eladók és a vevők rendelkezésére! A kínálatunkból választott ingatlan finanszírozásához kedvezményes hitel konstrukciókat kínálunk. Az adásvételi szerződés megkötéséhez igény szerint megbízható ügyvédi közreműködést biztosítunk, és segítséget nyújtunk az adásvételhez kapcsolódó ügyek intézésében. További információért vagy megtekintéssel kapcsolatban hívjon a hét bármely napján.
Modern otthon, magas műszaki tartalommal, A+ energiaosztállyal!
Eladó Érd egyik legkedveltebb, csendes és zöldövezeti részén, Fenyves Parkvárosban egy nettó 140 nm-es, 2 szintes, új építésű, modern családi ház.
A tágas, 41 nm-es amerikai konyhás nappali mellé 3 kényelmes hálószoba és dupla komfortos kialakítás biztosítja a család kényelmét.
Magas műszaki tartalom A+ energiaosztály
15 cm homlokzati hőszigetelés
10 cm aljzatszigetelés
3 rétegű, 7 légkamrás nyílászárók
Korszerű hőszivattyús fűtésrendszer
Padlófűtés a teljes házban
Cseréptető
Alacsony fenntartási költségek, környezettudatos működés
Elhelyezkedés:
Nyugodt, madárcsicsergős, családias környék, mégis közel az M7-es autópályához, iskolákhoz, bevásárlási lehetőségekhez.
Tökéletes választás mindazoknak, akik modern, energiatakarékos és hosszú távra tervezett otthont keresnek Érden!
Megbízható kivitelező. A házat több sikeres referencia-munkával rendelkező kivitelező építi. Céges építkezés, amely államilag támogatott hitelkonstrukciókra is alkalmas.
Az OTP Bankcsoport teljes körű ügyintézéssel áll az eladók és a vevők rendelkezésére! A kínálatunkból választott ingatlan finanszírozásához kedvezményes hitel konstrukciókat kínálunk. Az adásvételi szerződés megkötéséhez igény szerint megbízható ügyvédi közreműködést biztosítunk, és segítséget nyújtunk az adásvételhez kapcsolódó ügyek intézésében. További információért vagy megtekintéssel kapcsolatban hívjon a hét bármely napján.