Eladó Ház- házrész
Hirdetéskód: 9291632

-

Felújításhoz személyi kölcsönt keres? Kalkuláljon itt! →
137.00 m2
ALAPTERÜLET
4
SZOBASZÁM
Tégla
ÉPÍTÉS
Hőszivattyú
FŰTÉS
  • Tetőtér beépíthető nem
  • Kilátás Kertre néző
  • Ingatlan komfort Összkomfortos
  • Parkolási lehetőség Önálló garázs
  • Építés éve 2026
  • Fűtés Hőszivattyú
  • Építőanyag Tégla
Energetikai besorolás: Nincs meghatározva
A+++
A++
A+
A
B
C
D
E
F
G
H
I

Az MBH Bank személyi kölcsön ajánlata

Fizetett hirdetés
1 millió Ft
6 évre
20 585 Ft/hó
THM: 14.5%
Részletek →
2 millió Ft
6 évre
41 169 Ft/hó
THM: 14.5%
Részletek →
3 millió Ft
6 évre
61 754 Ft/hó
THM: 14.5%
Részletek →

A tájékoztatás nem teljes körű és nem minősül ajánlattételnek.

Az ingatlan leírása

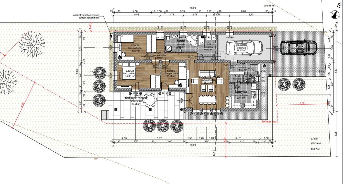
Érd Dombosváros részén, csendes családbarát környezetben , 670m2-es összközműves telken , 137,36m2 alapterületű ( fedett terasz felével), 3 hálószoba+nappalis új építésű önálló családi ház ,1 állásos garázzsal 129,9MFt-ért leköthető .

Az építkezés 2026 tavaszán indul , várható átadás a kezdéstől számítva 6 hónap.

Helyiségei : nettó 104,15m2 lakótér , 18,57m2 garázs ,29,28m2 részben fedett terasz . Előszoba (4,63m2), wc (1,35m2), konyha (9,44m2), nappali + étkező (28,04m2), kamra (1,35m2), előtér-gardrób (8m2), háztartási helyiség (6,9m2), fürdőszoba (7,58m2), 3 hálószoba (14,66m2,12m2,10,2m2)

Alap műszaki adatok : Beton sávalap, 30-as tégla főfalak + 15cm külső hőszigetelés. Szigetelt fa födémes, Bramac cserép fedéssel . A külső nyílászárók műanyag szerkezetű , 3 rétegű fokozott hőszigetelt üvegezéssel ellátva, bukó-nyíló, bukó és fix kivitelben. A beltéri nyílászárók dekorfóliás ajtók.
Az ingatlan fűtése levegő-víz rendszerű hőszivattyúról fog üzemelni, minden helyiségben padlófűtéses hőleadással.
Saját igény szerinti befejezéssel , választható burkolatokkal , kulcsrakészen kerül átadásra , a műszaki tartalomban megadott értékhatárok szerint .
Leinformálható ,megbízható beruházó, referencia ingatlanokkal .

Hiteltanácsadó kollégánk díjmentes, bank semleges ügyintézéssel áll ügyfeleink rendelkezésre. Igény esetén ügyvédi segítséget is ajánlunk a teljes ügymenet jogi lebonyolításához.

Megközelíthetőség és infrastruktúra jó. Buszmegálló 10 perc sétatávolságra található. M7, M0, városközpont , bevásárlási lehetőségek, gyógyszertár szintén gyorsan elérhetők.

Térkép

A hirdető elérhetősége

Érdi Ingatlan Iroda

Kánisz Márta
+36 20 217