Eladó Ház- házrész
Hirdetéskód: 9177728
GDN Ingatlanhálózat - GARDEN CITY
Felújításhoz személyi kölcsönt keres? Kalkuláljon itt! →234.00 m2
ALAPTERÜLET6
SZOBASZÁMnincs megadva
ÉPÍTÉSnincs megadva
FŰTÉS- CSOK igénybe vehető nem
- Tetőtér beépíthető nem
- Klíma nem
- Szigetelt nem
A+++
A++
A+
A
B
C
D
E
F
G
H
I
Az ingatlan leírása
Eladó egy teljes körűen felújított, tágas családi ház Érd központi részén - azonnal költözhető!
Érd kedvelt, központi részén csendes, kertvárosias utcában eladó egy teljes körűen felújított, kétszintes családi ház, amely modern kialakításával, igényes belső tereivel és gyönyörű, parkosított kertjével ideális választás családok számára.
A ház 2025-ben esett át teljes felújításon, a felső szint és a padlástér újonnan épült.
Az ingatlan a kényelem, a praktikum és a minőségi anyaghasználat tökéletes kombinációját kínálja.
Főbb jellemzők:
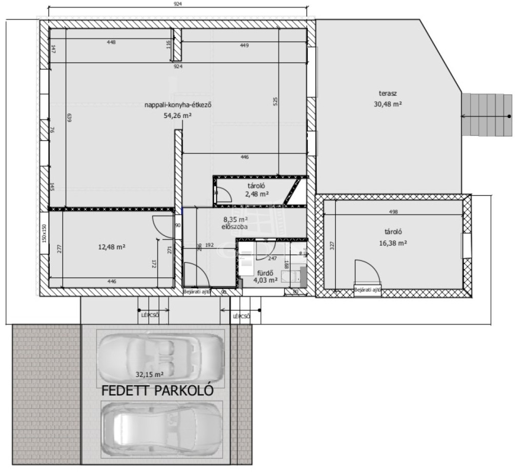
• Lakóterület összesen: 234 m²
• Telekméret: 300 m²
• Hatalmas, fedett kocsibeálló és térkövezett udvar
• Fúrt kút a kert locsolásához
• Hőszivattyús fűtés: lent padlófűtés, fent radiátorok
• Gépi szellőzőrendszer
• Új, 3 rétegű műanyag nyílászárók
• 15 cm hőszigetelés
• Padlástér
Elrendezés:
Földszint:
• Nagy, világos előszoba
• Tágas nappali konyhával és étkezővel
• A nappaliból nyíló hatalmas terasz, amely közvetlen kapcsolatot biztosít a gyönyörűen parkosított kerttel
• Egy különálló szoba, ideális hálónak vagy dolgozószobának
• Zuhanyzós fürdőszoba WC-vel
• Lépcső alatti praktikus tároló
Emelet:
• 4 külön nyíló szoba
• Tágas közlekedő
• Fürdőkádas és zuhanyzós fürdőszoba WC-vel
• Külön WC
• Gépészeti helyiség, amely tárolóként is használható
Különálló épületrész:
A házhoz kapcsolódóan található egy külön bejáratú helyiség, amely lehet szerszámos, tároló, vagy akár egy önálló mini lakrész.
Környék és elhelyezkedés:
Kiváló közlekedés – autóval és tömegközlekedéssel egyaránt könnyen és gyorsan megközelíthető az ingatlan.
• Gyalog pár perc a Stop Shop
• Bolt, iskola, óvoda, bölcsőde a közelben
• Központi, mégis csendes és rendezett környék
Ez az ingatlan tökéletes választás azoknak, akik azonnal költözhető, modern, kényelmes családi házat keresnek Érd központi részén, gyönyörű kerttel és kiváló infrastruktúrával.
Tekintse meg személyesen is ezt a családi házat, hívjon és egyeztessünk időpontot! ...TOVÁBBI, TÖBBEZRES INGATLAN KÍNÁLAT: - GDN azonosító: 387897
Érd kedvelt, központi részén csendes, kertvárosias utcában eladó egy teljes körűen felújított, kétszintes családi ház, amely modern kialakításával, igényes belső tereivel és gyönyörű, parkosított kertjével ideális választás családok számára.
A ház 2025-ben esett át teljes felújításon, a felső szint és a padlástér újonnan épült.
Az ingatlan a kényelem, a praktikum és a minőségi anyaghasználat tökéletes kombinációját kínálja.
Főbb jellemzők:
• Lakóterület összesen: 234 m²
• Telekméret: 300 m²
• Hatalmas, fedett kocsibeálló és térkövezett udvar
• Fúrt kút a kert locsolásához
• Hőszivattyús fűtés: lent padlófűtés, fent radiátorok
• Gépi szellőzőrendszer
• Új, 3 rétegű műanyag nyílászárók
• 15 cm hőszigetelés
• Padlástér
Elrendezés:
Földszint:
• Nagy, világos előszoba
• Tágas nappali konyhával és étkezővel
• A nappaliból nyíló hatalmas terasz, amely közvetlen kapcsolatot biztosít a gyönyörűen parkosított kerttel
• Egy különálló szoba, ideális hálónak vagy dolgozószobának
• Zuhanyzós fürdőszoba WC-vel
• Lépcső alatti praktikus tároló
Emelet:
• 4 külön nyíló szoba
• Tágas közlekedő
• Fürdőkádas és zuhanyzós fürdőszoba WC-vel
• Külön WC
• Gépészeti helyiség, amely tárolóként is használható
Különálló épületrész:
A házhoz kapcsolódóan található egy külön bejáratú helyiség, amely lehet szerszámos, tároló, vagy akár egy önálló mini lakrész.
Környék és elhelyezkedés:
Kiváló közlekedés – autóval és tömegközlekedéssel egyaránt könnyen és gyorsan megközelíthető az ingatlan.
• Gyalog pár perc a Stop Shop
• Bolt, iskola, óvoda, bölcsőde a közelben
• Központi, mégis csendes és rendezett környék
Ez az ingatlan tökéletes választás azoknak, akik azonnal költözhető, modern, kényelmes családi házat keresnek Érd központi részén, gyönyörű kerttel és kiváló infrastruktúrával.
Tekintse meg személyesen is ezt a családi házat, hívjon és egyeztessünk időpontot! ...TOVÁBBI, TÖBBEZRES INGATLAN KÍNÁLAT: - GDN azonosító: 387897