Eladó Ház- házrész
Hirdetéskód: 9196982
Bucalics Roxána
209 m2
ALAPTERÜLET5
SZOBASZÁMnincs megadva
ÉPÍTÉSnincs megadva
FŰTÉS- CSOK igénybe vehető nem
- Tetőtér beépíthető nem
- Építés éve 2026
- Klíma nem
- Szigetelt nem
A+++
A++
A+
A
B
C
D
E
F
G
H
I
Az ingatlan leírása
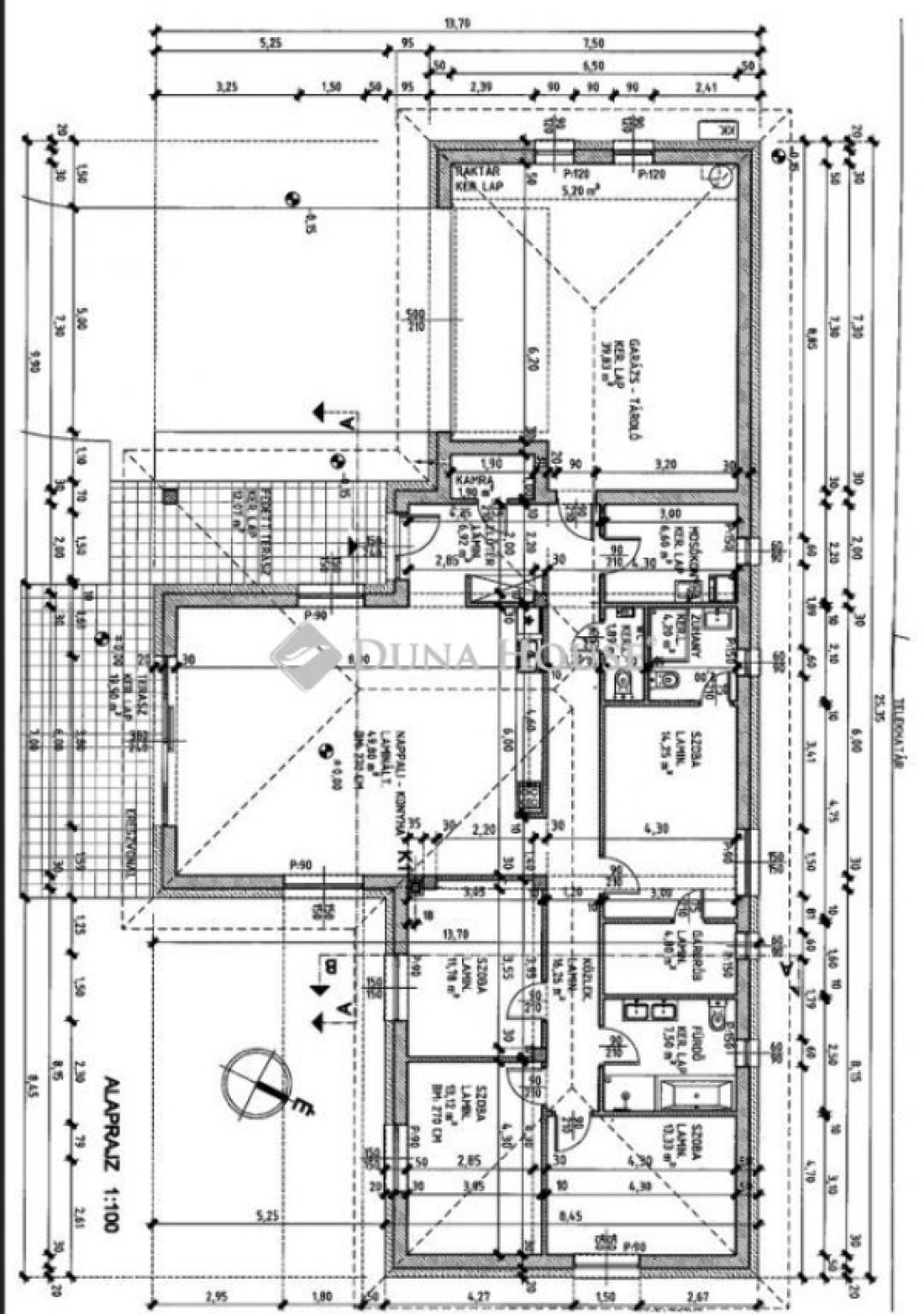
ELADÓ Érd Fenyves-Parkvárosban önálló családi ház!
Az ingatlan egyszintes 210 m2-es modern lakóépület, ami egy gyönyörű, nagy méretű 1282 m2-es telken helyezkedik el.
Az utca aszfaltozott zsákutca, ennek is a légvégén folyik az építkezés, átmenő forgalom nincs.
Energiatakarékos ház, hőszivattyúval mennyezeti hűtés-fűtés szellőztetőrendszer beépítéssel.
Műszaki tartalom:
Panasonic 3 fázis 12kwt-CAP split levegő /víz hőszivattyú
Padlófűtés minden helyiségben
Hideg - meleg burkolatok 8000ft/m2
Ablakok - 3 rétegű üvegezéssel, 5 légkamrás
Falazat: 30-as Porotherm dryfix síkracsiszolt ragasztott tégla
Födém: földszint feletti monolit vasbetonfödém
Homlokzati szigetelés: 20cm-es hőszigetelő dryvit rendszer
Garázsban napelem előkészület becsövezve
Garázsban elektromos autó töltési lehetőség kiépíthető
Videó kaputelefon teljes kiépítés.
Az építkezés már elkezdődött várható átadás 2026. június 30.
Számtalan referencia házzal rendelkezik a cég, amit igény szerint megtekinthetünk.
További információért keressen bátran.
Az ingatlan egyszintes 210 m2-es modern lakóépület, ami egy gyönyörű, nagy méretű 1282 m2-es telken helyezkedik el.
Az utca aszfaltozott zsákutca, ennek is a légvégén folyik az építkezés, átmenő forgalom nincs.
Energiatakarékos ház, hőszivattyúval mennyezeti hűtés-fűtés szellőztetőrendszer beépítéssel.
Műszaki tartalom:
Panasonic 3 fázis 12kwt-CAP split levegő /víz hőszivattyú
Padlófűtés minden helyiségben
Hideg - meleg burkolatok 8000ft/m2
Ablakok - 3 rétegű üvegezéssel, 5 légkamrás
Falazat: 30-as Porotherm dryfix síkracsiszolt ragasztott tégla
Födém: földszint feletti monolit vasbetonfödém
Homlokzati szigetelés: 20cm-es hőszigetelő dryvit rendszer
Garázsban napelem előkészület becsövezve
Garázsban elektromos autó töltési lehetőség kiépíthető
Videó kaputelefon teljes kiépítés.
Az építkezés már elkezdődött várható átadás 2026. június 30.
Számtalan referencia házzal rendelkezik a cég, amit igény szerint megtekinthetünk.
További információért keressen bátran.