Eladó Ház- házrész
Hirdetéskód: 9093602
GDN Ingatlanhálózat - Sasad
Ez a hirdetés megfelelhet a FIX 3%-os programnak.
Tudj meg többet a részletekről itt.
75 m2
ALAPTERÜLET3
SZOBASZÁMnincs megadva
ÉPÍTÉSGáz (konvektor)
FŰTÉS- CSOK igénybe vehető nem
- Tetőtér beépíthető nem
- Fűtés Gáz (konvektor)
- Klíma nem
- Szigetelt nem
A+++
A++
A+
A
B
C
D
E
F
G
H
I
Az ingatlan leírása
--- ÉRDLIGETEN, CSENDES MELLÉK UTCÁBAN, VASUTHOZ, BUSZOKHOZ ÉS MINDENHEZ IS KÖZEL, JÓ ADOTTSÁGÚ TELEK, FELUJITANDÓ HÁZZAL ---
AZ INGATLAN ÉRDLIGET VASUTÁLLOMÁSTÓL PÁR UTCÁNYIRA TALÁLHATÓ, CSENDES MELLÉK UTCÁBAN.
A telek sík, 20 méteres utcafrontja van.
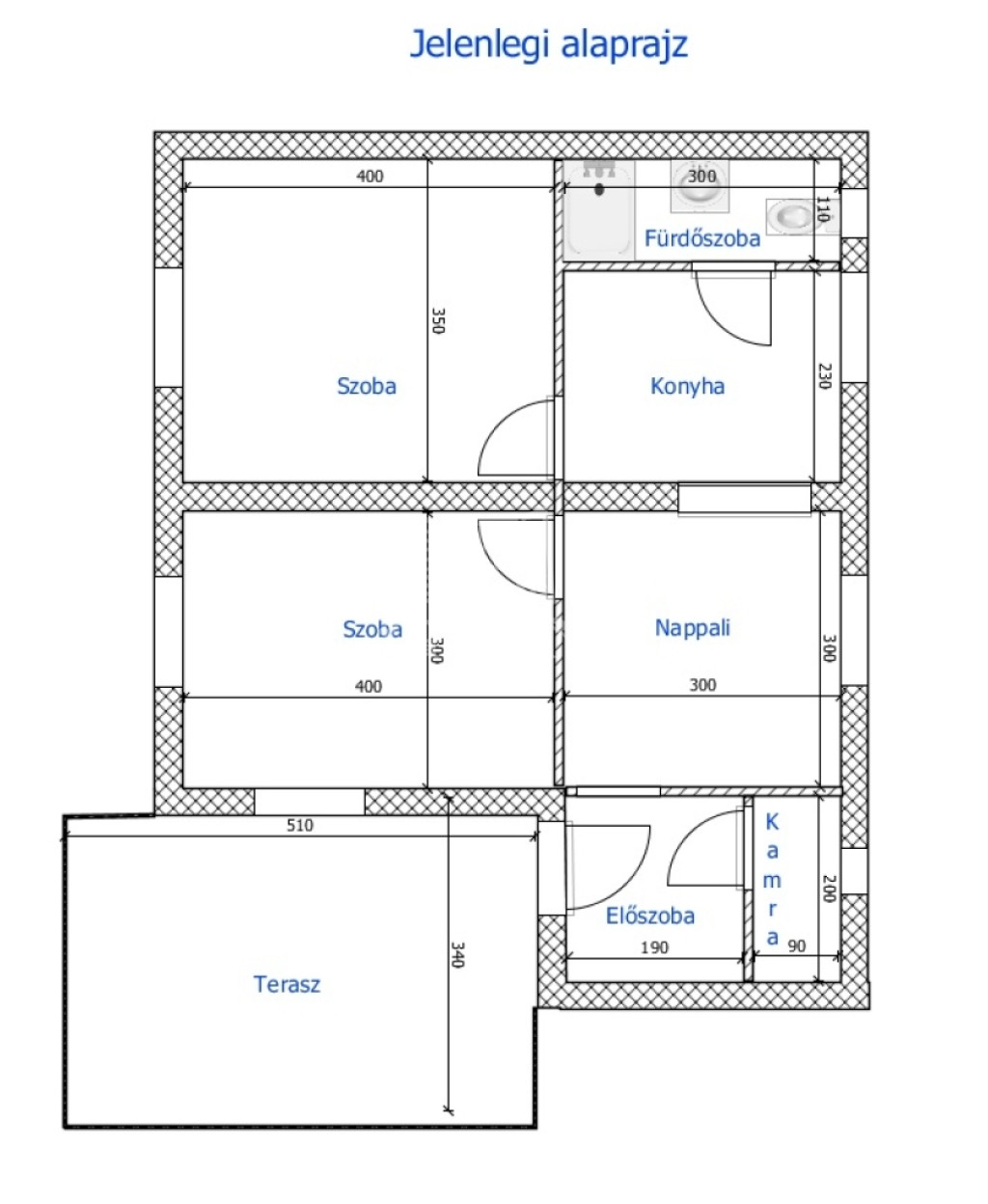
A telken található egy 55 nm-s tégla ház terasszal és egy különálló 20 nm-es, szintén tégla építésű, különálló épület.
A HÁZ elrendezése 2 szoba, konyha, étkező, fürdőszoba, előszoba.
Fűtése gázkonvektorral és kandallóval megoldott.
A KISHÁZAT nyárikonyhaként használták. Ide is be vannak vezetve a közművek. Ez az épület egy helyiségből és egy toalettből áll.
Térképen mindkét épület fel van tüntetve.
A ház és a kisház is szerkezetileg stabil, nincsenek repedések, felázás vagy penészesedés.
A telek összközműves, víz, gáz, csatorna, villany bevezetve.
A kertben fúrt kút is van.
A TELEK Vt-1/l ÖVEZETBEN TALÁLHATÓ.
Ha nagyobb ingatlanra vágyik, a meglévő ház elbontható, vagy bővíthető.
Vt-1/l övezeti besorolású telkek:
- beépítési módja: szabadon álló
- legnagyobb beépíthetősége: 50 %
- zöldfelületi aránya: 30 %
- homlokzat magassága: 7,5 m
A jelenleg érvényben lévő építési korlátozások miatt, csak önálló családi ház építhető rá, vagy a jelenlegi bővíthető.
AZ INGATLAN IRÁNYÁRA 64,9 M Ft
AMENNYIBEN JÓ HELYEN LÉVŐ TELKET KERES, EZ AZ.
További részletekkel, megtekintéssel kapcsolatban, keressen bizalommal!
AMENNYIBEN NEM RENDELKEZIK A TELJES VÉTELÁRRAL, segítünk Önnek megtalálni a legjobb megoldást!
BANKFÜGGETLEN hitelcentrumunk minden elérhető bank és hitelintézet ajánlatát versenyezteti az Ön kedvéért, ráadásul díjmentesen. Önnek nincs más dolga, mint elbeszélgetni munkatársunkkal, aki a hallott információk alapján versenyre hívja a bankokat, hogy Ön hosszú távon is a legjobb konstrukciót kaphassa. A legjobb ajánlatokból végül Ön választhatja ki a nyertest. Munkatársaink sokéves szakmai tapasztalattal várják Önt, előre egyeztetve akár a normál munkaidő után is. ...TOVÁBBI, TÖBBEZRES INGATLAN KÍNÁLAT: - GDN azonosító: 382914
AZ INGATLAN ÉRDLIGET VASUTÁLLOMÁSTÓL PÁR UTCÁNYIRA TALÁLHATÓ, CSENDES MELLÉK UTCÁBAN.
A telek sík, 20 méteres utcafrontja van.
A telken található egy 55 nm-s tégla ház terasszal és egy különálló 20 nm-es, szintén tégla építésű, különálló épület.
A HÁZ elrendezése 2 szoba, konyha, étkező, fürdőszoba, előszoba.
Fűtése gázkonvektorral és kandallóval megoldott.
A KISHÁZAT nyárikonyhaként használták. Ide is be vannak vezetve a közművek. Ez az épület egy helyiségből és egy toalettből áll.
Térképen mindkét épület fel van tüntetve.
A ház és a kisház is szerkezetileg stabil, nincsenek repedések, felázás vagy penészesedés.
A telek összközműves, víz, gáz, csatorna, villany bevezetve.
A kertben fúrt kút is van.
A TELEK Vt-1/l ÖVEZETBEN TALÁLHATÓ.
Ha nagyobb ingatlanra vágyik, a meglévő ház elbontható, vagy bővíthető.
Vt-1/l övezeti besorolású telkek:
- beépítési módja: szabadon álló
- legnagyobb beépíthetősége: 50 %
- zöldfelületi aránya: 30 %
- homlokzat magassága: 7,5 m
A jelenleg érvényben lévő építési korlátozások miatt, csak önálló családi ház építhető rá, vagy a jelenlegi bővíthető.
AZ INGATLAN IRÁNYÁRA 64,9 M Ft
AMENNYIBEN JÓ HELYEN LÉVŐ TELKET KERES, EZ AZ.
További részletekkel, megtekintéssel kapcsolatban, keressen bizalommal!
AMENNYIBEN NEM RENDELKEZIK A TELJES VÉTELÁRRAL, segítünk Önnek megtalálni a legjobb megoldást!
BANKFÜGGETLEN hitelcentrumunk minden elérhető bank és hitelintézet ajánlatát versenyezteti az Ön kedvéért, ráadásul díjmentesen. Önnek nincs más dolga, mint elbeszélgetni munkatársunkkal, aki a hallott információk alapján versenyre hívja a bankokat, hogy Ön hosszú távon is a legjobb konstrukciót kaphassa. A legjobb ajánlatokból végül Ön választhatja ki a nyertest. Munkatársaink sokéves szakmai tapasztalattal várják Önt, előre egyeztetve akár a normál munkaidő után is. ...TOVÁBBI, TÖBBEZRES INGATLAN KÍNÁLAT: - GDN azonosító: 382914