Eladó Ház- házrész
Hirdetéskód: 9265833
GDN Ingatlanhálózat - Sasad
Felújításhoz személyi kölcsönt keres? Kalkuláljon itt! →140.00 m2
ALAPTERÜLET5
SZOBASZÁMnincs megadva
ÉPÍTÉSGáz (cirkó)
FŰTÉS- CSOK igénybe vehető nem
- Tetőtér beépíthető nem
- Fűtés Gáz (cirkó)
- Klíma nem
- Szigetelt nem
A+++
A++
A+
A
B
C
D
E
F
G
H
I
Az ingatlan leírása
MODERN OTTHON ÉRD, FENYVES-PARKVÁROSBAN
TÁGAS TEREK,
REMEK ELRENDEZÉS,
KORSZERŰ MŰSZAKI MEGOLDÁSOK,
ÉLHETŐ/ÉLVEZHETŐ KERT JELLEMZI EZT A HÁZAT
KÖRNYÉK:
Érd legkedveltebb városrésze Fenyves-Parkváros. Csendes, családi házas övezet, rendezett utcákkal, szép házakkal és jó szomszédsággal.
Az autópályától kellően távol helyezkedik el ahhoz, hogy a forgalom zaja ne legyen zavaró, ugyanakkor gyorsan elérhető és élvezhető a városközpont minden előnye.
HÁZ:
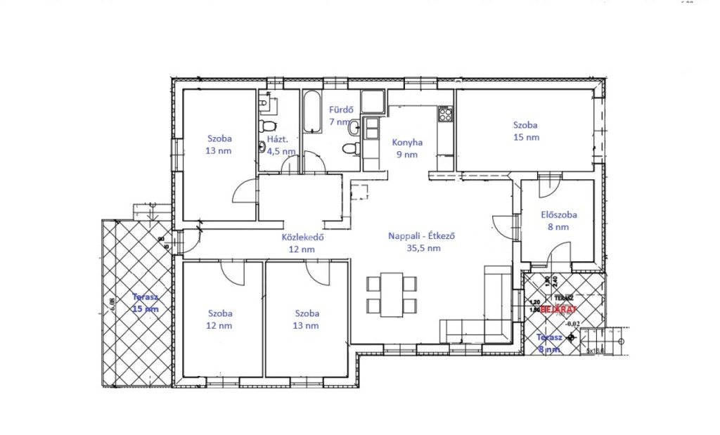
2016-ban épült. Lakótere 129 nm. A ház mérete családokra lett szabva.
Elrendezése az alaprajz szerinti. Amerikai konyhás nappali, 4 hálószoba, 2 fürdőszoba, tágas előszoba és közlekedő található benne.
Hátul, a kert felé pedig egy kényelmes méretű, fedett terasz található.
Falazata 30 cm-es tégla, 10 cm hőszigeteléssel. A födém vasbeton, mely lehetőséget ad a tetőtér beépítésére.
Fűtésről gázcirkó gondoskodik, radiátoros hőleadókkal, emellett klíma és kandalló is rendelkezésre áll.
A 2023-ban telepitett, 6kWh-s napelemes rendszernek köszönhetően a ház vilanyszámlája gyakorlatilag 0 Ft.
A ház energetikai besorolása A++
KERT:
Ez az a kert, ami nem csak szép, hanem valóban használható is.
Az utcafront felől a magas növényzet biztosítja az intimitást, az előkert gondosan parkosított, automata öntözőrendszerrel ellátott.
A hátsó kert sarkában dupla autóbeálló került kialakításra, térkövezett felhajtóval.
A kert parkosított része a pihenést szolgálja. Gyermekeknek játszótér, veteményes a kertészkedni vágyóknak, biztonságos környezet a kutyusoknak.
Tárolóból a kertben sincs hiány, kettő is rendelkezésre áll.
JÖJJÖN EL, NÉZZE MEG AMENNYIBEN EGY SZERETHETŐ, ÉLHETŐ, MODERN OTTHONRA VÁGYIK, JÓ HELYEN.
AMENNYIBEN NEM RENDELKEZIK A TELJES VÉTELÁRRAL, segítünk Önnek megtalálni a legjobb megoldást!
BANKFÜGGETLEN hitelcentrumunk minden elérhető bank és hitelintézet ajánlatát versenyezteti az Ön kedvéért, ráadásul díjmentesen. Önnek nincs más dolga, mint elbeszélgetni munkatársunkkal, aki a hallott információk alapján versenyre hívja a bankokat, hogy Ön hosszú távon is a legjobb konstrukciót kaphassa. A legjobb ajánlatokból végül Ön választhatja ki a nyertest. Munkatársaink sokéves szakmai tapasztalattal várják Önt, előre egyeztetve akár a normál munkaidő után is. ...TOVÁBBI, TÖBBEZRES INGATLAN KÍNÁLAT: - GDN azonosító: 392359
TÁGAS TEREK,
REMEK ELRENDEZÉS,
KORSZERŰ MŰSZAKI MEGOLDÁSOK,
ÉLHETŐ/ÉLVEZHETŐ KERT JELLEMZI EZT A HÁZAT
KÖRNYÉK:
Érd legkedveltebb városrésze Fenyves-Parkváros. Csendes, családi házas övezet, rendezett utcákkal, szép házakkal és jó szomszédsággal.
Az autópályától kellően távol helyezkedik el ahhoz, hogy a forgalom zaja ne legyen zavaró, ugyanakkor gyorsan elérhető és élvezhető a városközpont minden előnye.
HÁZ:
2016-ban épült. Lakótere 129 nm. A ház mérete családokra lett szabva.
Elrendezése az alaprajz szerinti. Amerikai konyhás nappali, 4 hálószoba, 2 fürdőszoba, tágas előszoba és közlekedő található benne.
Hátul, a kert felé pedig egy kényelmes méretű, fedett terasz található.
Falazata 30 cm-es tégla, 10 cm hőszigeteléssel. A födém vasbeton, mely lehetőséget ad a tetőtér beépítésére.
Fűtésről gázcirkó gondoskodik, radiátoros hőleadókkal, emellett klíma és kandalló is rendelkezésre áll.
A 2023-ban telepitett, 6kWh-s napelemes rendszernek köszönhetően a ház vilanyszámlája gyakorlatilag 0 Ft.
A ház energetikai besorolása A++
KERT:
Ez az a kert, ami nem csak szép, hanem valóban használható is.
Az utcafront felől a magas növényzet biztosítja az intimitást, az előkert gondosan parkosított, automata öntözőrendszerrel ellátott.
A hátsó kert sarkában dupla autóbeálló került kialakításra, térkövezett felhajtóval.
A kert parkosított része a pihenést szolgálja. Gyermekeknek játszótér, veteményes a kertészkedni vágyóknak, biztonságos környezet a kutyusoknak.
Tárolóból a kertben sincs hiány, kettő is rendelkezésre áll.
JÖJJÖN EL, NÉZZE MEG AMENNYIBEN EGY SZERETHETŐ, ÉLHETŐ, MODERN OTTHONRA VÁGYIK, JÓ HELYEN.
AMENNYIBEN NEM RENDELKEZIK A TELJES VÉTELÁRRAL, segítünk Önnek megtalálni a legjobb megoldást!
BANKFÜGGETLEN hitelcentrumunk minden elérhető bank és hitelintézet ajánlatát versenyezteti az Ön kedvéért, ráadásul díjmentesen. Önnek nincs más dolga, mint elbeszélgetni munkatársunkkal, aki a hallott információk alapján versenyre hívja a bankokat, hogy Ön hosszú távon is a legjobb konstrukciót kaphassa. A legjobb ajánlatokból végül Ön választhatja ki a nyertest. Munkatársaink sokéves szakmai tapasztalattal várják Önt, előre egyeztetve akár a normál munkaidő után is. ...TOVÁBBI, TÖBBEZRES INGATLAN KÍNÁLAT: - GDN azonosító: 392359