Eladó Ház- házrész
Hirdetéskód: 9198954

Pongrácz Csilla

FIX 3% Program

Ez a hirdetés megfelelhet a FIX 3%-os programnak.
Tudj meg többet a részletekről itt.

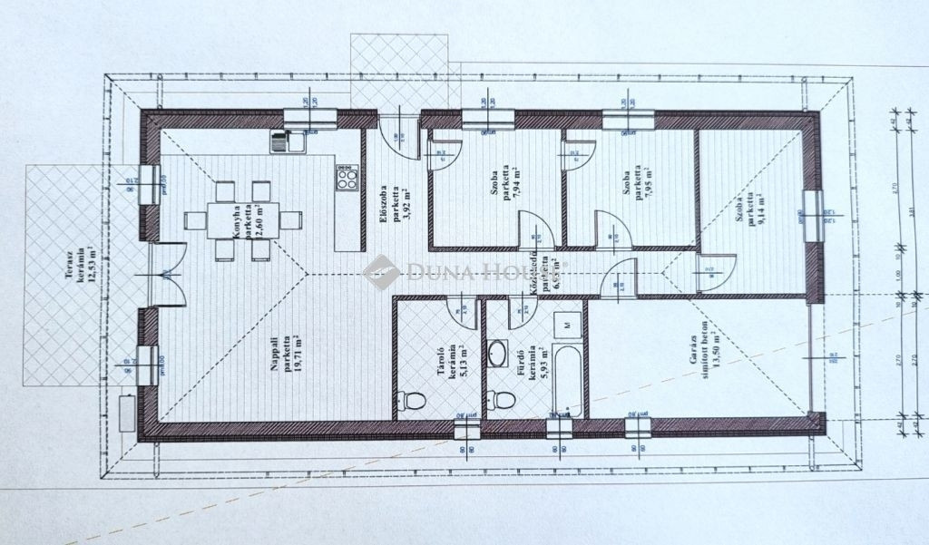
105 m2
ALAPTERÜLET
4
SZOBASZÁM
nincs megadva
ÉPÍTÉS
nincs megadva
FŰTÉS
  • CSOK igénybe vehető nem
  • Tetőtér beépíthető nem
  • Építés éve 2025
  • Klíma nem
  • Szigetelt nem
Energetikai besorolás: Nincs meghatározva
A+++
A++
A+
A
B
C
D
E
F
G
H
I

Az ingatlan leírása

Eladó egy frissen, 2025-ben épülő álomszép új építésű családi ház, ami 105 négyzetméteres alapterülettel rendelkezik. Ez az ingatlan kiváló választás azok számára, akik egy modern, jól tervezett otthonra vágynak. A ház ára és további részletek személyes megkeresésre elérhetők.Ha Ön egy modern, kényelmes és energiatakarékos otthonra vágyik, ne keressen tovább!Az ingatlan elhelyezkedése ideális, nyugodt és barátságos környezetben található, mégis közel mindenhova. Iskolák, óvodák, bevásárlóközpontok és a tömegközlekedési csomópontok is könnyedén elérhetőek.A ház 625 négyzetméteres telken helyezkedik el, amely elegendő térrel szolgál a család minden tagja számára, legyen szó akár a gyerekek játékáról a kertben, akár egy kellemes esti grillparty-ról. Kulcsrakész ÁR: 109.9M

Térkép

A hirdető elérhetősége

Pongrácz Csilla

Pongrácz Csilla
+36 70 394