Eladó Ház- házrész
Hirdetéskód: 9217084
Bucalics Roxána
174 m2
ALAPTERÜLET5
SZOBASZÁMnincs megadva
ÉPÍTÉSnincs megadva
FŰTÉS- CSOK igénybe vehető nem
- Tetőtér beépíthető nem
- Építés éve 2025
- Klíma nem
- Szigetelt nem
A+++
A++
A+
A
B
C
D
E
F
G
H
I
Az ingatlan leírása
PRÉMIUM IKERHÁZ ELADÓ ÉRD FENYVESI RÉSZEN, PANORÁMÁS TERASSZAL !
Érd Fenyves Parkváros keresett részen prémium minőségű ikerház épül. Az épületek dupla állásos garázzsal érintkeznek csak, lakótérrel nem.
Így semmilyen hang nem zavarhatja a nyugalmát. Közös, térkövezett szolgalmi úttal , mely széles és kényelmes parkolást és közlekedést biztosít. Ez az épület a belső.
Az ingatlant a 2025-ös év kedvezményes feltételeivel tudja megvásárolni, az építkezés céges.
Foglalja le már most leendő otthonát 10%-al. Az építkezés 80 %-os készültségnél tart, már csak a burkolatokat, szanitereket és ajtókat kell kiválasztania . A környéken rengeteg referencia ház, amit közösen megtekinthetünk, ami segíti a döntést.
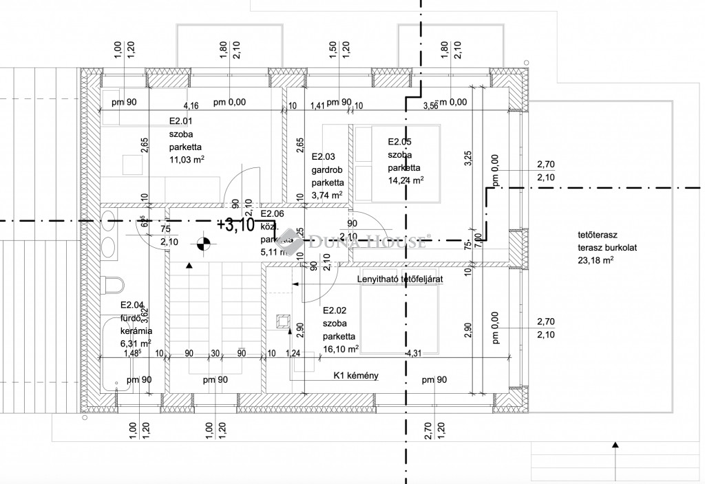
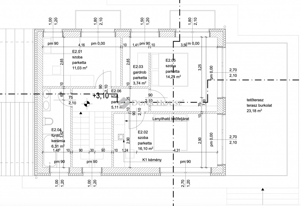
Az ingatlan nettó hasznos területe 174 m2 lakótér + 36 m2-es dupla állásos garázs, 2 db terasz és 2 db erkély, 804 m2 telekkel. A helyiségek napfényesek, köszönhetően a jó tájolásnak és a jó méretű egyedi nyílászáróknak.
Elosztását tekintve:
Földszint:
- Előszoba
- 1 jó méretű hálószoba
- Tágas , amerikai konyhás nappali
- Kamra
- Fürdőszoba
- Háztartási helyiség
- Tároló
- 2 állásos garázs
- 11 m2-es fedett terasz
- 553 m2-es saját kert
Emelet:
- 3 szoba. 2 szoba hangulatos terasszal / 23 m2-es/, ahonnan hangulatos kilátás tárul elénk
- Fürdőszoba
EXTRÁK:
- Mennyezet hűtés-fűtés
- Elektromos alumínium redőnyök
- Térkövezett út
Műszaki adatok:
- 30-as Leier tégla, 10 cm válaszfalak
- 15 cm homlokzati szigetelés
- Hőszivattyú 200 literes használati meleg víz tartállyal
- H- tarifás mérőszekrény kialakítás
- Minden helyiségben padlófűtés
- Betoncserép
- 3 rétegű 6 légkamrás egyedi fa nyílászárók, kívül-belül antracit kivitelben
- 2 db autónak kocsibeálló
- Riasztó előkészítése
- Szaniterek
- Hideg/meleg burkolatok ( 10 000 Ft/m2 meleg: 7 000 Ft/ m2 )
- Beltéri ajtók ( 90 000 Ft/ db )
- Bejárati ajtó
Ezek mind kiemelkedő minőségben és az átlagnál magasabb áron választhatóak. Árlista tőlem kérhető.Az építkezés megtekintése után minden a házzal kapcsolatos dokumentáció rendelkezésre áll.
Vállalkozó garantáltan megbízható, rugalmas, rengeteg referencia munkával, amit közösen megtudunk tekinteni a nagy döntés előtt.
Környék rendezett, minden perceken belül elérhető. Iskola, óvoda, bevásárlási lehetőségek, M7 autópálya.
Várható átadás: 2026 Március
További információkért hívjon bizalommal.
Érd Fenyves Parkváros keresett részen prémium minőségű ikerház épül. Az épületek dupla állásos garázzsal érintkeznek csak, lakótérrel nem.
Így semmilyen hang nem zavarhatja a nyugalmát. Közös, térkövezett szolgalmi úttal , mely széles és kényelmes parkolást és közlekedést biztosít. Ez az épület a belső.
Az ingatlant a 2025-ös év kedvezményes feltételeivel tudja megvásárolni, az építkezés céges.
Foglalja le már most leendő otthonát 10%-al. Az építkezés 80 %-os készültségnél tart, már csak a burkolatokat, szanitereket és ajtókat kell kiválasztania . A környéken rengeteg referencia ház, amit közösen megtekinthetünk, ami segíti a döntést.
Az ingatlan nettó hasznos területe 174 m2 lakótér + 36 m2-es dupla állásos garázs, 2 db terasz és 2 db erkély, 804 m2 telekkel. A helyiségek napfényesek, köszönhetően a jó tájolásnak és a jó méretű egyedi nyílászáróknak.
Elosztását tekintve:
Földszint:
- Előszoba
- 1 jó méretű hálószoba
- Tágas , amerikai konyhás nappali
- Kamra
- Fürdőszoba
- Háztartási helyiség
- Tároló
- 2 állásos garázs
- 11 m2-es fedett terasz
- 553 m2-es saját kert
Emelet:
- 3 szoba. 2 szoba hangulatos terasszal / 23 m2-es/, ahonnan hangulatos kilátás tárul elénk
- Fürdőszoba
EXTRÁK:
- Mennyezet hűtés-fűtés
- Elektromos alumínium redőnyök
- Térkövezett út
Műszaki adatok:
- 30-as Leier tégla, 10 cm válaszfalak
- 15 cm homlokzati szigetelés
- Hőszivattyú 200 literes használati meleg víz tartállyal
- H- tarifás mérőszekrény kialakítás
- Minden helyiségben padlófűtés
- Betoncserép
- 3 rétegű 6 légkamrás egyedi fa nyílászárók, kívül-belül antracit kivitelben
- 2 db autónak kocsibeálló
- Riasztó előkészítése
- Szaniterek
- Hideg/meleg burkolatok ( 10 000 Ft/m2 meleg: 7 000 Ft/ m2 )
- Beltéri ajtók ( 90 000 Ft/ db )
- Bejárati ajtó
Ezek mind kiemelkedő minőségben és az átlagnál magasabb áron választhatóak. Árlista tőlem kérhető.Az építkezés megtekintése után minden a házzal kapcsolatos dokumentáció rendelkezésre áll.
Vállalkozó garantáltan megbízható, rugalmas, rengeteg referencia munkával, amit közösen megtudunk tekinteni a nagy döntés előtt.
Környék rendezett, minden perceken belül elérhető. Iskola, óvoda, bevásárlási lehetőségek, M7 autópálya.
Várható átadás: 2026 Március
További információkért hívjon bizalommal.