Eladó Ház- házrész
Hirdetéskód: 9256063

Velence Tópart utca 47 - OTP Ingatlanpont Iroda

Felújításhoz személyi kölcsönt keres? Kalkuláljon itt! →
72.00 m2
ALAPTERÜLET
3
SZOBASZÁM
nincs megadva
ÉPÍTÉS
nincs megadva
FŰTÉS
  • CSOK igénybe vehető nem
  • Tetőtér beépíthető nem
  • Építés éve 1970
  • Klíma nem
  • Szigetelt nem
Energetikai besorolás: Nincs meghatározva
A+++
A++
A+
A
B
C
D
E
F
G
H
I

Az MBH Bank személyi kölcsön ajánlata

Fizetett hirdetés
1 millió Ft
6 évre
20 585 Ft/hó
THM: 14.5%
Részletek →
2 millió Ft
6 évre
41 169 Ft/hó
THM: 14.5%
Részletek →
3 millió Ft
6 évre
61 754 Ft/hó
THM: 14.5%
Részletek →

A tájékoztatás nem teljes körű és nem minősül ajánlattételnek.

Az ingatlan leírása

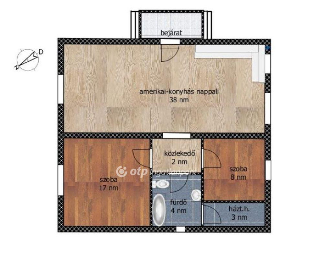
Ercsiben a focipálya környékén, nyugodtabb, könnyen megközelíthető, aszfaltos utcában kínálok megvételre egy teljeskörű belső felújításon átesett földszintes, önálló családi otthont a hozzá tartozó nagy méretű telekkel. A ház az 1970-es években kiváló minőségben, masszív alapokra épült erős, tégla falazattal, betongerendás födémszerkezettel, cseréptetővel. A megvásárlására csok, 3 %-os hitel igénybe vehető! A belső felújítás mindenre kiterjedt: új, hővédő üvegezéssel készült műanyag nyílászárókat építettek be, teljesen új víz-, gáz-, villanyhálózatot alakítottak ki, a kellemes hőérzetet pedig a vadonatúj kondenzációs gázkazán és az 5 cm-es külső hőszigetelés biztosítja. 2 hálószobával, egy fürdőszobával, közlekedővel, háztartási helyiséggel és egy tágas, napfényes, hangulatos amerikai konyhás nappalival rendelkezik, beépített konyhabútorral. A hozzá tartozó telek 1099 nm-es, ahol melléképületek, valamint egy bő vízhozamú ásott kút is megtalálható. 30%-os beépíthetőségének köszönhetően az épület bővíthető, de a tetőtér beépítésére is lehetőség van. A külső színezés, terasz építés, kerítés javítása még hátra van, de a tulajdonos szakemberrel igény szerint megbeszélhető ezek befejezése is! Aszfaltozott utcában található, békés szomszédokkal körülvéve. 1 km-en belül elérhető a vasútállomás, buszmegállók, bevásárlási lehetőség, óvoda, focipálya, stb. Az ingatlan finanszírozásához az OTP Bank vevőinket ingyenes banki tanácsadással, valamint kedvezményes hitelkonstrukció kiválasztásával támogatja. Az adásvételi szerződés megkötéséhez igény esetén megbízható ügyvédi közreműködést biztosítunk és segítséget nyújtunk az adásvételhez kapcsolódó ügyek intézéséhez. További információkért várom szeretettel megtisztelő érdeklődését a hét bármely napján!

54900000 Ft

Térkép

A hirdető elérhetősége

Velence Tópart utca 47 - OTP Ingatlanpont Iroda