Eladó Ház- házrész
Hirdetéskód: 9182806
Express ingatlan Kerek Edina Mária irodája
Ez a hirdetés megfelelhet a FIX 3%-os programnak.
Tudj meg többet a részletekről itt.
126 m2
ALAPTERÜLET4
SZOBASZÁMnincs megadva
ÉPÍTÉSnincs megadva
FŰTÉS- CSOK igénybe vehető nem
- Tetőtér beépíthető nem
- Építés éve 1996
- Klíma nem
- Szigetelt nem
A+++
A++
A+
A
B
C
D
E
F
G
H
I
Az ingatlan leírása
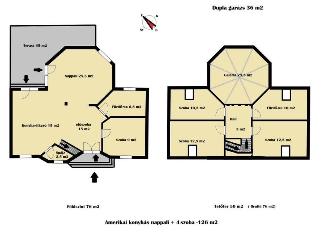
Miskolc közelében Emődön, a Nefelejcs utcában tetőtér beépítéses családi ház eladó.
Az ingatlan amerikai konyhás nappalival, 4 szobával, 2 fürdőszobával,126 m2-es fűtött lakótérrel rendelkezik. Az udvaron 35 m2-es dupla garázzsal várja új tulajdonosát.
A tégla, és szilikát falazatú ház, cserép fedéssel. 1996-ban készült, 1097 m2-es gondozott pihenőkerttel.
Említést érdemlő extrák:
– Egyedi tervezésű, hangulatos épület. Galériás kialakítás.
– Hőszigetelt műanyag, és fa nyílászárók.
– Beépített, gépesített egyedi konyhabútor, étkező pult.
– 1996-os építésű, és a közelmúltban felújított épület.
– kondenzációs gáz központi fűtés (Bosch).
– Amerikai konyhás nappali, étkező, spájz.
– Hőszigetelt falazat. (5 cm Nikecell).
– Hőszigetelt tető. (10 cm).
– Dupla garázs. 36 m2
– Hűtő-fűtő klímaberendezés.
– Villamos hálózat cserélve, modernizálva.
– Víz, és szennyvíz vezetékek cserélve.
– Hideg és meleg burkolatok, csempék cserélve.
– Statikailag, és szerkezetileg remek állapot.
– Remek tájolás, egyedi hangulatú, világos, tágas lakótér.
Ingatlan beszámítás lehetséges!
Remek környék, Jó tömegközlekedés, szimpatikus szomszédok. Emőd központja, iskola,
óvoda, orvosi rendelő, élelmiszerbolt pár perc alatt elérhető.
Rendezett, biztonságos település.
Nagyon kedvelt környék a kedvező ingatlan árak miatt fiatalok körében. Valamint Miskolc közelsége, és a dinamikusan fejlődő település magával ragadó hangulata miatt.
Így várhatóan, rövid ideig lesz elérhető a ház, az ingatlanpiacon.
Kizárólag a mi kínálatunkban szerepel! Rugalmas megtekintés!
Az ingatlan per, és tehermentes, azonnal birtokba vehető.
További információért keressen bizalommal!
Irodánkban bank független hitellehetőségekkel, ingyenes Csok, Csok +, Fix 3%-os hitel, és Babaváró ügyintézéssel várjuk. Teljes körű ügyintézés!
Email: Telefon:
Az ingatlan amerikai konyhás nappalival, 4 szobával, 2 fürdőszobával,126 m2-es fűtött lakótérrel rendelkezik. Az udvaron 35 m2-es dupla garázzsal várja új tulajdonosát.
A tégla, és szilikát falazatú ház, cserép fedéssel. 1996-ban készült, 1097 m2-es gondozott pihenőkerttel.
Említést érdemlő extrák:
– Egyedi tervezésű, hangulatos épület. Galériás kialakítás.
– Hőszigetelt műanyag, és fa nyílászárók.
– Beépített, gépesített egyedi konyhabútor, étkező pult.
– 1996-os építésű, és a közelmúltban felújított épület.
– kondenzációs gáz központi fűtés (Bosch).
– Amerikai konyhás nappali, étkező, spájz.
– Hőszigetelt falazat. (5 cm Nikecell).
– Hőszigetelt tető. (10 cm).
– Dupla garázs. 36 m2
– Hűtő-fűtő klímaberendezés.
– Villamos hálózat cserélve, modernizálva.
– Víz, és szennyvíz vezetékek cserélve.
– Hideg és meleg burkolatok, csempék cserélve.
– Statikailag, és szerkezetileg remek állapot.
– Remek tájolás, egyedi hangulatú, világos, tágas lakótér.
Ingatlan beszámítás lehetséges!
Remek környék, Jó tömegközlekedés, szimpatikus szomszédok. Emőd központja, iskola,
óvoda, orvosi rendelő, élelmiszerbolt pár perc alatt elérhető.
Rendezett, biztonságos település.
Nagyon kedvelt környék a kedvező ingatlan árak miatt fiatalok körében. Valamint Miskolc közelsége, és a dinamikusan fejlődő település magával ragadó hangulata miatt.
Így várhatóan, rövid ideig lesz elérhető a ház, az ingatlanpiacon.
Kizárólag a mi kínálatunkban szerepel! Rugalmas megtekintés!
Az ingatlan per, és tehermentes, azonnal birtokba vehető.
További információért keressen bizalommal!
Irodánkban bank független hitellehetőségekkel, ingyenes Csok, Csok +, Fix 3%-os hitel, és Babaváró ügyintézéssel várjuk. Teljes körű ügyintézés!
Email: Telefon: