Eladó Ház- házrész
Hirdetéskód: 9303267

Miskolc - OTP Ingatlanpont Iroda

Felújításhoz személyi kölcsönt keres? Kalkuláljon itt! →
FIX 3% Program

Ez a hirdetés megfelelhet a FIX 3%-os programnak.
Tudj meg többet a részletekről itt.

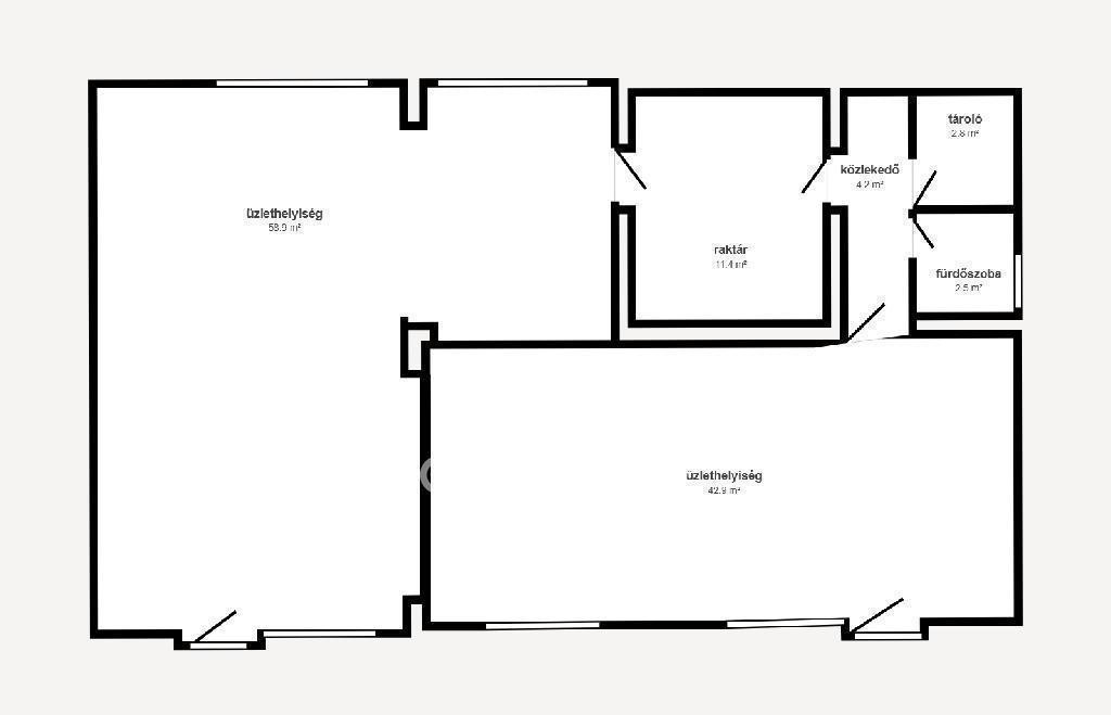
123.00 m2
ALAPTERÜLET
2
SZOBASZÁM
nincs megadva
ÉPÍTÉS
Egyéb fűtés
FŰTÉS
  • CSOK igénybe vehető nem
  • Tetőtér beépíthető nem
  • Építés éve 1960
  • Fűtés Egyéb fűtés
  • Klíma nem
  • Szigetelt nem
Energetikai besorolás: Nincs meghatározva
A+++
A++
A+
A
B
C
D
E
F
G
H
I

Az MBH Bank személyi kölcsön ajánlata

Fizetett hirdetés
1 millió Ft
6 évre
20 585 Ft/hó
THM: 14.5%
Részletek →
2 millió Ft
6 évre
41 169 Ft/hó
THM: 14.5%
Részletek →
3 millió Ft
6 évre
61 754 Ft/hó
THM: 14.5%
Részletek →

A tájékoztatás nem teljes körű és nem minősül ajánlattételnek.

Az ingatlan leírása

Eladásra kínálunk egy 120 m2 nagyságú épületet, amely remek alkalmat nyújt mindazoknak, akik családi otthont keresnek, üzlethelyiséget alakítanának ki, vagy egyéb vállalkozás számára keresnek ideális helyszínt. Az ingatlan elhelyezkedése kiváló, központi fekvése miatt gyorsan elérhető minden fontos helyszín.
Az épület vegyes falazata és vastag betonalapja biztosítja a szerkezet stabilitását és a vizesedés kivédését. Az elektromos hálózat rézkábellel van szerelve, ráadásul éjszakai árammal rendelkezik, ami energiatakarékos üzemeltetést tesz lehetővé.
Mindezen felül a vele járó lehetőségek szinte végtelenek: a vizesblokk már elkészült, és különféle helyiségek kialakítására is van lehetőség, hogy az új tulajdonos saját igényei szerint alakíthassa tovább a teret.

Az OTP Banki hátterünknek köszönhetően finanszírozási igényekben (pl. Otthon Start Hitelprogram, Babaváró, Falusi CSOK, CSOK Plusz, Lakáshitel, Személyi kölcsön stb.), illetve biztosítások tekintetében is díjmentesen, soron kívüli ügyintézéssel segítem ügyfeleim!

Az ingatlan referenciaszámával kapcsolatban és további információkért kérjük, vegye fel velünk a kapcsolatot! Referenciaszám: M295462

Térkép

Ingatlan adásvétel ügyvédi díja
150 000 Ft
a hirdetésben szereplő ár alapján
  • A vételár 0,45%-a
  • Szerződéscsomag teljeskörű képviselettel
  • Ingyenes tulajdoni lap ellenőrzés
  • Az ÁFA-t már tartalmazza
Érdekel az ajánlat →
A tájékoztatás nem teljes körű és nem minősül ajánlattételnek. Minimum díj: 150 000 Ft, maximum díj: 600 000 Ft. A díj kizárólag lakóingatlan adásvételére vonatkozik.

A hirdető elérhetősége

Miskolc - OTP Ingatlanpont Iroda

Vécsei Katalin
+36 20 315