Eladó Ház- házrész
Hirdetéskód: 9303233
Miskolc - OTP Ingatlanpont Iroda
Felújításhoz személyi kölcsönt keres? Kalkuláljon itt! →
Ez a hirdetés megfelelhet a FIX 3%-os programnak.
Tudj meg többet a részletekről itt.
123.00 m2
ALAPTERÜLET2
SZOBASZÁMnincs megadva
ÉPÍTÉSnincs megadva
FŰTÉS- CSOK igénybe vehető nem
- Tetőtér beépíthető nem
- Építés éve 1960
- Klíma nem
- Szigetelt nem
A+++
A++
A+
A
B
C
D
E
F
G
H
I
Az ingatlan leírása
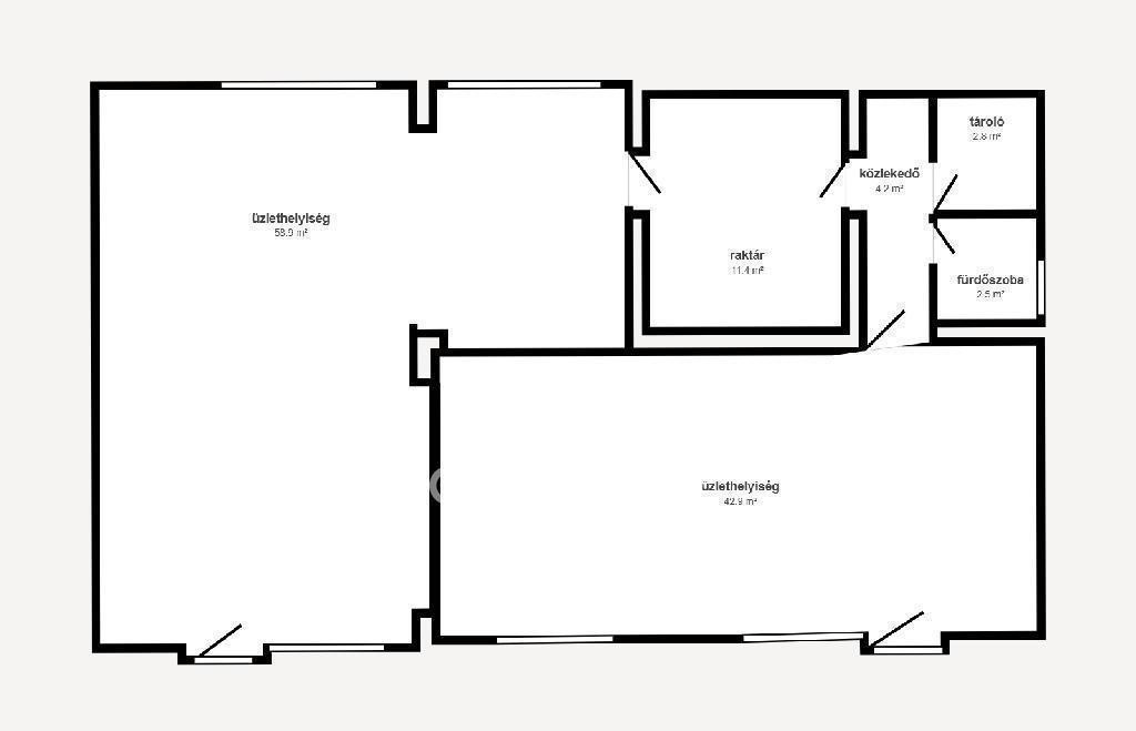
Eladásra kínálunk egy 120 m2 nagyságú épületet, amely remek alkalmat nyújt mindazoknak, akik családi otthont keresnek, üzlethelyiséget alakítanának ki, vagy egyéb vállalkozás számára keresnek ideális helyszínt. Az ingatlan elhelyezkedése kiváló, központi fekvése miatt gyorsan elérhető minden fontos helyszín.
Az épület vegyes falazata és vastag betonalapja biztosítja a szerkezet stabilitását és a vizesedés kivédését. Az elektromos hálózat rézkábellel van szerelve, ráadásul éjszakai árammal rendelkezik, ami energiatakarékos üzemeltetést tesz lehetővé.
Mindezen felül a vele járó lehetőségek szinte végtelenek: a vizesblokk már elkészült, és különféle helyiségek kialakítására is van lehetőség, hogy az új tulajdonos saját igényei szerint alakíthassa tovább a teret.
Az OTP Banki hátterünknek köszönhetően finanszírozási igényekben (pl. Otthon Start Hitelprogram, Babaváró, Falusi CSOK, CSOK Plusz, Lakáshitel, Személyi kölcsön stb.), illetve biztosítások tekintetében is díjmentesen, soron kívüli ügyintézéssel segítem ügyfeleim!
Az ingatlan referenciaszámával kapcsolatban és további információkért kérjük, vegye fel velünk a kapcsolatot! Referenciaszám: M295462
Az épület vegyes falazata és vastag betonalapja biztosítja a szerkezet stabilitását és a vizesedés kivédését. Az elektromos hálózat rézkábellel van szerelve, ráadásul éjszakai árammal rendelkezik, ami energiatakarékos üzemeltetést tesz lehetővé.
Mindezen felül a vele járó lehetőségek szinte végtelenek: a vizesblokk már elkészült, és különféle helyiségek kialakítására is van lehetőség, hogy az új tulajdonos saját igényei szerint alakíthassa tovább a teret.
Az OTP Banki hátterünknek köszönhetően finanszírozási igényekben (pl. Otthon Start Hitelprogram, Babaváró, Falusi CSOK, CSOK Plusz, Lakáshitel, Személyi kölcsön stb.), illetve biztosítások tekintetében is díjmentesen, soron kívüli ügyintézéssel segítem ügyfeleim!
Az ingatlan referenciaszámával kapcsolatban és további információkért kérjük, vegye fel velünk a kapcsolatot! Referenciaszám: M295462