Eladó Ház- házrész
Hirdetéskód: 9251443
Kiss György Csaba
193.00 m2
ALAPTERÜLET5
SZOBASZÁMnincs megadva
ÉPÍTÉSnincs megadva
FŰTÉS- CSOK igénybe vehető nem
- Tetőtér beépíthető nem
- Építés éve 2015
- Klíma nem
- Szigetelt nem
A+++
A++
A+
A
B
C
D
E
F
G
H
I
Az ingatlan leírása
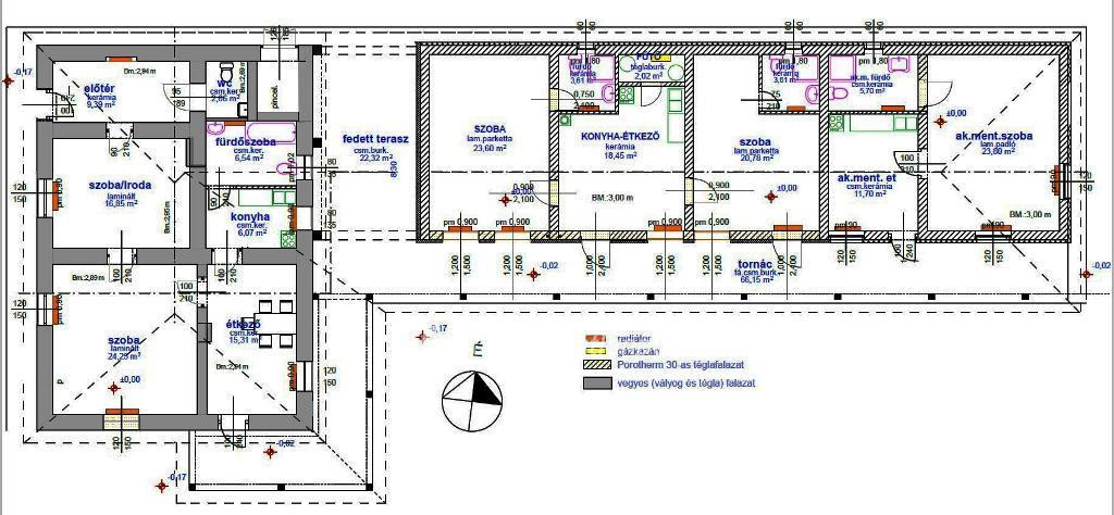
A HAJDÚ-BIHAR MEGYEI EGYEKEN, A TELEPÜLÉSKÖZPONTBAN ELADÓ EGY KITŰNŐ ÁLLAPOTBAN LÉVŐ, 193,34 M2 HASZNOS ALAPTERÜLETŰ, 4 EGYSÉGES, 5 SZOBÁS, ÖSSZKOMFORTOS, ÖSSZKÖZMŰVES VENDÉGHÁZ, NAPELEMES ENERGIAELLÁTÁSSAL ÉS NAPKOLLEKTORRAL, 2806 M2-ES TELKEN, A TISZA FOLYÓTÓL 6 KM-RE, 15 KM-RE A TISZA-TÓTÓL (TISZAFÜRED)!!! A telken két épületből álló épületegyüttes található, tornáccal és fedett terasszal összekötve!!! Az egyik épület (régi) egy kb. 1945-ben épült paplakás volt, mely 2015-ben teljes körű külső-belső felújításon esett át (a tető is új), mögötte egy 2015-ben épült teljesen új építésű épület (új). A régi épület falazata vályog és tömör tégla vegyesen, az új épület pedig Porotherm 30-as téglából épült, 10 cm hőszigeteléssel, nemes vakolattal, födém fagerendás mindkét épületben, az újban 25 cm gyapot szigetelés, a régi épületben is 10 cm gyapot van a régi saralt fafödémen. A tetőn 10 kW-os napelem (33 db) és 2 napkollektor!!! Az épületegyüttes apartmanként működött évekig, melyben összesen négy önálló, külön bejáratos vendégszobaegység van kialakítva, a legutolsó apartman akadálymentes, de az egységek egy része össze is nyitható, azaz nagyobb családok, baráti társaságok több egységet egyben is használhatnak (lásd alaprajz)!!!
Az ingatlannak egy tulajdonosa van (magánszemély), első épület lakóházként is használható (így is van nyilvántartva), de teljes épületegyüttes is alkalmas többgenerációs családi házként, saját használatú üdülőként, vagy elhelyezkedése miatt üzleti célra is!!!
Udvaron fúrt kút és ásott kút is, kerti főzőhely, kerti tároló pavilon, fedett terasz, tornác, gyümölcsfák: 4 szilva, 2 füge, 4 birskörte, 2 cseresznye, 3 alma, 1 diófa, 2 őszibarack, málna.
Egyeken a falusi CSOK igénybe vehető, a ház is alkalmas rá, arra is ajánljuk, melynek teljes körű ügyintézését és az esetleges banki finanszírozás előkészítését díjmentesen vállaljuk!!!
Egyek egy fejlődő nagyközség, megfelelő infrastruktúrával, munkahelyekkel rendelkezik, a település közel van a Tiszához (külterülettel határos), 10 km-re a nagyobb, városi infrastruktúrával rendelkező Tiszafüred, ahol szabad-strand, kikötők, gyógyfürdő, nagy áruházak (Tesco, Lidl, Spar, Penny), kerékpároscentrum stb. is megtalálhatók. Egyekhez közel van a 33-as sz. főút is (3 km-re), Debrecen 62 km-re, M3-as autópálya 37 km-re (M3 Outlet Center ugyanitt).
Az ingatlant jó adottsága, nagysága, elhelyezkedése miatt elsősorban vállalkozások, befektetők figyelmébe ajánljuk!!!
Az ár tartalmazza a teljes bútorzatot, berendezést!!!
Helyiségek: régi épület: 80,07 m2, köztük: 22,32 m2 fedett terasz, új épület: 113,27 m2, tornác 66,15 m2. 1. épület: 2 szoba, konyha, étkező, fürdő+WC, plusz külön WC, előtér. 2. épület: 3 szoba (előtér-konyha, konyha-étkező, 3 zuhanyzó-WC egyben. A ház alatt egy 25,3 m2-es pince!!!
Fűtés: 2 gázkazán, külön mindkét házban.
Melegvíz: melegvíz kombi gázkazánról és napkollektorról is.
Telekterület: 2806 m2.
Közművek: víz, villany, gáz, szennyvíz.
Közelben: központi kereskedések, szolgáltatások, intézmények, hivatal, gyógyszertár stb.
Amennyiben hirdetésem felkeltette érdeklődését, keressen bizalommal bármikor (hétvégén is!), lehetőleg a telefonszámon, ha nem tudom azonnal felvenni, visszahívom, ha a számát kijelzi. További kérdéseire készséggel válaszolok! A tiszafüredi OTP Ingatlanpont és OTP Pénzügyi Pont teljes körű ügyintézéssel áll az eladók és a vevők rendelkezésére! A kínálatunkból választott ingatlan finanszírozásához kedvezményes hitel- és lízingkonstrukciókat kínálunk. Az adásvételi szerződés megkötéséhez igény szerint megbízható ügyvédi közreműködést biztosítunk, és segítséget nyújtunk az adásvételhez kapcsolódó ügyek intézéséhez, hiteligényléshez (igazolások igénylése, nyomtatványok kitöltése, benyújtása stb.).
Irányár: 63 millió Ft
Referenciaszám: M319830
Az ingatlannak egy tulajdonosa van (magánszemély), első épület lakóházként is használható (így is van nyilvántartva), de teljes épületegyüttes is alkalmas többgenerációs családi házként, saját használatú üdülőként, vagy elhelyezkedése miatt üzleti célra is!!!
Udvaron fúrt kút és ásott kút is, kerti főzőhely, kerti tároló pavilon, fedett terasz, tornác, gyümölcsfák: 4 szilva, 2 füge, 4 birskörte, 2 cseresznye, 3 alma, 1 diófa, 2 őszibarack, málna.
Egyeken a falusi CSOK igénybe vehető, a ház is alkalmas rá, arra is ajánljuk, melynek teljes körű ügyintézését és az esetleges banki finanszírozás előkészítését díjmentesen vállaljuk!!!
Egyek egy fejlődő nagyközség, megfelelő infrastruktúrával, munkahelyekkel rendelkezik, a település közel van a Tiszához (külterülettel határos), 10 km-re a nagyobb, városi infrastruktúrával rendelkező Tiszafüred, ahol szabad-strand, kikötők, gyógyfürdő, nagy áruházak (Tesco, Lidl, Spar, Penny), kerékpároscentrum stb. is megtalálhatók. Egyekhez közel van a 33-as sz. főút is (3 km-re), Debrecen 62 km-re, M3-as autópálya 37 km-re (M3 Outlet Center ugyanitt).
Az ingatlant jó adottsága, nagysága, elhelyezkedése miatt elsősorban vállalkozások, befektetők figyelmébe ajánljuk!!!
Az ár tartalmazza a teljes bútorzatot, berendezést!!!
Helyiségek: régi épület: 80,07 m2, köztük: 22,32 m2 fedett terasz, új épület: 113,27 m2, tornác 66,15 m2. 1. épület: 2 szoba, konyha, étkező, fürdő+WC, plusz külön WC, előtér. 2. épület: 3 szoba (előtér-konyha, konyha-étkező, 3 zuhanyzó-WC egyben. A ház alatt egy 25,3 m2-es pince!!!
Fűtés: 2 gázkazán, külön mindkét házban.
Melegvíz: melegvíz kombi gázkazánról és napkollektorról is.
Telekterület: 2806 m2.
Közművek: víz, villany, gáz, szennyvíz.
Közelben: központi kereskedések, szolgáltatások, intézmények, hivatal, gyógyszertár stb.
Amennyiben hirdetésem felkeltette érdeklődését, keressen bizalommal bármikor (hétvégén is!), lehetőleg a telefonszámon, ha nem tudom azonnal felvenni, visszahívom, ha a számát kijelzi. További kérdéseire készséggel válaszolok! A tiszafüredi OTP Ingatlanpont és OTP Pénzügyi Pont teljes körű ügyintézéssel áll az eladók és a vevők rendelkezésére! A kínálatunkból választott ingatlan finanszírozásához kedvezményes hitel- és lízingkonstrukciókat kínálunk. Az adásvételi szerződés megkötéséhez igény szerint megbízható ügyvédi közreműködést biztosítunk, és segítséget nyújtunk az adásvételhez kapcsolódó ügyek intézéséhez, hiteligényléshez (igazolások igénylése, nyomtatványok kitöltése, benyújtása stb.).
Irányár: 63 millió Ft
Referenciaszám: M319830