Eladó Ház- házrész
Hirdetéskód: 9246277
Eger Kertész utca 25 - OTP Ingatlanpont Iroda
Felújításhoz személyi kölcsönt keres? Kalkuláljon itt! →
Ez a hirdetés megfelelhet a FIX 3%-os programnak.
Tudj meg többet a részletekről itt.
330.00 m2
ALAPTERÜLET5
SZOBASZÁMnincs megadva
ÉPÍTÉSGáz (cirkó)
FŰTÉS- CSOK igénybe vehető nem
- Tetőtér beépíthető nem
- Építés éve 1970
- Fűtés Gáz (cirkó)
- Klíma nem
- Szigetelt nem
A+++
A++
A+
A
B
C
D
E
F
G
H
I
Az ingatlan leírása
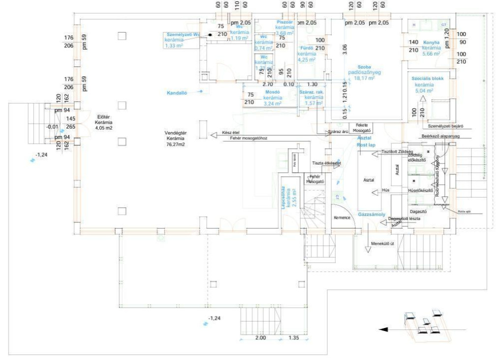
Heves vármegye, Egerszalók 330 m2-es többfunkciós ingatlan eladó!
Az ingatlan Egertől 6 km-re, a demjéni termálfürdőtől 4 km-re, a helyi gyógyfürdőtől 1,7 km-re található, 1065 m2 alapterületű telken kamerarendszerrel őrzött saját parkoló, 25 m mélységű domboldalba vájt borospince, üzlethelyiség, 1 külső tároló tartozik hozzá. Az ingatlan sokoldalú befektetési lehetőséget kínál: a földszinti terek teraszos étterem, söröző, kifőzde, üzlethelyiség szerepét tölthetik be - az étterem üzemeltetéséhez gondosan kialakított, kompletten felszerelt konyha tárolókkal, külön feldolgozó helyiségekkel, több mosogatófülkével, szociális térrel biztosítja a hátteret - ugyanakkor egy külön bejárattal rendelkező, felújított apartman szálláslehetőséget nyújt. Az emeleten panzió üzemel jelenleg is 2 db teljes körűen felújított, klimatizált, önálló - 2 szoba, konyha, fürdőszoba, WC, terasz, közlekedő kialakítású - bútorozott apartmannal, melyek összesen 14 fő elszállásolására alkalmasak. A panzió teljes berendezéssel együtt eladó.
A tégla szerkezetű épületen belül a betonozott pince és a tágas tetőtér további terek kialakítására alkalmas, az ingatlan továbbfejleszthető új tulajdonosa elképzelése szerint. A pincében található a kazánház: a puffertartályokkal ellátott fatüzelésű kazán és gázkazán gondoskodik az épület kifűtéséről, és a melegvízellátásról. A gázkazán távvezérléssel működtethető. Az éttermi részen egy hűtő-fűtő klímaberendezés, valamint egyedi fűtésmegoldásként egy kandalló is beüzemeltethető. A földszinten a bejárati ajtókat műanyagra cserélték, a nagyméretű ablakok az eredeti fakeretesek maradtak, a konyhában műanyag ajtók választják el a helyiségeket egymástól. Az emeleten az összes külső nyílászárót hőszigetelt műanyagra cserélték, az ablakokat redőnnyel látták el, a beltéri ajtók fából készültek. A alsó szinten az éttermi részt laminált parkettával, míg az előtért és a konyhát járólappal burkolták. A panzió részlegen a szobákat laminált parketta borítja, a többi helyiséget hidegburkolattal látták el. 2017-ben a fűtésrendszer modernizálása mellett sor került a teljes víz-, csatorna-, és az áramhálózat cseréjére, az épületbe háromfázisú áramkört vezettek be. Az ingatlan per- és tehermentes, a teljes vételár megfizetését követően gyakorlatilag azonnal birtokba vehető, tovább működtethető, több céllal kiadható.
Várom hívását, akár hétvégén is. Ügyfeleinknek igény esetén kedvező hitelfeltételekkel hitelt, megbízható ügyvédi közreműködést, szerződéskötéshez irodai hátteret biztosítunk. Referencia szám: M298713
Az ingatlan Egertől 6 km-re, a demjéni termálfürdőtől 4 km-re, a helyi gyógyfürdőtől 1,7 km-re található, 1065 m2 alapterületű telken kamerarendszerrel őrzött saját parkoló, 25 m mélységű domboldalba vájt borospince, üzlethelyiség, 1 külső tároló tartozik hozzá. Az ingatlan sokoldalú befektetési lehetőséget kínál: a földszinti terek teraszos étterem, söröző, kifőzde, üzlethelyiség szerepét tölthetik be - az étterem üzemeltetéséhez gondosan kialakított, kompletten felszerelt konyha tárolókkal, külön feldolgozó helyiségekkel, több mosogatófülkével, szociális térrel biztosítja a hátteret - ugyanakkor egy külön bejárattal rendelkező, felújított apartman szálláslehetőséget nyújt. Az emeleten panzió üzemel jelenleg is 2 db teljes körűen felújított, klimatizált, önálló - 2 szoba, konyha, fürdőszoba, WC, terasz, közlekedő kialakítású - bútorozott apartmannal, melyek összesen 14 fő elszállásolására alkalmasak. A panzió teljes berendezéssel együtt eladó.
A tégla szerkezetű épületen belül a betonozott pince és a tágas tetőtér további terek kialakítására alkalmas, az ingatlan továbbfejleszthető új tulajdonosa elképzelése szerint. A pincében található a kazánház: a puffertartályokkal ellátott fatüzelésű kazán és gázkazán gondoskodik az épület kifűtéséről, és a melegvízellátásról. A gázkazán távvezérléssel működtethető. Az éttermi részen egy hűtő-fűtő klímaberendezés, valamint egyedi fűtésmegoldásként egy kandalló is beüzemeltethető. A földszinten a bejárati ajtókat műanyagra cserélték, a nagyméretű ablakok az eredeti fakeretesek maradtak, a konyhában műanyag ajtók választják el a helyiségeket egymástól. Az emeleten az összes külső nyílászárót hőszigetelt műanyagra cserélték, az ablakokat redőnnyel látták el, a beltéri ajtók fából készültek. A alsó szinten az éttermi részt laminált parkettával, míg az előtért és a konyhát járólappal burkolták. A panzió részlegen a szobákat laminált parketta borítja, a többi helyiséget hidegburkolattal látták el. 2017-ben a fűtésrendszer modernizálása mellett sor került a teljes víz-, csatorna-, és az áramhálózat cseréjére, az épületbe háromfázisú áramkört vezettek be. Az ingatlan per- és tehermentes, a teljes vételár megfizetését követően gyakorlatilag azonnal birtokba vehető, tovább működtethető, több céllal kiadható.
Várom hívását, akár hétvégén is. Ügyfeleinknek igény esetén kedvező hitelfeltételekkel hitelt, megbízható ügyvédi közreműködést, szerződéskötéshez irodai hátteret biztosítunk. Referencia szám: M298713