Eladó Ház- házrész
Hirdetéskód: 9307614
Gyöngyös Kossuth Lajos utca 22 - OTP Ingatlanpont Iroda
Felújításhoz személyi kölcsönt keres? Kalkuláljon itt! →237.00 m2
ALAPTERÜLET4
SZOBASZÁMnincs megadva
ÉPÍTÉSGáz (cirkó)
FŰTÉS- CSOK igénybe vehető nem
- Tetőtér beépíthető nem
- Építés éve 1996
- Fűtés Gáz (cirkó)
- Klíma nem
- Szigetelt nem
A+++
A++
A+
A
B
C
D
E
F
G
H
I
Az ingatlan leírása
Eger egyik legszebb panorámás részén, a közkedvelt Rácz hóstyán, kizárólag az OTP Ingatlanpont kínálatában kínálunk eladásra egy 237 m2 alapterületű, kiváló állapotú, négy szobás családi házat, amely elhelyezkedésének és műszaki felszereltségének köszönhetően valóban különleges lehetőséget kínál azok számára, akik tágas, értékálló otthont keresnek Egerben.
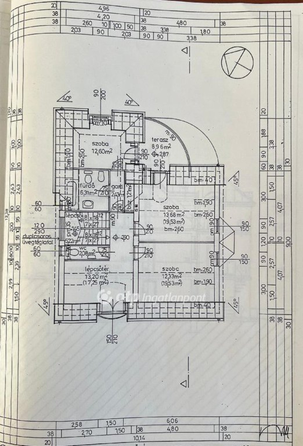
Az ingatlan háromszintes kialakítású, melynek földszintjén egy tágas, rendkívül világos panorámás nappali található étkezővel, amelyhez erkély kapcsolódik, így a mindennapok részévé válik a városra nyíló gyönyörű kilátás, ezen a szinten kapott helyet továbbá egy beépített, gépesített konyha, egy zuhanyzós fürdőszoba, valamint egy külön mellékhelyiség.
Az emeleten három tágas, jól bútorozható szoba került kialakításra, amelyekhez egy hangulatos dolgozósarok kapcsolódik, továbbá itt található egy fürdőkádas fürdőszoba is, amely a család mindennapi kényelmét szolgálja.
Az alagsori szinten egy sokoldalúan használható tágas hobbi szoba, egy társalgó, egy mosókonyha, valamint kamra és gardrób helyiségek kerültek kialakításra, így ez a szint akár rekreációs térként, akár további funkcionális helyiségekként is kiválóan használható.
Az ingatlan fűtéséről korszerű kondenzációs gázkazán gondoskodik radiátoros és padlófűtéses hőleadással, amely kellemes komfortérzetet biztosít, míg az év minden időszakában öt darab hűtő - fűtő klíma segíti a megfelelő hőmérséklet fenntartását. A gazdaságos üzemeltetésről egy 12 kW teljesítményű napelemes rendszer gondoskodik, amelyhez 10 kW kapacitású akkumulátor kapcsolódik, így az ingatlan rendkívül alacsony rezsiköltséggel fenntartható.
A ház a mai kor igényeinek megfelelően háromfázisú villamos hálózattal rendelkezik, a garázsszinten pedig Tesla gyorstöltő csatlakozás került kialakításra, amely elektromos autóval rendelkező tulajdonosok számára is ideális megoldást jelent. A nyílászárók magas minőségű borovi fenyőből készültek, a vízhálózat védelme érdekében pedig központi vízlágyító rendszer került beépítésre.
A rendezett, parkosított udvar nyugodt, kellemes környezetet biztosít, miközben a ház fekvésének köszönhetően Eger városa szinte panorámaként tárul elénk, amely különleges hangulatot ad az ingatlannak.
Az ingatlan kiváló választás családok számára, de méretének és elrendezésének köszönhetően akár több generáció együttélésére is ideális, miközben a panorámás elhelyezkedés és a korszerű műszaki tartalom hosszú távon is értékálló befektetést jelenthet.
Az OTP Ingatlanpont teljes körű, bankfüggetlen pénzügyi szolgáltatással áll ügyfelei rendelkezésére, így segítünk megtalálni a legkedvezőbb finanszírozási lehetőséget, valamint ügyvédi és energetikai háttérrel támogatjuk a vásárlás teljes folyamatát.
Az ingatlan előre egyeztetett időpontban rugalmasan megtekinthető, ezért amennyiben egy különleges panorámájú, kiváló állapotú egri otthont keres, keressen bizalommal!
Az ingatlan háromszintes kialakítású, melynek földszintjén egy tágas, rendkívül világos panorámás nappali található étkezővel, amelyhez erkély kapcsolódik, így a mindennapok részévé válik a városra nyíló gyönyörű kilátás, ezen a szinten kapott helyet továbbá egy beépített, gépesített konyha, egy zuhanyzós fürdőszoba, valamint egy külön mellékhelyiség.
Az emeleten három tágas, jól bútorozható szoba került kialakításra, amelyekhez egy hangulatos dolgozósarok kapcsolódik, továbbá itt található egy fürdőkádas fürdőszoba is, amely a család mindennapi kényelmét szolgálja.
Az alagsori szinten egy sokoldalúan használható tágas hobbi szoba, egy társalgó, egy mosókonyha, valamint kamra és gardrób helyiségek kerültek kialakításra, így ez a szint akár rekreációs térként, akár további funkcionális helyiségekként is kiválóan használható.
Az ingatlan fűtéséről korszerű kondenzációs gázkazán gondoskodik radiátoros és padlófűtéses hőleadással, amely kellemes komfortérzetet biztosít, míg az év minden időszakában öt darab hűtő - fűtő klíma segíti a megfelelő hőmérséklet fenntartását. A gazdaságos üzemeltetésről egy 12 kW teljesítményű napelemes rendszer gondoskodik, amelyhez 10 kW kapacitású akkumulátor kapcsolódik, így az ingatlan rendkívül alacsony rezsiköltséggel fenntartható.
A ház a mai kor igényeinek megfelelően háromfázisú villamos hálózattal rendelkezik, a garázsszinten pedig Tesla gyorstöltő csatlakozás került kialakításra, amely elektromos autóval rendelkező tulajdonosok számára is ideális megoldást jelent. A nyílászárók magas minőségű borovi fenyőből készültek, a vízhálózat védelme érdekében pedig központi vízlágyító rendszer került beépítésre.
A rendezett, parkosított udvar nyugodt, kellemes környezetet biztosít, miközben a ház fekvésének köszönhetően Eger városa szinte panorámaként tárul elénk, amely különleges hangulatot ad az ingatlannak.
Az ingatlan kiváló választás családok számára, de méretének és elrendezésének köszönhetően akár több generáció együttélésére is ideális, miközben a panorámás elhelyezkedés és a korszerű műszaki tartalom hosszú távon is értékálló befektetést jelenthet.
Az OTP Ingatlanpont teljes körű, bankfüggetlen pénzügyi szolgáltatással áll ügyfelei rendelkezésére, így segítünk megtalálni a legkedvezőbb finanszírozási lehetőséget, valamint ügyvédi és energetikai háttérrel támogatjuk a vásárlás teljes folyamatát.
Az ingatlan előre egyeztetett időpontban rugalmasan megtekinthető, ezért amennyiben egy különleges panorámájú, kiváló állapotú egri otthont keres, keressen bizalommal!