Eladó Ház- házrész
Hirdetéskód: 9205369
Eger Kertész utca 25 - OTP Ingatlanpont Iroda
79 m2
ALAPTERÜLET1
SZOBASZÁMnincs megadva
ÉPÍTÉSnincs megadva
FŰTÉS- CSOK igénybe vehető nem
- Tetőtér beépíthető nem
- Építés éve 2024
- Klíma nem
- Szigetelt nem
A+++
A++
A+
A
B
C
D
E
F
G
H
I
Az ingatlan leírása
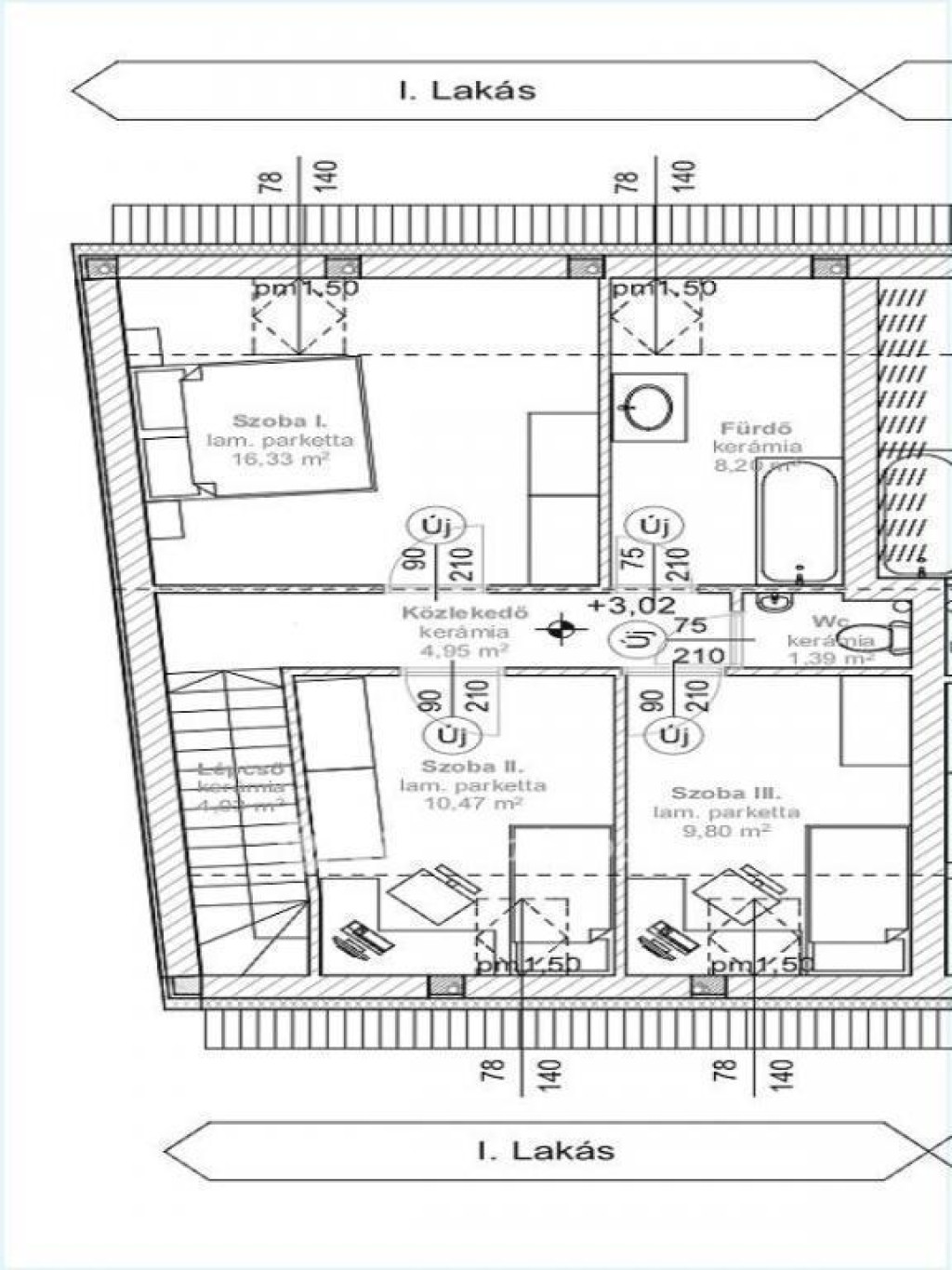
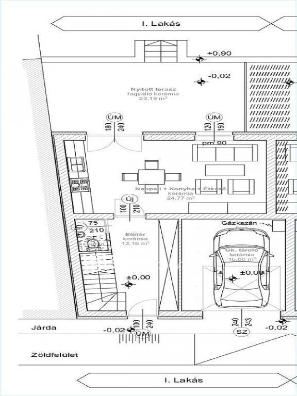
Egerben, a Belvároshoz közel, csendes utcában 344 nm-es telken épülő ikerház egyik 79/95nm-es kétszintes lakása saját kertrésszel, terasszal, garázzsal eladó.
Az ingatlanban a földszinten garázs, amerikai konyhás nappali, 24 nm-es terasz és kert kapcsolattal, egyéb helyiséggel, az emeleten három szoba, fürdőszobával lett kialakítva. Az ingatlan kiváló energetikai besorolású. Az épület főfalai 30 N+F vázkerámia tégla falazat, 15 cm EPS hőszigeteléssel, az épületek közötti elválasztó fal 30 NF+GT hanggátló tégla falazat, a tetőfedés Terrán Zenit beton - tetőcseréppel, természetes színben. A homlokzati nyílászárók 3 réteg hőszigetelő üvegezéssel készültek, a tetőtéri ablakok hőszigetelő üvegezéssel, külső hővédő rolóval felszereltek.
A fűtési rendszer kondenzációs gáz kazán 24KW-os Westen típusú szerelt kéményes, padlófűtéssel minden helyiségben. A tetőtérben kialakításra került 3,5 kW Gree Smart R hűtő-fűtő klíma, 1 db tetőtérben, 1 db nappaliban, WiFi csatlakozással.
Napelemes rendszer készült, ami az épület villamos hálózatára csatlakozik. A konyha gépesített, Elektrolux beépített készülékekkel, a beépített gardrób szekrény a földszinti közlekedőben (5x2,7m-es). IP kamera rendszer, rögzítővel. Okosotthon mobilról üzemeltethető rendszer. Beépített mosókonyha rész a lépcső alatti térben. A kert parkosított, dísznövényekkel telepített. Igényesen megtervezett ingatlan, ha tetszik, ide tényleg csak költözni kell!
Ingatlanirodánk ügyvédi háttérrel, CSOK, babaváró hitel, valamint kamatkedvezményes hitel ügyintézésével támogatja ügyfelei ingatlanvásárlását.
Az ingatlanban a földszinten garázs, amerikai konyhás nappali, 24 nm-es terasz és kert kapcsolattal, egyéb helyiséggel, az emeleten három szoba, fürdőszobával lett kialakítva. Az ingatlan kiváló energetikai besorolású. Az épület főfalai 30 N+F vázkerámia tégla falazat, 15 cm EPS hőszigeteléssel, az épületek közötti elválasztó fal 30 NF+GT hanggátló tégla falazat, a tetőfedés Terrán Zenit beton - tetőcseréppel, természetes színben. A homlokzati nyílászárók 3 réteg hőszigetelő üvegezéssel készültek, a tetőtéri ablakok hőszigetelő üvegezéssel, külső hővédő rolóval felszereltek.
A fűtési rendszer kondenzációs gáz kazán 24KW-os Westen típusú szerelt kéményes, padlófűtéssel minden helyiségben. A tetőtérben kialakításra került 3,5 kW Gree Smart R hűtő-fűtő klíma, 1 db tetőtérben, 1 db nappaliban, WiFi csatlakozással.
Napelemes rendszer készült, ami az épület villamos hálózatára csatlakozik. A konyha gépesített, Elektrolux beépített készülékekkel, a beépített gardrób szekrény a földszinti közlekedőben (5x2,7m-es). IP kamera rendszer, rögzítővel. Okosotthon mobilról üzemeltethető rendszer. Beépített mosókonyha rész a lépcső alatti térben. A kert parkosított, dísznövényekkel telepített. Igényesen megtervezett ingatlan, ha tetszik, ide tényleg csak költözni kell!
Ingatlanirodánk ügyvédi háttérrel, CSOK, babaváró hitel, valamint kamatkedvezményes hitel ügyintézésével támogatja ügyfelei ingatlanvásárlását.