Eladó Ház- házrész
Hirdetéskód: 9246337
Eger Kertész utca 25 - OTP Ingatlanpont Iroda
105.00 m2
ALAPTERÜLET2
SZOBASZÁMnincs megadva
ÉPÍTÉSnincs megadva
FŰTÉS- CSOK igénybe vehető nem
- Tetőtér beépíthető nem
- Építés éve 1983
- Klíma nem
- Szigetelt nem
A+++
A++
A+
A
B
C
D
E
F
G
H
I
Az ingatlan leírása
Az OTP Ingatlanpont Kizárólagos forgalmazásában! Eladó családi ház Egerben, a vár környékén!
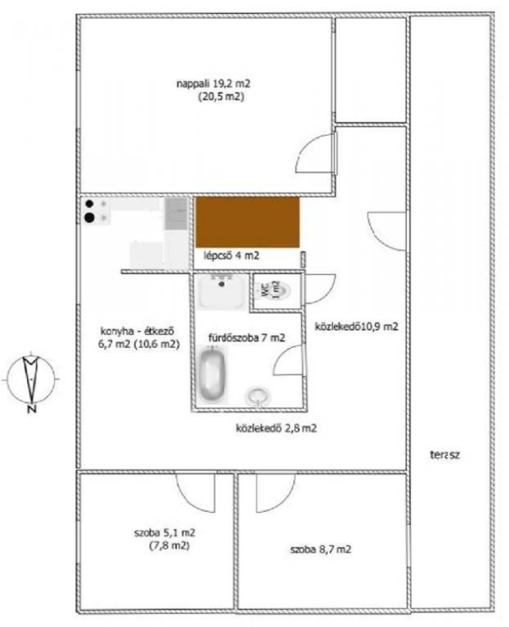
Téglaépítésű, felújítandó családi ház eladó Eger történelmi belvárosának közvetlen közelében, a vár szomszédságában. A ház két szinten, földszint + tetőtér elrendezésben kínálja új tulajdonosának az alábbi előnyöket:
? Hasznos alapterület: 148,5 m2
? Telek területe: 135 m2
? Fa hőszigetelt üvegezésű ablakok
? Dupla komfortos (fürdő és WC mindkét szinten)
? Belső elrendezésének köszönhetően akár kétlakásos társasházzá is átalakítható
? A földszinten található egyik helyiség garázzsá is alakítható
A ház ideális lehetőség azoknak, akik egy kényelmes otthonra vágynak Eger szívében, ugyanakkor van lehetőségük saját elképzeléseik szerint felújítani és akár befektetési céllal két különálló lakássá alakítani.
Amennyiben a fotók és az ingatlan paraméterei felkeltették érdeklődését kérem, forduljon hozzám bizalommal. Irodánk, teljes körű ügyintézéssel áll az eladók és a vevők rendelkezésére! Az adásvételi szerződés megkötéséhez igény szerint megbízható ügyvédi közreműködést biztosítunk, és segítséget nyújtunk az adásvételhez kapcsolódó ügyek intézéséhez és ingyenes pénzügyi tanácsadással, kedvezményes hitelekkel (Babaváró hitel, államilag támogatott hitel, CSOK Plusz igényelhető, stb) Lakástakarék megtakarítással segítjük vásárlását. Ne hagyja ki ezt a ritka lehetőséget, hívjon minket még ma!
Téglaépítésű, felújítandó családi ház eladó Eger történelmi belvárosának közvetlen közelében, a vár szomszédságában. A ház két szinten, földszint + tetőtér elrendezésben kínálja új tulajdonosának az alábbi előnyöket:
? Hasznos alapterület: 148,5 m2
? Telek területe: 135 m2
? Fa hőszigetelt üvegezésű ablakok
? Dupla komfortos (fürdő és WC mindkét szinten)
? Belső elrendezésének köszönhetően akár kétlakásos társasházzá is átalakítható
? A földszinten található egyik helyiség garázzsá is alakítható
A ház ideális lehetőség azoknak, akik egy kényelmes otthonra vágynak Eger szívében, ugyanakkor van lehetőségük saját elképzeléseik szerint felújítani és akár befektetési céllal két különálló lakássá alakítani.
Amennyiben a fotók és az ingatlan paraméterei felkeltették érdeklődését kérem, forduljon hozzám bizalommal. Irodánk, teljes körű ügyintézéssel áll az eladók és a vevők rendelkezésére! Az adásvételi szerződés megkötéséhez igény szerint megbízható ügyvédi közreműködést biztosítunk, és segítséget nyújtunk az adásvételhez kapcsolódó ügyek intézéséhez és ingyenes pénzügyi tanácsadással, kedvezményes hitelekkel (Babaváró hitel, államilag támogatott hitel, CSOK Plusz igényelhető, stb) Lakástakarék megtakarítással segítjük vásárlását. Ne hagyja ki ezt a ritka lehetőséget, hívjon minket még ma!