Eladó Ház- házrész
Hirdetéskód: 9262893

Eger Kertész utca 25 - OTP Ingatlanpont Iroda

120.00 m2
ALAPTERÜLET
3
SZOBASZÁM
nincs megadva
ÉPÍTÉS
nincs megadva
FŰTÉS
  • CSOK igénybe vehető nem
  • Tetőtér beépíthető nem
  • Építés éve 2010
  • Klíma nem
  • Szigetelt nem
Energetikai besorolás: Nincs meghatározva
A+++
A++
A+
A
B
C
D
E
F
G
H
I

Az ingatlan leírása

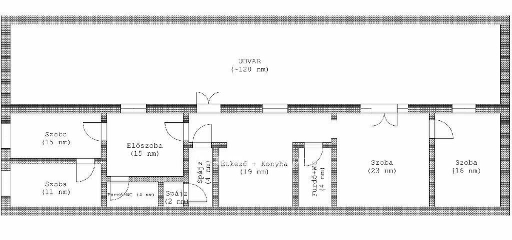
KIZÁRÓLAG INGATLANIRODÁNK KÍNÁLATÁBAN! Heves megye, Eger Hatvani hóstya városrészen, kb. 10 perc sétára a belvárostól, 120m2-es, 4 szobás, szigetelt, jó állapotú családi ház eladó. Helyiségei: bejárat, előszoba, konyha-étkező, 4 szoba, 2 fürdőszoba WC-vel és kamra, mely alatt pince található. A 2 lakrészre tagolódó ingatlan az 1970-es években épült 244m2-es telekre és a 2000-es évek elején 2 szoba hozzáépítésével bővült. A fűtésért kondenzációs cirko kazán felel radiátorokon keresztül, ill. 2 db Midea hűtő- fűtő klíma is beszerelésre került. A fűtés kényelmesen szabályozható távvezérléssel interneten keresztül. A ház az elmúlt években jelentős felújításokon esett át. A 2010-es években megújult a tető, 2022-ben új Westen kondenzációs gázcirko kazán került beépítésre, 2023-ban pedig új Berg külső- és belső nyílászárókat szereltek be. A villamoshálózat is megújult ill. 3 fázisra és éjszakai árammal bővült. A homlokzati kőzetgyapot szigetelésnek köszönhetően a ház rezsije alacsony. A biztonságért korszerű, bejelzős riasztórendszer felel. Parkolásra a térkövezett udvaron van lehetőség. Ez a belváros közeli, tágas, praktikus otthon ideális választás lehet kisebb vagy nagyobb családok számára, akár 2 generáció együtt élésére is, de lokációjánál fogva remek lehetőségeket rejt magában befektetési céllal is, akár rövid- akár hosszú távú kiadásra. Per-, teher- és igénymentes. Ingatlanirodánk ügyvédi háttérrel, Otthon Start, Babaváró, CSOK+, falusi CSOK és egyéb kamatkedvezményes hitel ügyintézés lehetőségével áll ügyfelei rendelkezésére. Rugalmas megtekintés lehetőségével várom megtisztelő hívását!
Otthon Start Hitelprogram

Térkép

A hirdető elérhetősége

Eger Kertész utca 25 - OTP Ingatlanpont Iroda

Török Ferenc
+36 20 528