Eladó Ház- házrész
Hirdetéskód: 9224293
Gyöngyös Kossuth Lajos utca 22 - OTP Ingatlanpont Iroda
Ez a hirdetés megfelelhet a FIX 3%-os programnak.
Tudj meg többet a részletekről itt.
90 m2
ALAPTERÜLET2
SZOBASZÁMnincs megadva
ÉPÍTÉSElektromos
FŰTÉS- CSOK igénybe vehető nem
- Tetőtér beépíthető nem
- Építés éve 2015
- Fűtés Elektromos
- Klíma nem
- Szigetelt nem
A+++
A++
A+
A
B
C
D
E
F
G
H
I
Az ingatlan leírása
Eger, Almárvölgy csendes, természetközeli részén eladásra kínálunk egy 2015-ben épült, 90 m2-es, kétszintes családi házat, amely modern kialakításával és önfenntartó rendszerével ideális választás lehet mind állandó lakhatásra, mind hétvégi pihenőhelynek.
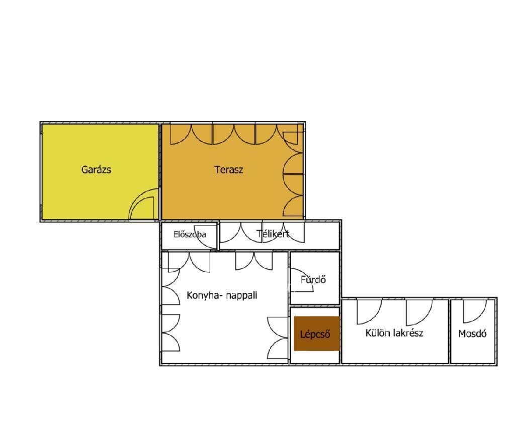
Az ingatlan földszintjén egy tágas amerikai konyhás nappali található, melynek meghitt hangulatáról egy kandalló gondoskodik, továbbá egy fürdőszoba, előszoba és egy napfényes télikert kapott helyet, míg a felső szinten egy rendkívül nagy méretű hálószoba, valamint egy külön mosdó található.
A ház kiváló energetikai tulajdonságokkal rendelkezik: szigetelt, napelem rendszerrel felszerelt, melynek köszönhetően teljesen önfenntartó. A hőszigetelt fa nyílászárók zsalugáterrel ellátottak, a vizet pedig házi vízmű biztosítja. A fűtés minden szinten hűtő-fűtő klíma, valamint a nappaliban található kandalló látja el.
A házhoz tartozik egy kétállásos, hidegburkolattal ellátott garázs, amely közvetlenül az épület mellett található. Az ingatlan egyik különlegessége a 35 m2-es, fedett, zárt terasz, amely egész évben kellemes helyszínt biztosít a kikapcsolódásra.
Az épület további helyiségei akár külön lakként is használható, hiszen saját fűtési rendszerrel és vizes kiállással rendelkezik. Az udvar gondosan parkosított, rendezett, és mérete miatt gazdálkodásra is kiválóan alkalmas.
Ha egy csendes, természetközeli, önfenntartó otthont keres Eger vonzáskörzetében, ne hagyja ki ezt a kivételes lehetőséget!
Az ingatlan földszintjén egy tágas amerikai konyhás nappali található, melynek meghitt hangulatáról egy kandalló gondoskodik, továbbá egy fürdőszoba, előszoba és egy napfényes télikert kapott helyet, míg a felső szinten egy rendkívül nagy méretű hálószoba, valamint egy külön mosdó található.
A ház kiváló energetikai tulajdonságokkal rendelkezik: szigetelt, napelem rendszerrel felszerelt, melynek köszönhetően teljesen önfenntartó. A hőszigetelt fa nyílászárók zsalugáterrel ellátottak, a vizet pedig házi vízmű biztosítja. A fűtés minden szinten hűtő-fűtő klíma, valamint a nappaliban található kandalló látja el.
A házhoz tartozik egy kétállásos, hidegburkolattal ellátott garázs, amely közvetlenül az épület mellett található. Az ingatlan egyik különlegessége a 35 m2-es, fedett, zárt terasz, amely egész évben kellemes helyszínt biztosít a kikapcsolódásra.
Az épület további helyiségei akár külön lakként is használható, hiszen saját fűtési rendszerrel és vizes kiállással rendelkezik. Az udvar gondosan parkosított, rendezett, és mérete miatt gazdálkodásra is kiválóan alkalmas.
Ha egy csendes, természetközeli, önfenntartó otthont keres Eger vonzáskörzetében, ne hagyja ki ezt a kivételes lehetőséget!