Eladó Ház- házrész
Hirdetéskód: 9198076
Győr Bajcsy-Zsilinszky út 27 - OTP Ingatlanpont Iroda
103 m2
ALAPTERÜLET2
SZOBASZÁMnincs megadva
ÉPÍTÉSnincs megadva
FŰTÉS- CSOK igénybe vehető nem
- Tetőtér beépíthető nem
- Építés éve 2025
- Klíma nem
- Szigetelt nem
A+++
A++
A+
A
B
C
D
E
F
G
H
I
Az ingatlan leírása
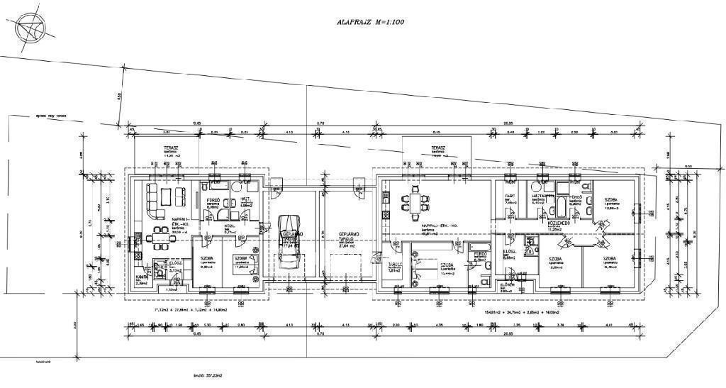
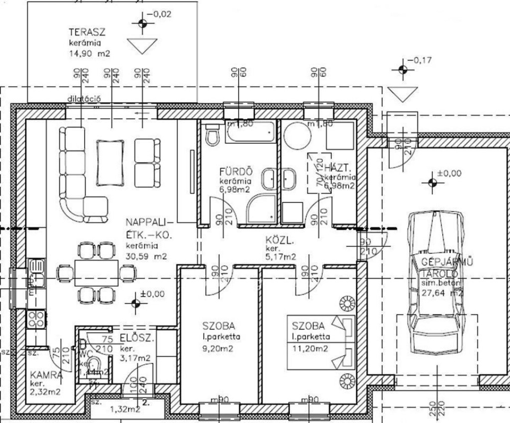
DUNASZEGEN eladásra kínálok 2025. decemberi átadással,
egy 1259 m2-es telket is magába foglaló, új építésű ikerházat.
A ház nettó alapterülete 103,05 m2, amely a nappali-étkező, konyha mellett két hálószobát,
egy fürdőszobát WC-vel, egy külön WC-t, háztartási helyiséget, fűtött garázst és egy teraszt foglal magába.
Az ár az emeltszintű fűtéskész (hőszivattyús fűtési rendszer) állapotra vonatkozik,
azonban a kivitelező igény szerint vállalja a kulcsrakész befejezést is a modernkori elvárásoknak megfelelőn a vevők igényeihez igazodva.
Amennyiben az ingatlan felkeltette az érdeklődését, keressen bizalommal!
Referenciaszám: M306635
egy 1259 m2-es telket is magába foglaló, új építésű ikerházat.
A ház nettó alapterülete 103,05 m2, amely a nappali-étkező, konyha mellett két hálószobát,
egy fürdőszobát WC-vel, egy külön WC-t, háztartási helyiséget, fűtött garázst és egy teraszt foglal magába.
Az ár az emeltszintű fűtéskész (hőszivattyús fűtési rendszer) állapotra vonatkozik,
azonban a kivitelező igény szerint vállalja a kulcsrakész befejezést is a modernkori elvárásoknak megfelelőn a vevők igényeihez igazodva.
Amennyiben az ingatlan felkeltette az érdeklődését, keressen bizalommal!
Referenciaszám: M306635