Eladó Ház- házrész
Hirdetéskód: 9304825
GDN Ingatlanhálózat - Csombók ELAN
Felújításhoz személyi kölcsönt keres? Kalkuláljon itt! →191.00 m2
ALAPTERÜLET4
SZOBASZÁMnincs megadva
ÉPÍTÉSnincs megadva
FŰTÉS- CSOK igénybe vehető nem
- Tetőtér beépíthető nem
- Klíma nem
- Szigetelt nem
A+++
A++
A+
A
B
C
D
E
F
G
H
I
Az ingatlan leírása
Dunaharasztin a Tópark Lakóparkban eladásra kínálunk egy 191 nm-es új építésű, panorámás VÍZPARTI ikerház felet magas minőségben kivitelezve.
Nettó 158 nm alapterület
+ 36 nm garázs
+ 22 nm terasz,
507 nm telekterület,
259.000.000 Ft
Prémium ikerház – modern élettér, kiváló elosztás
1014 m²-es telken két, egymás mellett elhelyezkedő lakás kerül átadásra, modern kialakítással és fiatalos, jól átlátható terekkel.
Lakásonkénti főbb adatok:
• 191 m² lakótér
• terasz + tetőterasz
• 2 beállásos garázs
• körbejárható teraszkapcsolat
Földszint
A földszinten tágas, világos amerikai konyhás étkező–nappali került kialakításra, közvetlen teraszkapcsolattal.
Ezen felül helyet kapott:
• vendég WC
• kamra
• gépészeti helyiség
Emelet
Az emeleti szinten:
• 3 különálló szoba
• tágas közlekedő
• háztartási helyiség
A nagy hálószoba saját fürdőszobával, WC-vel és gardróbbal rendelkezik.
A további két szoba szintén saját fürdőszoba–WC kapcsolattal ellátott.
A lakásokat körben terasz öleli, minden szobából közvetlen kijárással.
Parkolás
• lakásonként 2 autó számára garázs
• 1 autó parkolása a ház előtti területen biztosított
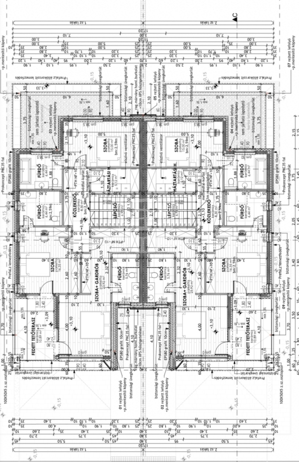
BEOSZTÁS:
Földszint:
- gépészet: 6 nm,
- konyha: 11 nm,
- étkező: 10 nm,
- nappali: 23 nm,
- kamra: 5 nm,
- előtér: 9 nm,
- wc: 4 nm,
- gépészet: 4 nm,
+ fedett terasz: 13 nm,
+ gépkocsi beálló: 36 nm
Emelet:
- szoba + gardrób: 24 nm,
- fürdő: 6 nm,
- szoba: 16 nm,
- fürdő: 6 nm,
- szoba: 15 nm,
- fürdő: 6 nm,
- háztartási helyiség: 5 nm,
- közlekedő: 5 nm,
- lépcső: 8 nm,
+ fedett tetőterasz: 11 nm.
MŰSZAKI TARTALOM:
Félig gépesített konyhabútor, konyhasziget
Bútorozott hálószoba, gardróbszekrények
Födémek, aljzatok: Monolit vasbeton födémek C30 betonminőségben melyekre a hangszigetelésen úsztatott aljzatbeton készül a lépéshang gátlás biztosítására és a burkolat fogadására. Födémbe elhelyezésre kerül a mennyezet, hűtés-fűtés és a légtechnika rendszer az aljzatban padlófűtés rendszer kerül.
Külső nyílászárók: Az ablakok és az erkély ajtók HOFSTADTER márkájú korszerű hőhídmentes műanyag alumínium 5 kamrás profilrendszerből készülnek, 3 rétegű hőszigetelő üvegezéssel a terveken jelölt helyen a nagyméretű erkélyajtók, tolóajtós kivitelűek homlokzati nyílászárók elektromos mozgatásúak.
Az épület homlokzatának egyediségét a letisztult színvilág biztosítja. A homlokzat képzése dryvit rendszerű nemes vakolattal fedve, illetve ragasztott kőlap burkolattal ellátva. Hőszigetelés 15 cm Austrotherm grafit, illetve a vasbeton szerkezeteken 5 cm kiegészítő hőszigetelés kerül.
A garázs távirányítós kapuval működtethető.
Hűtés-fűtés: Az épület hűtését és fűtését Nibe geotermikus hőszivattyú rendszer biztosítja. Beépített illatosító rendszerrel ellátott, szellőztető rendszer biztosítja mindenkor kellemes friss levegő ellátást. A fűtés a fő helyiségekben egyedileg szabályozható.
Légtechnika: A födém beépített Wolf légtechnikának köszönhetően ablaknyitás nélkül, portalan, csíramentes levegő jut az épületbe a fürdőszobákban és a WC helyiségében.
A különböző helyiségekben a burkolatok kifejezetten magas minőségű első osztályúak.
Konyha és beépített bútorok:
KÉRÉSRE egyedileg gyártott, minőségi asztalos üzemi kivitelezésben ujjlenyomatmentes felületképzéssel.
Kert:
Az épületet körülvevő telek területen teljes tereprendezés lesz.
Az ingatlan telek területe kerítéssel elválasztott.
Ütemezés:
20% foglaló, a fennmaradó összeg megbeszélés alapján.
Banki hitel nem akadály.
A lakópark 38 hektáron épül egy tó köré,
- étteremmel,
- wakeboard pályával,
- homokos stranddal,
- napozó szigettel,
- kivilágított futópályával,
- saját portaszolgálattal,
- horgászási lehetőséggel,
- privát sportközponttal
(kondipark, tenisz-, lábtenisz-, grundfoci-pálya),
- játszótérrel
- és kutyafuttatóval.
A lakóparktól 3 perces távolságban TESCO, ALDI, LIDL, KFC található.
Dunaharasztiból az M0-ás autóút pár perc alatt megközelíthető,
a főváros kb.10 km-es távolságban van.
AZ ADATOK TÁJÉKOZTATÓ JELLEGŰEK!
Irodánk 30 éves szakmai tapasztalattal áll ügyfelei rendelkezésére!
Várom szíves megkeresését. ...TOVÁBBI, TÖBBEZRES INGATLAN KÍNÁLAT: - GDN azonosító: 393916
Nettó 158 nm alapterület
+ 36 nm garázs
+ 22 nm terasz,
507 nm telekterület,
259.000.000 Ft
Prémium ikerház – modern élettér, kiváló elosztás
1014 m²-es telken két, egymás mellett elhelyezkedő lakás kerül átadásra, modern kialakítással és fiatalos, jól átlátható terekkel.
Lakásonkénti főbb adatok:
• 191 m² lakótér
• terasz + tetőterasz
• 2 beállásos garázs
• körbejárható teraszkapcsolat
Földszint
A földszinten tágas, világos amerikai konyhás étkező–nappali került kialakításra, közvetlen teraszkapcsolattal.
Ezen felül helyet kapott:
• vendég WC
• kamra
• gépészeti helyiség
Emelet
Az emeleti szinten:
• 3 különálló szoba
• tágas közlekedő
• háztartási helyiség
A nagy hálószoba saját fürdőszobával, WC-vel és gardróbbal rendelkezik.
A további két szoba szintén saját fürdőszoba–WC kapcsolattal ellátott.
A lakásokat körben terasz öleli, minden szobából közvetlen kijárással.
Parkolás
• lakásonként 2 autó számára garázs
• 1 autó parkolása a ház előtti területen biztosított
BEOSZTÁS:
Földszint:
- gépészet: 6 nm,
- konyha: 11 nm,
- étkező: 10 nm,
- nappali: 23 nm,
- kamra: 5 nm,
- előtér: 9 nm,
- wc: 4 nm,
- gépészet: 4 nm,
+ fedett terasz: 13 nm,
+ gépkocsi beálló: 36 nm
Emelet:
- szoba + gardrób: 24 nm,
- fürdő: 6 nm,
- szoba: 16 nm,
- fürdő: 6 nm,
- szoba: 15 nm,
- fürdő: 6 nm,
- háztartási helyiség: 5 nm,
- közlekedő: 5 nm,
- lépcső: 8 nm,
+ fedett tetőterasz: 11 nm.
MŰSZAKI TARTALOM:
Félig gépesített konyhabútor, konyhasziget
Bútorozott hálószoba, gardróbszekrények
Födémek, aljzatok: Monolit vasbeton födémek C30 betonminőségben melyekre a hangszigetelésen úsztatott aljzatbeton készül a lépéshang gátlás biztosítására és a burkolat fogadására. Födémbe elhelyezésre kerül a mennyezet, hűtés-fűtés és a légtechnika rendszer az aljzatban padlófűtés rendszer kerül.
Külső nyílászárók: Az ablakok és az erkély ajtók HOFSTADTER márkájú korszerű hőhídmentes műanyag alumínium 5 kamrás profilrendszerből készülnek, 3 rétegű hőszigetelő üvegezéssel a terveken jelölt helyen a nagyméretű erkélyajtók, tolóajtós kivitelűek homlokzati nyílászárók elektromos mozgatásúak.
Az épület homlokzatának egyediségét a letisztult színvilág biztosítja. A homlokzat képzése dryvit rendszerű nemes vakolattal fedve, illetve ragasztott kőlap burkolattal ellátva. Hőszigetelés 15 cm Austrotherm grafit, illetve a vasbeton szerkezeteken 5 cm kiegészítő hőszigetelés kerül.
A garázs távirányítós kapuval működtethető.
Hűtés-fűtés: Az épület hűtését és fűtését Nibe geotermikus hőszivattyú rendszer biztosítja. Beépített illatosító rendszerrel ellátott, szellőztető rendszer biztosítja mindenkor kellemes friss levegő ellátást. A fűtés a fő helyiségekben egyedileg szabályozható.
Légtechnika: A födém beépített Wolf légtechnikának köszönhetően ablaknyitás nélkül, portalan, csíramentes levegő jut az épületbe a fürdőszobákban és a WC helyiségében.
A különböző helyiségekben a burkolatok kifejezetten magas minőségű első osztályúak.
Konyha és beépített bútorok:
KÉRÉSRE egyedileg gyártott, minőségi asztalos üzemi kivitelezésben ujjlenyomatmentes felületképzéssel.
Kert:
Az épületet körülvevő telek területen teljes tereprendezés lesz.
Az ingatlan telek területe kerítéssel elválasztott.
Ütemezés:
20% foglaló, a fennmaradó összeg megbeszélés alapján.
Banki hitel nem akadály.
A lakópark 38 hektáron épül egy tó köré,
- étteremmel,
- wakeboard pályával,
- homokos stranddal,
- napozó szigettel,
- kivilágított futópályával,
- saját portaszolgálattal,
- horgászási lehetőséggel,
- privát sportközponttal
(kondipark, tenisz-, lábtenisz-, grundfoci-pálya),
- játszótérrel
- és kutyafuttatóval.
A lakóparktól 3 perces távolságban TESCO, ALDI, LIDL, KFC található.
Dunaharasztiból az M0-ás autóút pár perc alatt megközelíthető,
a főváros kb.10 km-es távolságban van.
AZ ADATOK TÁJÉKOZTATÓ JELLEGŰEK!
Irodánk 30 éves szakmai tapasztalattal áll ügyfelei rendelkezésére!
Várom szíves megkeresését. ...TOVÁBBI, TÖBBEZRES INGATLAN KÍNÁLAT: - GDN azonosító: 393916