Eladó Ház- házrész
Hirdetéskód: 9288688
Dunaharaszti Bocskai utca 10 - OTP Ingatlanpont Iroda
Felújításhoz személyi kölcsönt keres? Kalkuláljon itt! →236.00 m2
ALAPTERÜLET5
SZOBASZÁMnincs megadva
ÉPÍTÉSnincs megadva
FŰTÉS- CSOK igénybe vehető nem
- Tetőtér beépíthető nem
- Építés éve 1983
- Klíma nem
- Szigetelt nem
A+++
A++
A+
A
B
C
D
E
F
G
H
I
Az ingatlan leírása
****HAVI 1.000.000 Ft KIADÁSBÓL****
A LEGJOBB ÁR/ÉRTÉK ARÁNY!
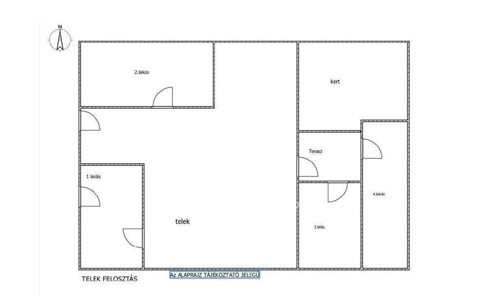
Eladásra kínálok egy 4 épülettel rendelkező, tehermentes ingatlant, amely befektetésnek is kiváló, csupán 30 percnyi távolságra a fővárostól, Dunaharaszti központi, csendes városrészében. Ez a 4 épületből álló, összesen 236 négyzetméteres hasznos alapterület egy 1116 négyzetméteres különlegesen nagy telken helyezkedik el. A 236 négyzetméterben nincs benne a két terasz hasznos négyzetmétere. Az első lakás a telek hátsó részén helyezkedik el, 65 négyzetméteres alapterülettel, közvetlen kertkapcsolattal, tágas teraszokkal. A beépített konyha mosogatógéppel villanytűzhellyel, elszívóval van felszerelve. A lakás további jellemzői: nappali és egy szoba, melyek parkettázottak, egy tágas konyha ebédlő, mely a nappaliból is elérhető ,egy tárolóhelység, jelenleg gardrób, egy kádas kiépített zuhanyzós fürdőszoba WC-vel. A lakásban radiátoros fűtés található kombicirkóval és H-tarifás hűtő-fűtő klímával a kellemes hőmérsékletért és gazdaságos üzemeltetésért. A második lakás 49 négyzetméteres alapterülettel. Kertre néző ablakokkal, külön mérőórákkal. A lakás további jellemzői: ebédlő és konyha közvetlen kapcsolattal,két teljesen különálló szoba, egy fürdőszoba zuhanyzóval és WC-vel, előszoba. A lakásban radiátoros fűtés található kombicirkóval és H-tarifás hűtő-fűtő klíma a kellemes klímáért és gazdaságos üzemeltetésért. A két különálló lakáshoz egy 15 négyzetméteres fedett terasz tartozik, és egy ásott kút, melyről az ingatlan öntözőrendszere is működik. A kertben gyermek homokozó és játszótér található. A kert füvesített, hátsó részét, cserjék és gyümölcsfák árnyékolják. A telek mérete további lehetőségeket kínál a jövőbeli tulajdonos számára. A harmadik épület mely 93,2 négyzetméter jelenleg vállalkozásként működik 25 éve, adottságait tekintve akár lakás is kialakítható vagy a tágas teremnek köszönhetően, -mely 48 négyzetméter-, nagyobb létszámú felnőtt, vagy gyermek befogadására alkalmas. Utcafronton elhelyezkedő nagy ablakok által a nap reggeltől estig bevilágítja a termet. Az épület további jellemzői: fedett előterasz ,előszoba, konyha beépített konyhabútorral. Öltözö zuhanyzóval és Wc-vel, fürdőszoba gyermekeknek 2 mosdóval és 3 Wc-vel. Az épületben radiátoros fűtés található kombicirkóval és H-tarifás hűtő-fűtő klíma a kellemes klímáért és gazdaságos üzemeltetésért. A negyedik épület jellemzői: közvetlen utcafronton elhelyezkedő 30 négyzetméteres terem mely kiscsoportos torna és tánc foglalkozásokra lett kialakítva. Parkettázott, négy, utcára nyíló ablakkal, fedett előterasszal, ahonnan a bejárat nyílik, hozzátartozó Wc és mosdóval mely 2 négyzetméter. Inverteres hűtő-fűtő klímával van felszerelve. További információk: az épületek 1983-ban épültek, téglából, ipari árammal és H-tarifás mérővel ellátott ingatlan egység. A nyílászárók nagyrészben kétrétegű üvegezésűek. A ház árnyékosabb oldala hőszigetelve lett. A ház csendes, nyugodt környéken található, madár csicsergős környezetben. A közelben óvoda, iskola, kisboltok találhatók, és pár perc autózással nagyobb bevásárlóközpontok is elérhetőek. A város dinamikusan fejlődik, infrastruktúrája vonzó az ideköltözők számára. A volánbusz megállója 3 perc sétára van, ahonnan 30 perc alatt elérhető Budapest Népliget. A vonat 2 perc séta. Családias nyugodt környék az ingatlan a város középpontjában található, bérbeadásra mindegyik épület alkalmas, ezért befektetésnek kiváló.
A LEGJOBB ÁR/ÉRTÉK ARÁNY!
Eladásra kínálok egy 4 épülettel rendelkező, tehermentes ingatlant, amely befektetésnek is kiváló, csupán 30 percnyi távolságra a fővárostól, Dunaharaszti központi, csendes városrészében. Ez a 4 épületből álló, összesen 236 négyzetméteres hasznos alapterület egy 1116 négyzetméteres különlegesen nagy telken helyezkedik el. A 236 négyzetméterben nincs benne a két terasz hasznos négyzetmétere. Az első lakás a telek hátsó részén helyezkedik el, 65 négyzetméteres alapterülettel, közvetlen kertkapcsolattal, tágas teraszokkal. A beépített konyha mosogatógéppel villanytűzhellyel, elszívóval van felszerelve. A lakás további jellemzői: nappali és egy szoba, melyek parkettázottak, egy tágas konyha ebédlő, mely a nappaliból is elérhető ,egy tárolóhelység, jelenleg gardrób, egy kádas kiépített zuhanyzós fürdőszoba WC-vel. A lakásban radiátoros fűtés található kombicirkóval és H-tarifás hűtő-fűtő klímával a kellemes hőmérsékletért és gazdaságos üzemeltetésért. A második lakás 49 négyzetméteres alapterülettel. Kertre néző ablakokkal, külön mérőórákkal. A lakás további jellemzői: ebédlő és konyha közvetlen kapcsolattal,két teljesen különálló szoba, egy fürdőszoba zuhanyzóval és WC-vel, előszoba. A lakásban radiátoros fűtés található kombicirkóval és H-tarifás hűtő-fűtő klíma a kellemes klímáért és gazdaságos üzemeltetésért. A két különálló lakáshoz egy 15 négyzetméteres fedett terasz tartozik, és egy ásott kút, melyről az ingatlan öntözőrendszere is működik. A kertben gyermek homokozó és játszótér található. A kert füvesített, hátsó részét, cserjék és gyümölcsfák árnyékolják. A telek mérete további lehetőségeket kínál a jövőbeli tulajdonos számára. A harmadik épület mely 93,2 négyzetméter jelenleg vállalkozásként működik 25 éve, adottságait tekintve akár lakás is kialakítható vagy a tágas teremnek köszönhetően, -mely 48 négyzetméter-, nagyobb létszámú felnőtt, vagy gyermek befogadására alkalmas. Utcafronton elhelyezkedő nagy ablakok által a nap reggeltől estig bevilágítja a termet. Az épület további jellemzői: fedett előterasz ,előszoba, konyha beépített konyhabútorral. Öltözö zuhanyzóval és Wc-vel, fürdőszoba gyermekeknek 2 mosdóval és 3 Wc-vel. Az épületben radiátoros fűtés található kombicirkóval és H-tarifás hűtő-fűtő klíma a kellemes klímáért és gazdaságos üzemeltetésért. A negyedik épület jellemzői: közvetlen utcafronton elhelyezkedő 30 négyzetméteres terem mely kiscsoportos torna és tánc foglalkozásokra lett kialakítva. Parkettázott, négy, utcára nyíló ablakkal, fedett előterasszal, ahonnan a bejárat nyílik, hozzátartozó Wc és mosdóval mely 2 négyzetméter. Inverteres hűtő-fűtő klímával van felszerelve. További információk: az épületek 1983-ban épültek, téglából, ipari árammal és H-tarifás mérővel ellátott ingatlan egység. A nyílászárók nagyrészben kétrétegű üvegezésűek. A ház árnyékosabb oldala hőszigetelve lett. A ház csendes, nyugodt környéken található, madár csicsergős környezetben. A közelben óvoda, iskola, kisboltok találhatók, és pár perc autózással nagyobb bevásárlóközpontok is elérhetőek. A város dinamikusan fejlődik, infrastruktúrája vonzó az ideköltözők számára. A volánbusz megállója 3 perc sétára van, ahonnan 30 perc alatt elérhető Budapest Népliget. A vonat 2 perc séta. Családias nyugodt környék az ingatlan a város középpontjában található, bérbeadásra mindegyik épület alkalmas, ezért befektetésnek kiváló.