Eladó Ház- házrész
Hirdetéskód: 9283658
GDN Ingatlanhálózat - Csombók ELAN
Felújításhoz személyi kölcsönt keres? Kalkuláljon itt! →205.00 m2
ALAPTERÜLET6
SZOBASZÁMnincs megadva
ÉPÍTÉSGáz (cirkó)
FŰTÉS- CSOK igénybe vehető nem
- Tetőtér beépíthető nem
- Fűtés Gáz (cirkó)
- Klíma nem
- Szigetelt nem
A+++
A++
A+
A
B
C
D
E
F
G
H
I
Az ingatlan leírása
Dunaharasztiban új építésű önálló családi ház, 2026-os átadással eladó.
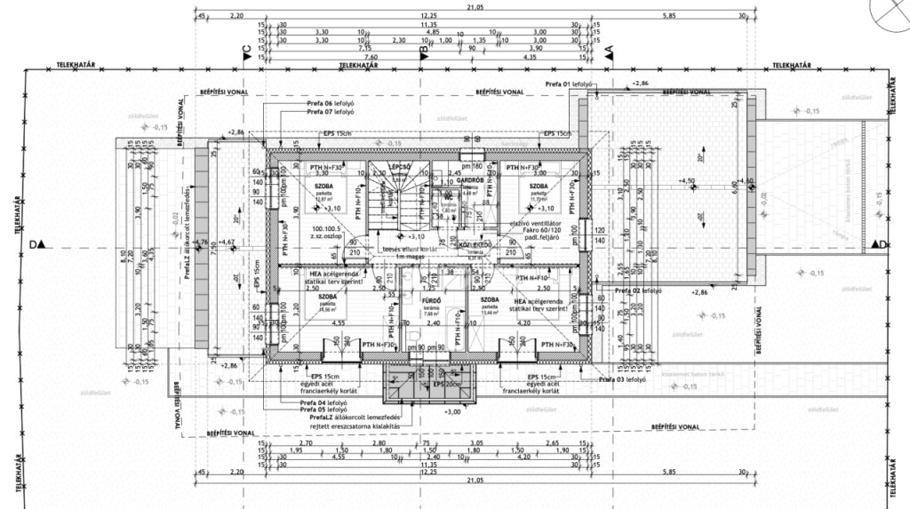
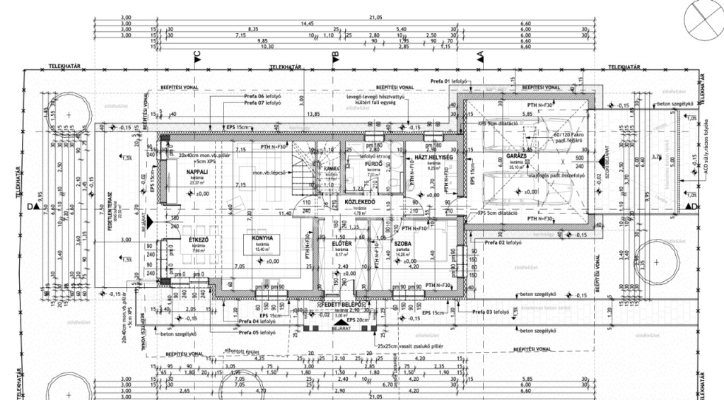
Petőfi-liget városrészén a Bezerédi lakópark közelében, 566 nm-es telken, két szintes 5 hálószobás két fürdős, dupla garázzsal rendelkező ingatlan várja új tulajdonosát.
A modern kialakítású energiahatékony épület belső terei még igény szerint módosíthatóak, az építkezés ezen szakaszában.
A kivitelező referencia munkái megtekinthetőek.
Főbb paraméterek:
- nettó alapterület: 205m2 (169,83+35,10 garázs),
- 566 m2 telek,
- földszinten amerikai konyhás nappali, egy szoba, kamra, fürdőszoba, háztartási helyiség, dupla garázs,
- emeleten négy hálószoba, fürdőszoba, külön Wc, gardrób.
Műszaki paraméterek:
- 30-as kerámia főfalak, 10 cm Ytong válaszfal,
- főfal 15 cm EPS, aljzatban 12 cm, födémen 25 cm szigetelés
- járda az épület körül, kocsibeálló a telken,
- 3 x 16 A,
- 3,2 KW napelem – alacsony rezsiköltségek,
- 2 állásos garázs, szankcionált automata kapuval,
- 3 rétegű 6 légkamrás műanyag nyílászárókkal redőnnyel, szúnyoghálóval,
- fűtés és melegvízellátás kondenzációs gázkazánról vagy hőszivattyúval,
- padlófűtés és radiátoros hőleadók,
- hűtő-fűtő klíma előkészítés,
- riasztórendszer, kaputelefon előkészítés,
- mészkőpárkányok,
- burkolatok 6000Ft/m2-ig a vételárban.
Várom szíves hívását! ...TOVÁBBI, TÖBBEZRES INGATLAN KÍNÁLAT: - GDN azonosító: 392986
Petőfi-liget városrészén a Bezerédi lakópark közelében, 566 nm-es telken, két szintes 5 hálószobás két fürdős, dupla garázzsal rendelkező ingatlan várja új tulajdonosát.
A modern kialakítású energiahatékony épület belső terei még igény szerint módosíthatóak, az építkezés ezen szakaszában.
A kivitelező referencia munkái megtekinthetőek.
Főbb paraméterek:
- nettó alapterület: 205m2 (169,83+35,10 garázs),
- 566 m2 telek,
- földszinten amerikai konyhás nappali, egy szoba, kamra, fürdőszoba, háztartási helyiség, dupla garázs,
- emeleten négy hálószoba, fürdőszoba, külön Wc, gardrób.
Műszaki paraméterek:
- 30-as kerámia főfalak, 10 cm Ytong válaszfal,
- főfal 15 cm EPS, aljzatban 12 cm, födémen 25 cm szigetelés
- járda az épület körül, kocsibeálló a telken,
- 3 x 16 A,
- 3,2 KW napelem – alacsony rezsiköltségek,
- 2 állásos garázs, szankcionált automata kapuval,
- 3 rétegű 6 légkamrás műanyag nyílászárókkal redőnnyel, szúnyoghálóval,
- fűtés és melegvízellátás kondenzációs gázkazánról vagy hőszivattyúval,
- padlófűtés és radiátoros hőleadók,
- hűtő-fűtő klíma előkészítés,
- riasztórendszer, kaputelefon előkészítés,
- mészkőpárkányok,
- burkolatok 6000Ft/m2-ig a vételárban.
Várom szíves hívását! ...TOVÁBBI, TÖBBEZRES INGATLAN KÍNÁLAT: - GDN azonosító: 392986