Eladó Ház- házrész
Hirdetéskód: 9245337

Dunaharaszti, Dózsa György út 45. (OTPIP)

FIX 3% Program

Ez a hirdetés megfelelhet a FIX 3%-os programnak.
Tudj meg többet a részletekről itt.

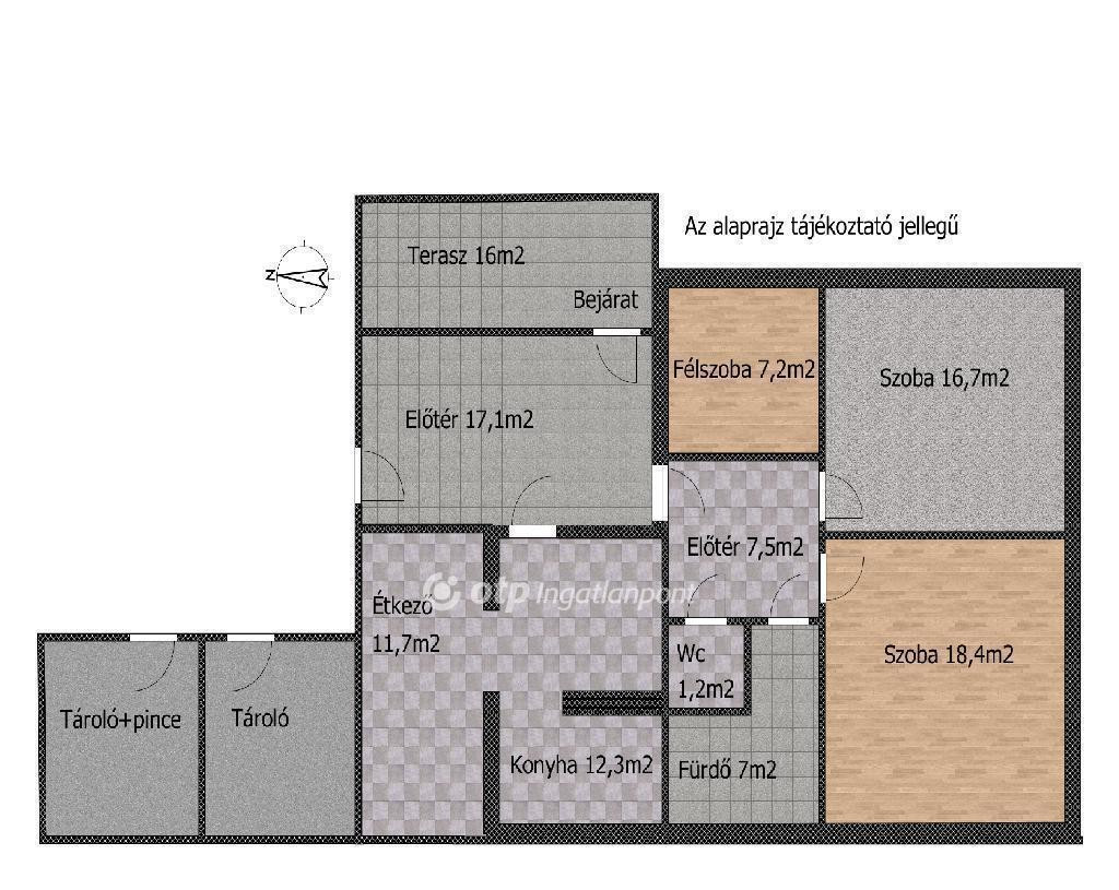
107.00 m2
ALAPTERÜLET
2
SZOBASZÁM
nincs megadva
ÉPÍTÉS
nincs megadva
FŰTÉS
  • CSOK igénybe vehető nem
  • Tetőtér beépíthető nem
  • Építés éve 1960
  • Klíma nem
  • Szigetelt nem
Energetikai besorolás: Nincs meghatározva
A+++
A++
A+
A
B
C
D
E
F
G
H
I

Az ingatlan leírása

Eladóvá vált Dunaharaszti egyik nyugodt részén egy 536 m2-es telken lévő 107 m2-es, 2+1 szobás, felújított családi ház. Az ingatlan 60-as években épült, de ma már szinte minden porcikája megújult. A ház különlegessége, hogy az utcafronti része még a régi, masszív vályog falazattal készült, míg a hátsó rész már modern téglából épült, 10cm-es hőszigeteléssel ellátva, így a hangulatosság és a korszerűség szépen találkozik az ingatlanban. A ház nemrégiben jelentős felújításon ment keresztül, amely során számos lényeges változtatást végeztek el, a kényelmes és biztonságos mindennapok érdekében. A fűtési rendszer modern, az ablakok korszerűek, a burkolatok igényesek, és a klímakomfort is megoldott. A kert mérete ideális: van benne elég hely pihenésre, kertészkedésre vagy akár egy hétvégi grillezésre is. Több melléképület és kényelmes autóbeállási lehetőség is rendelkezésre áll. A környék családbarát és nyugodt, ugyanakkor remekül megközelíthető, autóval és tömegközlekedéssel egyaránt. A közeli óvodák, iskolák, boltok, valamint a sportolási és kulturális lehetőségek mind egy karnyújtásnyira vannak. Budapest autóval gyorsan elérhető, de a jól kiépített tömegközlekedésnek köszönhetően azok számára is kényelmes megoldás, akik naponta ingáznak a fővárosba munkába vagy iskolába. Az OTP Bankcsoport teljes körű ügyintézéssel áll az eladók és a vevők rendelkezésére! A kínálatunkból választott ingatlan finanszírozásához kedvezményes hitelkonstrukciókat kínálunk. Az adásvételi szerződés megkötéséhez igény szerint megbízható ügyvédi közreműködést biztosítunk és segítséget nyújtunk az adásvételhez kapcsolódó ügyek intézéséhez. Referenciaszám: M318950

Térkép

A hirdető elérhetősége

Dunaharaszti, Dózsa György út 45. (OTPIP)

Szuna Ferenc
+36 20 939