Eladó Ház- házrész
Hirdetéskód: 9250379
GDN Ingatlanhálózat - Csombók ELAN
74.00 m2
ALAPTERÜLET3
SZOBASZÁMnincs megadva
ÉPÍTÉSGáz (héra)
FŰTÉS- CSOK igénybe vehető nem
- Tetőtér beépíthető nem
- Fűtés Gáz (héra)
- Klíma nem
- Szigetelt nem
A+++
A++
A+
A
B
C
D
E
F
G
H
I
Az ingatlan leírása
Dunaharaszti, Központhoz közel eladó egy közepes állapotú 74 m2-es tégla építésű családi ház 436 m2-es saroktelekkel.
RENDELŐNEK, IRODÁNAK is alkalmas lehet a kiváló elhelyezkedése miatt, világos, jó energiájú ház.
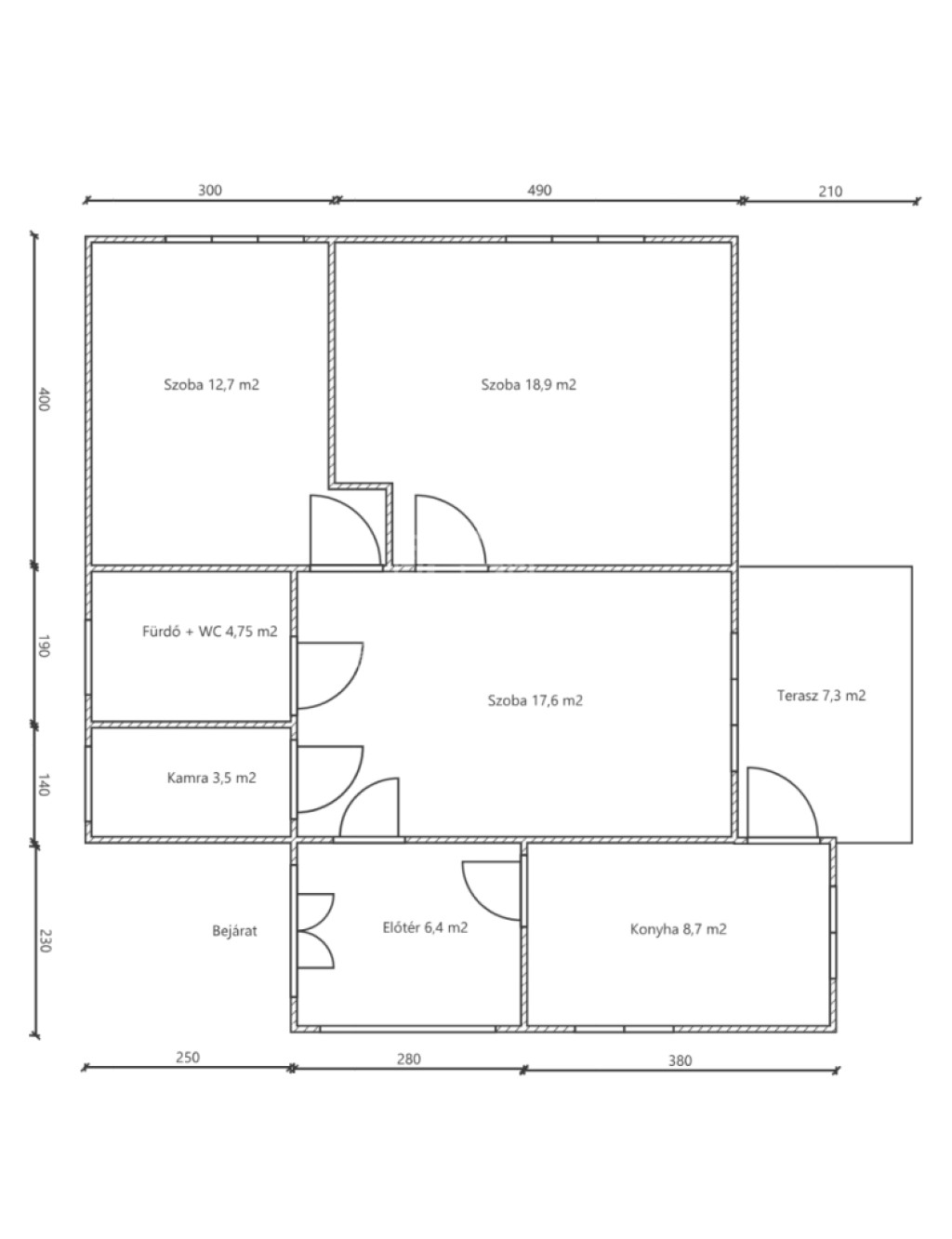
Beosztása:
- előtér 6,4 m2,
- konyha 8,7 m2,
- szoba 17,6 m2,
- szoba 18,9 m2,
- szoba 12,7 m2,
- fürdő+WC 4,75 m2,
- kamra 3,5 m2,
- pince 5 m2
plusz terasz 7,3 m2
Az ingatlanon az előtér és konyha hozzáépítése, valamint a fürdőszoba felújítása 2006-ban történt. A tető nagyon jó állapotú, fűtése Héra gázkazánnal, illetve elektromos konvektorokkal megoldott. A fa nyílászárók védőráccsal és redőnnyel ellátottak. Burkolatok a szobákban parketta, az előtér és konyha pedig vinyl. A hangulatos terasz belső nyugodt kertre néz, ami járólappal burkolt. A kerítés időtálló gránitból készült.
A telken egy 20 m2-es garázs található, plusz egy fedett tároló, valamint fúrt kút hidrofor szivattyúval.
Frekventált helyen van, közel a Rendelőintézet, Kormányablak, iskola, óvoda, posta és számos szolgáltatás. A HÉV és busz megálló, valamint bevásárlási lehetőség 10 perc sétára.
Az ingatlan nem hitelezhető!
Amivel segítjük az Ön ingatlanvásárlását:
- jogi háttér,
- földhivatali ügyintézés,
- energetikai tanúsítvány,
- a vevő számára az ingatlanközvetítés ingyenes.
Irodánk 30 éves szakmai tapasztalattal áll ügyfelei rendelkezésére!
Várom szíves megkeresését! ...TOVÁBBI, TÖBBEZRES INGATLAN KÍNÁLAT: - GDN azonosító: 391672
RENDELŐNEK, IRODÁNAK is alkalmas lehet a kiváló elhelyezkedése miatt, világos, jó energiájú ház.
Beosztása:
- előtér 6,4 m2,
- konyha 8,7 m2,
- szoba 17,6 m2,
- szoba 18,9 m2,
- szoba 12,7 m2,
- fürdő+WC 4,75 m2,
- kamra 3,5 m2,
- pince 5 m2
plusz terasz 7,3 m2
Az ingatlanon az előtér és konyha hozzáépítése, valamint a fürdőszoba felújítása 2006-ban történt. A tető nagyon jó állapotú, fűtése Héra gázkazánnal, illetve elektromos konvektorokkal megoldott. A fa nyílászárók védőráccsal és redőnnyel ellátottak. Burkolatok a szobákban parketta, az előtér és konyha pedig vinyl. A hangulatos terasz belső nyugodt kertre néz, ami járólappal burkolt. A kerítés időtálló gránitból készült.
A telken egy 20 m2-es garázs található, plusz egy fedett tároló, valamint fúrt kút hidrofor szivattyúval.
Frekventált helyen van, közel a Rendelőintézet, Kormányablak, iskola, óvoda, posta és számos szolgáltatás. A HÉV és busz megálló, valamint bevásárlási lehetőség 10 perc sétára.
Az ingatlan nem hitelezhető!
Amivel segítjük az Ön ingatlanvásárlását:
- jogi háttér,
- földhivatali ügyintézés,
- energetikai tanúsítvány,
- a vevő számára az ingatlanközvetítés ingyenes.
Irodánk 30 éves szakmai tapasztalattal áll ügyfelei rendelkezésére!
Várom szíves megkeresését! ...TOVÁBBI, TÖBBEZRES INGATLAN KÍNÁLAT: - GDN azonosító: 391672