Eladó Ház- házrész
Hirdetéskód: 9288801
Dunaharaszti Bocskai utca 10 - OTP Ingatlanpont Iroda
Felújításhoz személyi kölcsönt keres? Kalkuláljon itt! →236.00 m2
ALAPTERÜLET5
SZOBASZÁMnincs megadva
ÉPÍTÉSnincs megadva
FŰTÉS- CSOK igénybe vehető nem
- Tetőtér beépíthető nem
- Építés éve 1983
- Klíma nem
- Szigetelt nem
A+++
A++
A+
A
B
C
D
E
F
G
H
I
Az ingatlan leírása
Ne hagyja ki a lehetőséget! Befektetés Dunaharaszti szívében, ahol a jövő épül!
Képzelje el: egy saját, kertes családi ház, ahol a nyugalom és a privát szféra garantált. És mindeközben két további lakás biztosítja a stabil havi bevételt!
De ez még nem minden! Dunaharaszti dinamikus népességnövekedése és a kevés óvoda, bölcsőde hatalmas lehetőséget rejt! Itt az ideje, hogy kihasználja a piaci rést!
Miért éri meg most befektetni?
Növekvő igény: a városban egyre több a kisgyermekes család, akik minőségi óvodai, bölcsődei ellátást keresnek.
Hiánypótló szolgáltatás: legyen Ön az, aki megoldja a szülők problémáját egy speciális igényű vagy nemzetiségi óvodával, bölcsődével!
Kiváló lokáció: a kínált ingatlan egy korábban sikeres magánóvodaként működött, így rendelkezik a szükséges infrastruktúrával és engedélyekkel (ez utóbbit ellenőrizni szükséges).
Rugalmas hasznosítás: a harmadik épület tágas tereivel (48 nm-es terem) ideális lehet nagyobb csoportok fogadására, legyen szó akár gyermekfoglalkozásokról, akár felnőtt képzésekről. Akár újabb lakássá is alakítható!
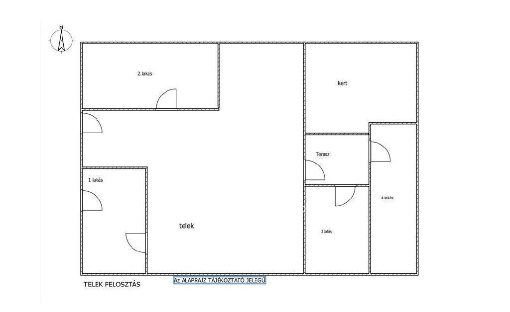
Kiemelkedő telek: a 1116 nm-es telek további bővítési lehetőségeket kínál, akár újabb épületek, játszóterek kialakítására.
Bevételt termelő ingatlanegyüttes: a két különálló lakás azonnal bérbe adható, biztosítva a folyamatos jövedelmet.
Család és befektetés egy helyen: lakjon kényelmesen a saját házában, miközben a többi épület pénzt termel Önnek!
Az ingatlan előnyei:
4 épület egy telken: családi ház, két különálló lakás és egy sokoldalú, korábban óvodaként működő épület.
Összesen 236 nm hasznos alapterület + teraszok: tágas terek minden igényre.
Központi, mégis csendes elhelyezkedés Dunaharasztiban: Minden fontos szolgáltatás könnyen elérhető.
Jó közlekedés: Budapest 30 perc alatt elérhető busszal vagy vonattal.
Tehermentes: gyors és zökkenőmentes vásárlás.
Külön mérőórák: a lakások önállóan elszámolhatóak.
Karbantartott állapot: részben felújított, hőszigetelt épületek.
H-tarifás klímák és kombicirkók: gazdaságos fűtés és hűtés.
Öntözőrendszer ásott kútról: alacsony fenntartási költségek.
Játszótér és kerti lehetőségek: ideális családoknak és gyermekeknek.
Ragadja meg a lehetőséget, és fektessen egy olyan ingatlanba, amely nem csak otthont, hanem jövőt is kínál!
Hívjon most, és tekintse meg személyesen ezt a kivételes befektetési lehetőséget Dunaharaszti szívében!
Képzelje el: egy saját, kertes családi ház, ahol a nyugalom és a privát szféra garantált. És mindeközben két további lakás biztosítja a stabil havi bevételt!
De ez még nem minden! Dunaharaszti dinamikus népességnövekedése és a kevés óvoda, bölcsőde hatalmas lehetőséget rejt! Itt az ideje, hogy kihasználja a piaci rést!
Miért éri meg most befektetni?
Növekvő igény: a városban egyre több a kisgyermekes család, akik minőségi óvodai, bölcsődei ellátást keresnek.
Hiánypótló szolgáltatás: legyen Ön az, aki megoldja a szülők problémáját egy speciális igényű vagy nemzetiségi óvodával, bölcsődével!
Kiváló lokáció: a kínált ingatlan egy korábban sikeres magánóvodaként működött, így rendelkezik a szükséges infrastruktúrával és engedélyekkel (ez utóbbit ellenőrizni szükséges).
Rugalmas hasznosítás: a harmadik épület tágas tereivel (48 nm-es terem) ideális lehet nagyobb csoportok fogadására, legyen szó akár gyermekfoglalkozásokról, akár felnőtt képzésekről. Akár újabb lakássá is alakítható!
Kiemelkedő telek: a 1116 nm-es telek további bővítési lehetőségeket kínál, akár újabb épületek, játszóterek kialakítására.
Bevételt termelő ingatlanegyüttes: a két különálló lakás azonnal bérbe adható, biztosítva a folyamatos jövedelmet.
Család és befektetés egy helyen: lakjon kényelmesen a saját házában, miközben a többi épület pénzt termel Önnek!
Az ingatlan előnyei:
4 épület egy telken: családi ház, két különálló lakás és egy sokoldalú, korábban óvodaként működő épület.
Összesen 236 nm hasznos alapterület + teraszok: tágas terek minden igényre.
Központi, mégis csendes elhelyezkedés Dunaharasztiban: Minden fontos szolgáltatás könnyen elérhető.
Jó közlekedés: Budapest 30 perc alatt elérhető busszal vagy vonattal.
Tehermentes: gyors és zökkenőmentes vásárlás.
Külön mérőórák: a lakások önállóan elszámolhatóak.
Karbantartott állapot: részben felújított, hőszigetelt épületek.
H-tarifás klímák és kombicirkók: gazdaságos fűtés és hűtés.
Öntözőrendszer ásott kútról: alacsony fenntartási költségek.
Játszótér és kerti lehetőségek: ideális családoknak és gyermekeknek.
Ragadja meg a lehetőséget, és fektessen egy olyan ingatlanba, amely nem csak otthont, hanem jövőt is kínál!
Hívjon most, és tekintse meg személyesen ezt a kivételes befektetési lehetőséget Dunaharaszti szívében!