Eladó Ház- házrész
Hirdetéskód: 9312104
Érd Bajcsy-Zsilinszky út 160 - OTP Ingatlanpont Iroda
Felújításhoz személyi kölcsönt keres? Kalkuláljon itt! →
Ez a hirdetés megfelelhet a FIX 3%-os programnak.
Tudj meg többet a részletekről itt.
90.00 m2
ALAPTERÜLET4
SZOBASZÁMnincs megadva
ÉPÍTÉSEgyéb fűtés
FŰTÉS- CSOK igénybe vehető nem
- Belső szintek 1
- Tetőtér beépíthető nem
- Építés éve 2026
- Fűtés Egyéb fűtés
- Klíma nem
- Szigetelt nem
A+++
A++
A+
A
B
C
D
E
F
G
H
I
Az ingatlan leírása
Diósd Sashegyi részén eladó egy új építésű, nappali + 3 hálószobás ikerházfél kb. 400 m2-es saját telekrésszel, teljesen leválasztva.
Főbb műszaki paraméterek: 30cm Porotherm falazat 15 cm-es dryvit szigeteléssel, cserépfedéssel (szeglemezes tetőszerkezet és a prémium Terrán (vagy Renova) tetőcserép), 3 rétegű üvegezésű műanyag ablakok, fűtése hőszivattyú padlófűtéssel, ami az Elasztomer bitumenes vízszigeteléssel és a 10 cm-es lépésálló aljzatszigeteléssel együtt kiváló energetikai besorolást eredményeznek.
A házhoz tartozni fog egy fedett gépkocsibeálló és egy délnyugati tájolású terasz.
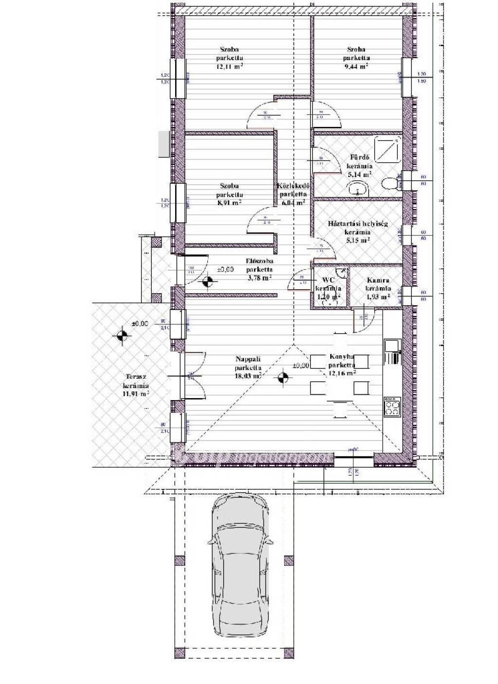
Helyiségek:
Amerikai konyhás nappali 30,2 m2
Szoba 12,1 m2
Szoba 9,4 m2
Szoba 8,9 m2
Fürdőszoba 5,1 m2
Mosókonyha 5,1 m2
Előszoba 3,8 m2
Közlekedő 6 m2
Kamra 1,9 m2
WC 1,2 m2
Terasz 11,9 m2
Az építtető számos referenciával rendelkező (9 éves) cég, Otthon start program (3%-os hitel) igényelhető.
Az ár a kulcsrakész állapotra vonatkozik, várható átadás: 2026.nyár
A képek között szerepelnek referencia- és látványképek is.
Autóval 5 perc alatt megközelíthető iskola, óvoda, orvosi rendelő, bevásárlási lehetőségek, Gépkocsival az M0, M1, M6 és M7 autópálya szintén 5 perc alatt elérhető.
A kínálatunkból választott ingatlan finanszírozásához kedvezményes hitel- és lízingkonstrukciókat kínálunk.
Az adásvételi szerződés megkötéséhez igény szerint megbízható ügyvédi közreműködést biztosítunk, és segítséget nyújtunk az adásvételhez kapcsolódó ügyek intézéséhez.
Hívjon bizalommal!
Főbb műszaki paraméterek: 30cm Porotherm falazat 15 cm-es dryvit szigeteléssel, cserépfedéssel (szeglemezes tetőszerkezet és a prémium Terrán (vagy Renova) tetőcserép), 3 rétegű üvegezésű műanyag ablakok, fűtése hőszivattyú padlófűtéssel, ami az Elasztomer bitumenes vízszigeteléssel és a 10 cm-es lépésálló aljzatszigeteléssel együtt kiváló energetikai besorolást eredményeznek.
A házhoz tartozni fog egy fedett gépkocsibeálló és egy délnyugati tájolású terasz.
Helyiségek:
Amerikai konyhás nappali 30,2 m2
Szoba 12,1 m2
Szoba 9,4 m2
Szoba 8,9 m2
Fürdőszoba 5,1 m2
Mosókonyha 5,1 m2
Előszoba 3,8 m2
Közlekedő 6 m2
Kamra 1,9 m2
WC 1,2 m2
Terasz 11,9 m2
Az építtető számos referenciával rendelkező (9 éves) cég, Otthon start program (3%-os hitel) igényelhető.
Az ár a kulcsrakész állapotra vonatkozik, várható átadás: 2026.nyár
A képek között szerepelnek referencia- és látványképek is.
Autóval 5 perc alatt megközelíthető iskola, óvoda, orvosi rendelő, bevásárlási lehetőségek, Gépkocsival az M0, M1, M6 és M7 autópálya szintén 5 perc alatt elérhető.
A kínálatunkból választott ingatlan finanszírozásához kedvezményes hitel- és lízingkonstrukciókat kínálunk.
Az adásvételi szerződés megkötéséhez igény szerint megbízható ügyvédi közreműködést biztosítunk, és segítséget nyújtunk az adásvételhez kapcsolódó ügyek intézéséhez.
Hívjon bizalommal!