Eladó Ház- házrész
Hirdetéskód: 9258410
Bucalics Roxána
162.00 m2
ALAPTERÜLET5
SZOBASZÁMnincs megadva
ÉPÍTÉSnincs megadva
FŰTÉS- CSOK igénybe vehető nem
- Tetőtér beépíthető nem
- Építés éve 2025
- Klíma nem
- Szigetelt nem
A+++
A++
A+
A
B
C
D
E
F
G
H
I
Az ingatlan leírása
MAGAS MŰSZAKI TARTALOMMAL ÉPÜLŐ IKERHÁZ ELADÓ!
Csak garázzsal érintkeznek, lakótérrel nincs közös falazat, emeleten pedig egyáltalán nem érintkeznek!
Most Öné lehet kedvező m2 áron egy nettó összesen 194 m2-es 2 szintes ikerház. Diósd Égettvölgy részén épül. CSAK GARÁZZSAL ÉRINTKEZNEK.
Tágas, világos terek köszönhetően az egyedi jó méretű nyílászáróknak, család barát elosztással.
Nettó hasznos lakótér 131 m2 + 18,30 m2 garázs + 2 db terasz / 28,35 m2 + 16,35 m2 /
Hozzá tartozó telek mérete 642 m2.
Az ingatlant a 2025-ös év kedvezményes feltételeivel is megtudja vásárolni, az építkezés céges.
Foglalja le már most leendő otthonát 10%-al. Az építkezés szerkezetkész állapotnál tart így saját ízlése és igénye szerint választhatja ki a ház belső kinézetét illetve végig követheti az építkezést.
Amennyiben egyedi igényei lennének az elosztással kapcsolatban a kivitelező rugalmas a változtatásokra.
Elosztását tekintve:
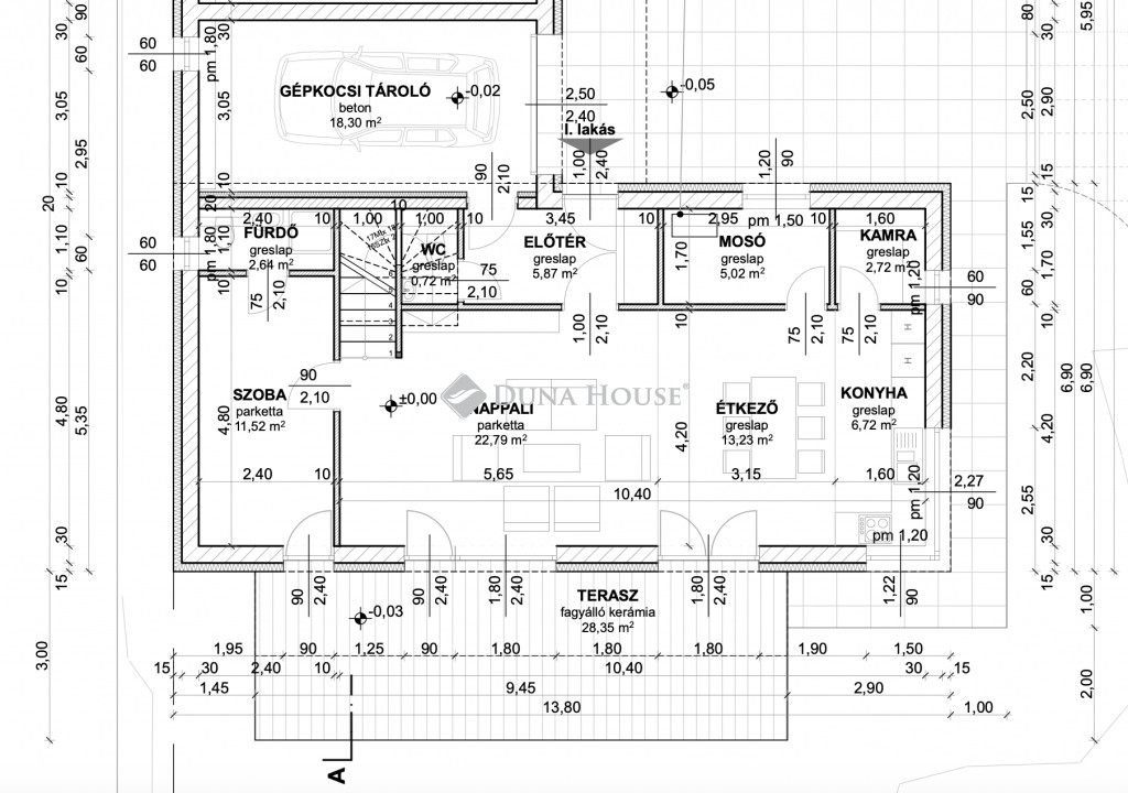
Földszint:
- 1 állásos garázs
- előszoba
- külön mellékhelyiség
- háztartási helyiség
- 1 hálószoba saját fürdőszobával
- tágas és világos amerikai konyhás nappali terasz és kertkapcsolattal
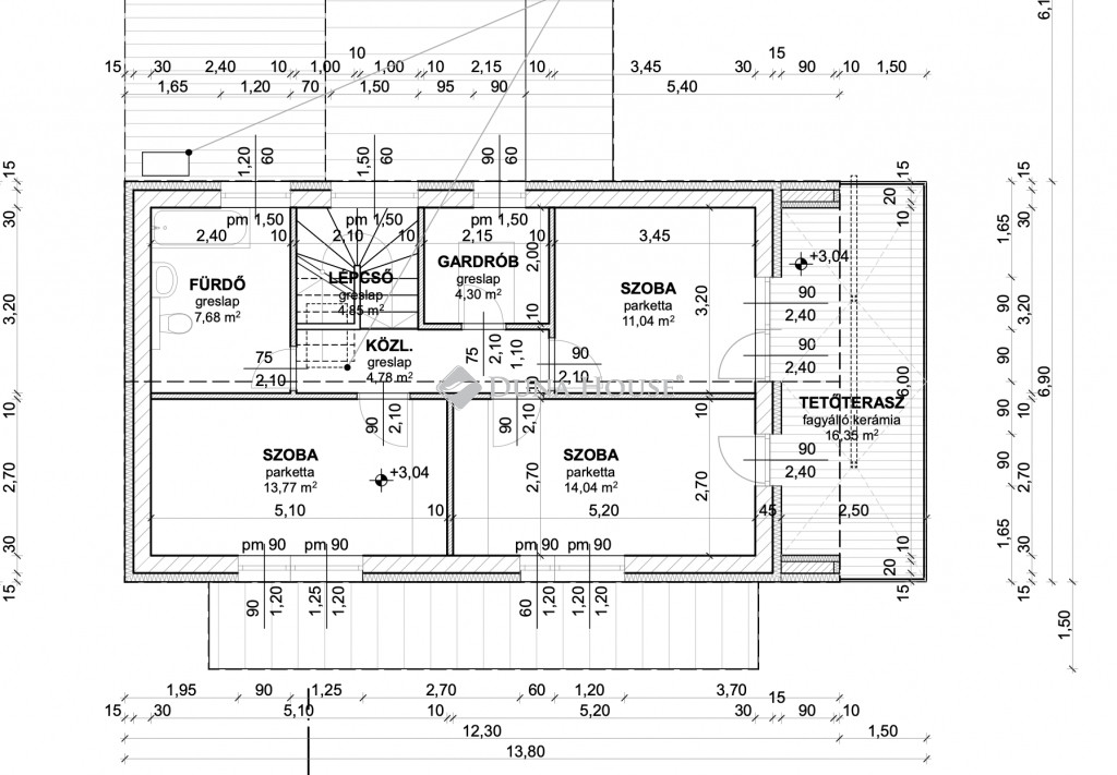
Emelet:
- 3 egész méretű hálószoba
- fürdőszoba
- gardrób
- hangulatos, félig fedett 16,35 m2-es terasz
Műszaki adatok:
- 30-as Porotherm tégla falazat, 10 cm tégla válaszfalak
- 15 cm homlokzati szigetelés
- Födém szigetelés: 2x15cm vastag szálas kőzetgyapot szigetelés
- Hőszivattyú fűtés 230 literes indirect tárolóval
- Minden helyiségben padlófűtés
- Mennyezet hűtés
- Hővisszanyerős szellőztető rendszer
- Tetőn korcolt lemezfedés
- 3 rétegű 5 légkamrás nyílászárók egyedi antracit színben
- Riasztó, kamera, napelem előkészítés
- Szaniterek
- Hideg/meleg burkolatok ( 10 000 Ft/m2 meleg: 10 000 Ft/ m2 )
- Beltéri ajtók ( 100 000 Ft/db )
- 5 ponton záródó bejárati ajtó
Ezek mind kiemelkedő minőségben és az átlagnál magasabb áron választhatóak. Árlista tőlem kérhető.Az építkezés megtekintése után minden a házzal kapcsolatos dokumentáció rendelkezésre áll.
EXTRÁK:
- Ház homlokzatán díszkő burkolat
- Térkövezés
- Elektromos alumínium redőnyök
Környék rendezett, csendes, minden perceken belül elérhető autóval.
Várható átadás: 2026 Tavasz
További információkért hívjon bizalommal.
Csak garázzsal érintkeznek, lakótérrel nincs közös falazat, emeleten pedig egyáltalán nem érintkeznek!
Most Öné lehet kedvező m2 áron egy nettó összesen 194 m2-es 2 szintes ikerház. Diósd Égettvölgy részén épül. CSAK GARÁZZSAL ÉRINTKEZNEK.
Tágas, világos terek köszönhetően az egyedi jó méretű nyílászáróknak, család barát elosztással.
Nettó hasznos lakótér 131 m2 + 18,30 m2 garázs + 2 db terasz / 28,35 m2 + 16,35 m2 /
Hozzá tartozó telek mérete 642 m2.
Az ingatlant a 2025-ös év kedvezményes feltételeivel is megtudja vásárolni, az építkezés céges.
Foglalja le már most leendő otthonát 10%-al. Az építkezés szerkezetkész állapotnál tart így saját ízlése és igénye szerint választhatja ki a ház belső kinézetét illetve végig követheti az építkezést.
Amennyiben egyedi igényei lennének az elosztással kapcsolatban a kivitelező rugalmas a változtatásokra.
Elosztását tekintve:
Földszint:
- 1 állásos garázs
- előszoba
- külön mellékhelyiség
- háztartási helyiség
- 1 hálószoba saját fürdőszobával
- tágas és világos amerikai konyhás nappali terasz és kertkapcsolattal
Emelet:
- 3 egész méretű hálószoba
- fürdőszoba
- gardrób
- hangulatos, félig fedett 16,35 m2-es terasz
Műszaki adatok:
- 30-as Porotherm tégla falazat, 10 cm tégla válaszfalak
- 15 cm homlokzati szigetelés
- Födém szigetelés: 2x15cm vastag szálas kőzetgyapot szigetelés
- Hőszivattyú fűtés 230 literes indirect tárolóval
- Minden helyiségben padlófűtés
- Mennyezet hűtés
- Hővisszanyerős szellőztető rendszer
- Tetőn korcolt lemezfedés
- 3 rétegű 5 légkamrás nyílászárók egyedi antracit színben
- Riasztó, kamera, napelem előkészítés
- Szaniterek
- Hideg/meleg burkolatok ( 10 000 Ft/m2 meleg: 10 000 Ft/ m2 )
- Beltéri ajtók ( 100 000 Ft/db )
- 5 ponton záródó bejárati ajtó
Ezek mind kiemelkedő minőségben és az átlagnál magasabb áron választhatóak. Árlista tőlem kérhető.Az építkezés megtekintése után minden a házzal kapcsolatos dokumentáció rendelkezésre áll.
EXTRÁK:
- Ház homlokzatán díszkő burkolat
- Térkövezés
- Elektromos alumínium redőnyök
Környék rendezett, csendes, minden perceken belül elérhető autóval.
Várható átadás: 2026 Tavasz
További információkért hívjon bizalommal.