Eladó Ház- házrész
Hirdetéskód: 9306550

Tatár Szabolcs

Felújításhoz személyi kölcsönt keres? Kalkuláljon itt! →
124.00 m2
ALAPTERÜLET
4
SZOBASZÁM
Tégla
ÉPÍTÉS
Hőszivattyú
FŰTÉS
  • Belső szintek 2
  • Kilátás Kertre néző
  • Ingatlan komfort Duplakomfortos
  • Parkolási lehetőség Önálló garázs
  • Építés éve 2026
  • Fűtés Hőszivattyú
  • Építőanyag Tégla
  • Erkély, terasz Terasz
  • Szigetelt igen
  • Bútorozott nem
  • Víz telken belül
  • Csatorna telken belül
  • Villany telken belül
Energetikai besorolás: Nincs meghatározva
A+++
A++
A+
A
B
C
D
E
F
G
H
I

Az MBH Bank személyi kölcsön ajánlata

Fizetett hirdetés
1 millió Ft
6 évre
20 585 Ft/hó
THM: 14.5%
Részletek →
2 millió Ft
6 évre
41 169 Ft/hó
THM: 14.5%
Részletek →
3 millió Ft
6 évre
61 754 Ft/hó
THM: 14.5%
Részletek →

A tájékoztatás nem teljes körű és nem minősül ajánlattételnek.

Az ingatlan leírása

Hivatkozzon erre, kód: 5193TSZ


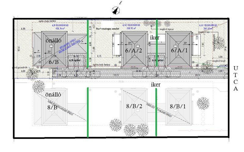
MINI  LAKÓPARK KÉSZÜL DIÓSD KÖZPONTJÁBAN!


- ÚJ ÉPÍTÉSŰ IKERHÁZI LAKÁSOK (össz. 4 db lakás)


- KIVÁLÓ INFRASTRUKTÚRA


- TÁRSASHÁZ ALAPÍTÓ OKIRAT


- NAPPALI + 3 SZOBA, 2 FÜRDŐSZOBA, 1 GK-S GARÁZS, TERASZ, SAJÁT KERT / LAKÁS


- MINŐSÉGI KIVITELEZÉS


AZ ÁR LAKÁSONKÉNT ÉRTENDŐ!


Diósd Központjában kiváló infrastruktúránál új építésű MINI LAKÓPARKBAN saját kerttel rendelkező belső kétszintes, dupla komfortos, nappali + 3 szobás + 1 gk-s garázs, összesen 124.16m2-es (teraszok felével) / db., ikerházi lakások leköthetők igény szerinti befejezéssel.


Várható átadás: 2026. év vége.


MINDEGYIK LAKÁS EGYFORMA!


FELOSZTÁS A KÖVETKEZŐ / LAKÁS:


Földszint (85.61m2 + teraszok + saját kert): előszoba (7.37m2), konyha – étkező - nappali (36.69m2), kamra (1.65m2), közlekedő (2.1m2), wc (1.68m2), mosókonyha (7.65m2), garázs (20.22m2), fedett – nyitott előtér (2.34m2), fedett terasz (5.91m2).


Emelet (63.8m2): lépcsőház (6.33m2), közlekedő – gardrób (3.1m2), fürdőszoba (3.78m2), szoba (11.92m2), szoba (10.93m2), fürdőszoba (6.62m2).


Kert kiosztás:


6/A/1-es és 8/A/1-es lakás: kb. 365m2 / db.


6/A/2-es és 8/A/2-es lakás: kb. 350m2 / db.


Szerkezeti leírás: Beton alap. 30-as tégla főfalazat + 15cm dryvit szigetelés. Beton födém a szintek között, míg a záró födém fa szerkezetű szigeteléssel ellátva. A külső nyílászárók műanyag szerkezetűek, fokozottan hőszigetelt 5 légkamrás – 3 rétegű üvegezéssel ellátva, bukó-nyíló kivitelben (kívül szinterezett nyílászárók). Cserép fedésű tető.


Az igény szerinti befejezésnek köszönhetően a beltéri ajtók 80.000,- Ft/db. áron, a hideg burkolatok 10.000,- Ft/m2 árig, míg a meleg burkolatokat 8.000,- Ft/m2 árig tartalmazza a vételár. Igény szerint a szaniterek kiválasztására is lehetőség van a műszaki tartalomban rögzített árak szerint.


Fűtés, meleg víz ellátás: A lakások fűtését hőszivattyús rendsze biztosítja, minden helyiségben padlófűtésen keresztül. A meleg víz beépített HMV tárolóval biztosított.


Parkolás: saját udvaron belül fedetlen - felszíni beálló biztosított.


Megközelíthetőség és infrastruktúra jó! Buszmegálló, iskola, óvoda, bevásárlási lehetőség hamar elérhető!


További hasonló ingatlanok találhatók még a kínálatunkban!


Szüksége van hitelre? SEGÍTÜNK!


Bankfüggetlen hitel tanácsadónk díjmentesen áll az Ön rendelkezésére! Keressen bizalommal!


A hirdetésben szereplő adatok, információk, képek, alaprajzok stb... tájékoztató jellegűek! Irodánk az esetleges elírásokért felelősséget nem tud vállalni!  


Tájékoztatjuk a Tisztelt Érdeklődőket, hogy az ingatlan hirdetésében szereplő telefonszám felhívásával Önök hozzájárulnak személyes adataik (név, telefonszám), a hirdetést feladó -Otthonplusz.hu Kft. - által a bizalmas kezeléshez és nyilvántartáshoz.

Térkép

A hirdető elérhetősége

Otthon Plusz Ingatlanközvetítő Iroda

Tatár Szabolcs
+36 70 432