Eladó Ház- házrész
Hirdetéskód: 9205681
Fővállalkozó Balla és Balla Kft
Felújításhoz személyi kölcsönt keres? Kalkuláljon itt! →
Ez a hirdetés megfelelhet a FIX 3%-os programnak.
Tudj meg többet a részletekről itt.
114.00 m2
ALAPTERÜLET4
SZOBASZÁMnincs megadva
ÉPÍTÉSEgyéb fűtés
FŰTÉS- CSOK igénybe vehető nem
- Tetőtér beépíthető nem
- Építés éve 2025
- Fűtés Egyéb fűtés
- Klíma nem
- Szigetelt nem
A+++
A++
A+
A
B
C
D
E
F
G
H
I
Az ingatlan leírása
FIGYELEM! ÚJ ÉPÍTÉSŰ IKERHÁZAK DIÓSDON
Prémium minőség, modern megoldások, zöldövezeti nyugalom — ez vár Diósd legújabb fejlesztésében!
Diósd-Sashegy új parcellázású, csendes, családi házas övezetében kínálunk eladásra két új építésű ikerházat, külön helyrajzi számmal, saját mérőórákkal és engedélyekkel.
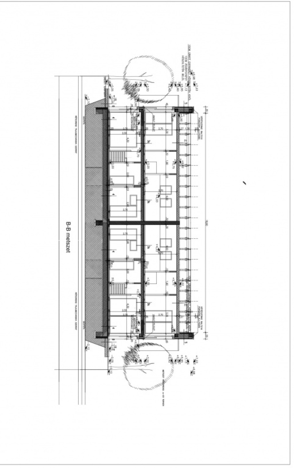
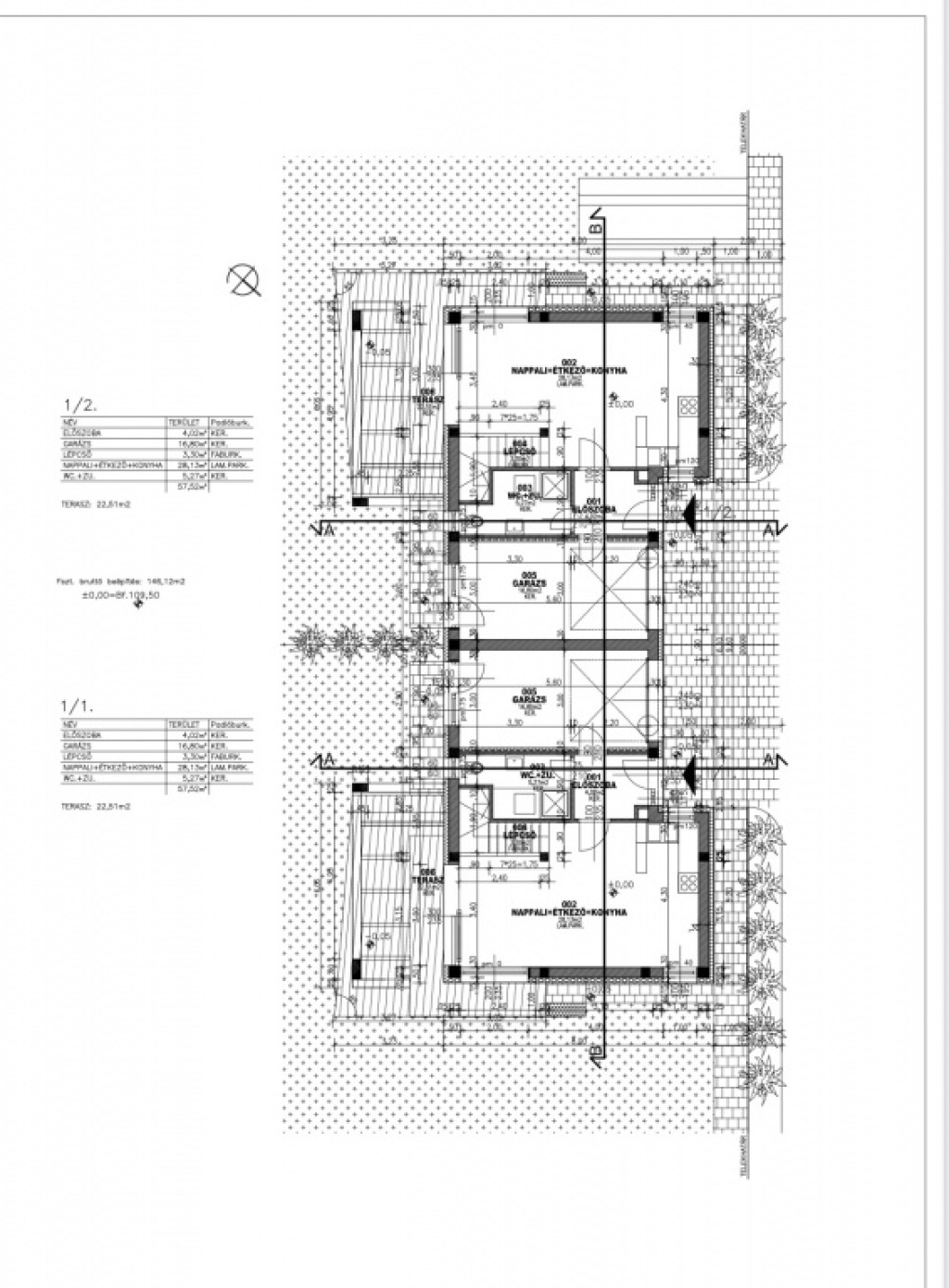
Mindkét lakóegység 113,5 m² hasznos alapterületű, melyhez 22 m²-es terasz és saját, fűtött garázs tartozik.
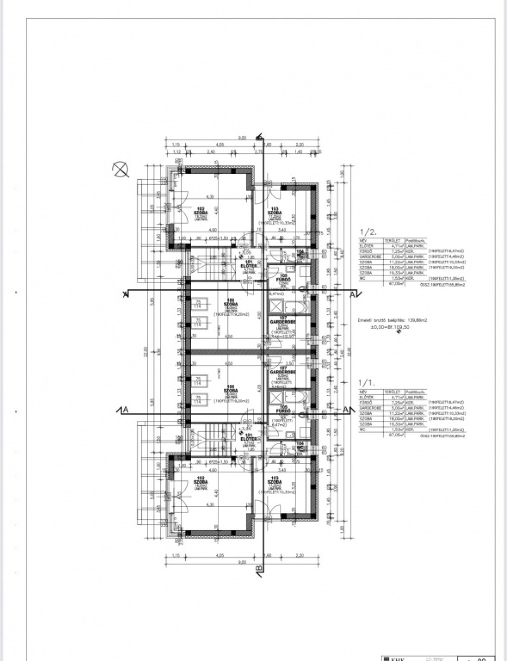
A földszinten tágas amerikai konyhás nappali, egy fürdőszoba, valamint a garázs és a teraszkapcsolat található. Az emeleten három külön nyíló hálószoba és második fürdőszoba kap helyet — ideális elrendezés családok számára.
Az épület két fele a földszinten a garázsoknál, az emeleten pedig hanggátló Silka válaszfallal kapcsolódik, így a privát élettér és a zajvédelem maximálisan biztosított.
A lakások külön telekrésszel, lekerítve, rendezett, kitakarított állapotban kerülnek átadásra.
✨ Kiemelt jellemzők
113,5 m² hasznos alapterület + 22 m² terasz
Amerikai konyhás nappali + 3 külön nyíló szoba + 2 fürdőszoba
Saját garázs, elektromos kapu, viacolor beálló
Modern hőszivattyús fűtés (H-tarifás rendszerrel)
Teljes körű padlófűtés, helyiségenként szabályozható
30 cm Ytong falazat + 15 cm hőszigetelés
3 rétegű üvegezésű nyílászárók, alumínium redőnyökkel
30 cm kőzetgyapot tetőszigetelés hőtükör fóliával
Burkolatok, ajtók, szaniterek választhatók — még alakítható belső stílus!
Fűtött garázs, távirányítós kapu
Kiváló közlekedés: 15 perc Budapest, 5 perc séta tömegközlekedéshez
Átadás: 2026. Február
Helyszín: Diósd, Sashegy – új parcellázású, családbarát övezet
Prémium minőség, modern megoldások, zöldövezeti nyugalom — ez vár Diósd legújabb fejlesztésében!
Diósd-Sashegy új parcellázású, csendes, családi házas övezetében kínálunk eladásra két új építésű ikerházat, külön helyrajzi számmal, saját mérőórákkal és engedélyekkel.
Mindkét lakóegység 113,5 m² hasznos alapterületű, melyhez 22 m²-es terasz és saját, fűtött garázs tartozik.
A földszinten tágas amerikai konyhás nappali, egy fürdőszoba, valamint a garázs és a teraszkapcsolat található. Az emeleten három külön nyíló hálószoba és második fürdőszoba kap helyet — ideális elrendezés családok számára.
Az épület két fele a földszinten a garázsoknál, az emeleten pedig hanggátló Silka válaszfallal kapcsolódik, így a privát élettér és a zajvédelem maximálisan biztosított.
A lakások külön telekrésszel, lekerítve, rendezett, kitakarított állapotban kerülnek átadásra.
✨ Kiemelt jellemzők
113,5 m² hasznos alapterület + 22 m² terasz
Amerikai konyhás nappali + 3 külön nyíló szoba + 2 fürdőszoba
Saját garázs, elektromos kapu, viacolor beálló
Modern hőszivattyús fűtés (H-tarifás rendszerrel)
Teljes körű padlófűtés, helyiségenként szabályozható
30 cm Ytong falazat + 15 cm hőszigetelés
3 rétegű üvegezésű nyílászárók, alumínium redőnyökkel
30 cm kőzetgyapot tetőszigetelés hőtükör fóliával
Burkolatok, ajtók, szaniterek választhatók — még alakítható belső stílus!
Fűtött garázs, távirányítós kapu
Kiváló közlekedés: 15 perc Budapest, 5 perc séta tömegközlekedéshez
Átadás: 2026. Február
Helyszín: Diósd, Sashegy – új parcellázású, családbarát övezet