Eladó Ház- házrész
Hirdetéskód: 9329194
Bucalics Roxána
Felújításhoz személyi kölcsönt keres? Kalkuláljon itt! →145.00 m2
ALAPTERÜLET4
SZOBASZÁMnincs megadva
ÉPÍTÉSEgyéb fűtés
FŰTÉS- CSOK igénybe vehető nem
- Tetőtér beépíthető nem
- Építés éve 2025
- Fűtés Egyéb fűtés
- Klíma nem
- Szigetelt nem
A+++
A++
A+
A
B
C
D
E
F
G
H
I
Az ingatlan leírása
EGYEDI HÁZ, CSEND, IMPOZÁNS KÖRNYEZET !
Diósdliget keresett részén eladó egyedi tervezésű új építésű otthon !
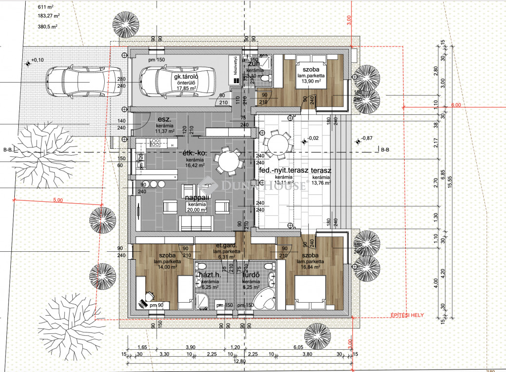
Az ingatlan hasznos nettó lakótere garázzsal 132,29 m2 + 26 m2 terasz .
Telek mérete 611 m2.
Az építkezés hamarosan kezdetét veszi, így végig követheti az építkezés folyamatait.
Elosztását tekintve:
1 állásos garázs, előszoba, 3 jó méretű szoba , tágas amerikai konyhás nappali részben fedett 26 m2-es teraszkapcsolattal, 2 fürdőszoba, háztartási helyiség, gardrób helyiség.
A helyiségek napfényesek, köszönhetően a jó tájolásnak és a jó méretű nyílászáróknak. Az ház aszfaltozott utcában található, rendezett házak környezetében.
Műszaki adatok:
- 30-as Porotherm tégla
- 15 cm homlokzati szigetelés
- Hőszivattyú fűtés, minden helyiségben padlófűtéssel
- 3 rétegű 6 légkamrás nyílászárók
- 1 autónak térkövezett beálló
- Riasztó előkészítése
- szaniterek
- hideg/meleg burkolatok ( 8 Ft/ m2 )
- beltéri ajtók 80 000 Ft/db
- bejárati ajtó 250 000 Ft-ig
EXTRÁK:
- Aluminium elektromos redőny
- 4 db klíma készülék
Ezek mind kiemelkedő minőségben és az átlagnál magasabb áron választhatóak. Árlista tőlem kérhető.
Az építkezés megtekintése után minden a házzal kapcsolatos dokumentáció rendelkezésre áll. Jelenleg alap készültségnél tart az építkezés.
Vállalkozó megbízható, rugalmas, rengeteg referencia munkával rendelkezik, amit közösen megtudunk tekinteni a nagy döntés előtt.
Tömegközlekedés, iskola, óvoda, bevásárlási lehetőségek perceken belül elérhetőek.
További információkért hívjon bizalommal.
Várható átadás: 2026 Tavasz
Diósdliget keresett részén eladó egyedi tervezésű új építésű otthon !
Az ingatlan hasznos nettó lakótere garázzsal 132,29 m2 + 26 m2 terasz .
Telek mérete 611 m2.
Az építkezés hamarosan kezdetét veszi, így végig követheti az építkezés folyamatait.
Elosztását tekintve:
1 állásos garázs, előszoba, 3 jó méretű szoba , tágas amerikai konyhás nappali részben fedett 26 m2-es teraszkapcsolattal, 2 fürdőszoba, háztartási helyiség, gardrób helyiség.
A helyiségek napfényesek, köszönhetően a jó tájolásnak és a jó méretű nyílászáróknak. Az ház aszfaltozott utcában található, rendezett házak környezetében.
Műszaki adatok:
- 30-as Porotherm tégla
- 15 cm homlokzati szigetelés
- Hőszivattyú fűtés, minden helyiségben padlófűtéssel
- 3 rétegű 6 légkamrás nyílászárók
- 1 autónak térkövezett beálló
- Riasztó előkészítése
- szaniterek
- hideg/meleg burkolatok ( 8 Ft/ m2 )
- beltéri ajtók 80 000 Ft/db
- bejárati ajtó 250 000 Ft-ig
EXTRÁK:
- Aluminium elektromos redőny
- 4 db klíma készülék
Ezek mind kiemelkedő minőségben és az átlagnál magasabb áron választhatóak. Árlista tőlem kérhető.
Az építkezés megtekintése után minden a házzal kapcsolatos dokumentáció rendelkezésre áll. Jelenleg alap készültségnél tart az építkezés.
Vállalkozó megbízható, rugalmas, rengeteg referencia munkával rendelkezik, amit közösen megtudunk tekinteni a nagy döntés előtt.
Tömegközlekedés, iskola, óvoda, bevásárlási lehetőségek perceken belül elérhetőek.
További információkért hívjon bizalommal.
Várható átadás: 2026 Tavasz