Eladó Ház- házrész
Hirdetéskód: 9305649
Fővállalkozó Balla és Balla Kft
Felújításhoz személyi kölcsönt keres? Kalkuláljon itt! →
Ez a hirdetés megfelelhet a FIX 3%-os programnak.
Tudj meg többet a részletekről itt.
95.00 m2
ALAPTERÜLET3
SZOBASZÁMnincs megadva
ÉPÍTÉSElektromos
FŰTÉS- CSOK igénybe vehető nem
- Tetőtér beépíthető nem
- Építés éve 1970
- Fűtés Elektromos
- Klíma nem
- Szigetelt nem
A+++
A++
A+
A
B
C
D
E
F
G
H
I
Az ingatlan leírása
Eladó Gárdony-Dinnyésen 95 nm-es 3+2 fél szobás, felújított családi ház 1243 nm-es összközműves telken 15 nm szerelőaknás garázzsal, 14 nm tárolóval.
Hitelképes ingatlan praktikus helységekkel, egy külön nyíló vendégszobával (szoba és fürdőszoba).
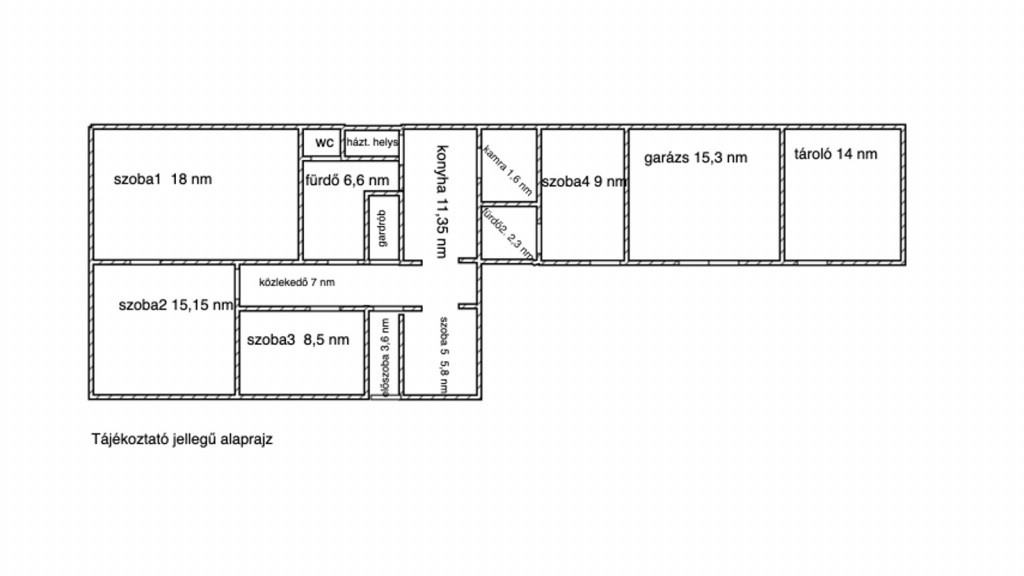
Helységlista:
előszoba 3,6 nm
közlekedő 7 nm
szoba1 15,5 nm
szoba2 18 nm
szoba3 8,5 nm
szoba5 5,8 nm
fürdő 6,6 nm (innen nyíló wc 1,5 nm)
gardrób 2,3 nm
konyha 11,35 nm
háztartási helység (konyhából nyíló) 1,6 nm
kamra (konyhából nyíló) 1,6 nm
vendégszoba:
szoba4 9 nm
fürdő 2,3 nm
garázs 15,3 nm
tároló 14 nm
Az eredeti, 70-es években épült házból 2 vert fal maradt, a többi tégla építésű. A legutóbbi felújítás 2021-ben történt (teljes tetőcsere szigeteléssel, nyílászárók, teljes elektromos vezeték csere, falak szigetelése 15 cm, szellőzőrendszer, kamerarendszer, okos világítás). A telken víz, csatorna, villany (3x25 A nappali, 3x25 A H-tarifa, elektromos autótöltő előkészítve), gázcsonk. Fűtés: 4 db hűtő-fűtő klíma, 4 db elektromos fűtőpanel, 10 kW-os napelem (szaldós még 8 évig). A kert rendezett, fúrt kúttal, filagóriával.
Dinnyés vasútállomás 1,2 km.
Hívjon információért, megtekintési időpontért!
Hitelképes ingatlan praktikus helységekkel, egy külön nyíló vendégszobával (szoba és fürdőszoba).
Helységlista:
előszoba 3,6 nm
közlekedő 7 nm
szoba1 15,5 nm
szoba2 18 nm
szoba3 8,5 nm
szoba5 5,8 nm
fürdő 6,6 nm (innen nyíló wc 1,5 nm)
gardrób 2,3 nm
konyha 11,35 nm
háztartási helység (konyhából nyíló) 1,6 nm
kamra (konyhából nyíló) 1,6 nm
vendégszoba:
szoba4 9 nm
fürdő 2,3 nm
garázs 15,3 nm
tároló 14 nm
Az eredeti, 70-es években épült házból 2 vert fal maradt, a többi tégla építésű. A legutóbbi felújítás 2021-ben történt (teljes tetőcsere szigeteléssel, nyílászárók, teljes elektromos vezeték csere, falak szigetelése 15 cm, szellőzőrendszer, kamerarendszer, okos világítás). A telken víz, csatorna, villany (3x25 A nappali, 3x25 A H-tarifa, elektromos autótöltő előkészítve), gázcsonk. Fűtés: 4 db hűtő-fűtő klíma, 4 db elektromos fűtőpanel, 10 kW-os napelem (szaldós még 8 évig). A kert rendezett, fúrt kúttal, filagóriával.
Dinnyés vasútállomás 1,2 km.
Hívjon információért, megtekintési időpontért!