Eladó Ház- házrész
Hirdetéskód: 9288639
Dunaharaszti Bocskai utca 10 - OTP Ingatlanpont Iroda
Felújításhoz személyi kölcsönt keres? Kalkuláljon itt! →194.00 m2
ALAPTERÜLET4
SZOBASZÁMnincs megadva
ÉPÍTÉSnincs megadva
FŰTÉS- CSOK igénybe vehető nem
- Tetőtér beépíthető nem
- Építés éve 1978
- Klíma nem
- Szigetelt nem
A+++
A++
A+
A
B
C
D
E
F
G
H
I
Az ingatlan leírása
Délegyházán, a központhoz közel, mégis csendes utcában eladásra kínálunk egy nettó 194 m2-es, teljes közműves, kétgenerációs, két szintes családi házat melyhez 896 m2-es telek tartozik. Az alsó szinten egy tágas előszoba, étkező és konyha, három hálószoba, valamint fürdőszoba WC-vel található. Az emelet szintén kényelmes elosztású: előszoba, világos nappali, külön konyha, két hálószoba és fürdőszoba WC-vel biztosítja a mindennapok kényelmét. A kialakítás lehetővé teszi, hogy a ház akár két teljesen önálló lakrészként működjön, így ideális választás lehet nagyobb családnak, két generációnak, de befektetési célra is kitűnő választás.
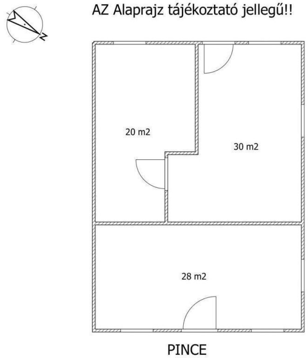
Az épület szerkezetileg kiváló állapotban van, a tető és a homlokzat teljes felújításon esett át, a nyílászárók műanyagra lettek cserélve. Az udvaron több melléképület és egy utcáról közvetlenül megközelíthető garázs is helyet kapott. Az házt alatt pince található, valamint egy külön bejáratú helyiség, amely üzletként, irodaként vagy akár hobbiszobaként is könnyedén hasznosítható.A fűtésről gázcirkó és vegyestüzelésű kazán is gondoskodik, így a tulajdonos rugalmasan választhat a költséghatékony megoldások között, a nyári hónapokban pedig a hűtő-fűtő klíma biztosítja a komfortot.
Az ingatlan nyugodt, családias környezetben található, miközben a központ közelsége minden szükséges szolgáltatást és a jó közlekedést is garantálja. Ez a ház valódi lehetőség mindazok számára, akik tágas, több generáció számára is kényelmes otthont, vagy vállalkozási lehetőséggel kombinálható ingatlant keresnek Délegyházán.Akár azonnal birtokbavehető!
Amennyiben felkeltette érdeklődését, kérem keressen nyugodtan a hét bármely napján! Irodánk teljeskörű ügyintézéssel áll az eladók és a vevők rendelkezésére! A kínálatunkból választott ingatlan finanszírozásához kedvezményes hitelonstrukciókat kínálunk. Az adásvételi szerződés megkötéséhez igény szerint megbízható ügyvédi közreműködést biztosítunk, és segítséget nyújtunk az adásvételhez kapcsolódó ügyek intézéséhez.
Az épület szerkezetileg kiváló állapotban van, a tető és a homlokzat teljes felújításon esett át, a nyílászárók műanyagra lettek cserélve. Az udvaron több melléképület és egy utcáról közvetlenül megközelíthető garázs is helyet kapott. Az házt alatt pince található, valamint egy külön bejáratú helyiség, amely üzletként, irodaként vagy akár hobbiszobaként is könnyedén hasznosítható.A fűtésről gázcirkó és vegyestüzelésű kazán is gondoskodik, így a tulajdonos rugalmasan választhat a költséghatékony megoldások között, a nyári hónapokban pedig a hűtő-fűtő klíma biztosítja a komfortot.
Az ingatlan nyugodt, családias környezetben található, miközben a központ közelsége minden szükséges szolgáltatást és a jó közlekedést is garantálja. Ez a ház valódi lehetőség mindazok számára, akik tágas, több generáció számára is kényelmes otthont, vagy vállalkozási lehetőséggel kombinálható ingatlant keresnek Délegyházán.Akár azonnal birtokbavehető!
Amennyiben felkeltette érdeklődését, kérem keressen nyugodtan a hét bármely napján! Irodánk teljeskörű ügyintézéssel áll az eladók és a vevők rendelkezésére! A kínálatunkból választott ingatlan finanszírozásához kedvezményes hitelonstrukciókat kínálunk. Az adásvételi szerződés megkötéséhez igény szerint megbízható ügyvédi közreműködést biztosítunk, és segítséget nyújtunk az adásvételhez kapcsolódó ügyek intézéséhez.