Eladó Ház- házrész
Hirdetéskód: 9311210
OTP Ingatlanpont - Takács Zsuzsanna
Felújításhoz személyi kölcsönt keres? Kalkuláljon itt! →135.00 m2
ALAPTERÜLET3
SZOBASZÁMnincs megadva
ÉPÍTÉSEgyéb fűtés
FŰTÉS- CSOK igénybe vehető nem
- Tetőtér beépíthető nem
- Építés éve 2003
- Fűtés Egyéb fűtés
- Klíma nem
- Szigetelt nem
A+++
A++
A+
A
B
C
D
E
F
G
H
I
Az ingatlan leírása
ELADÓ ÁLOMOTTHON DÉLEGYHÁZÁN A TAVAK KÖZELÉBEN!!!
Eladóvá vált egy igazi álomotthon Pest vármegyében, Budapesttől 30 percre, Délegyházán a tavak közelében!
Egy minden igényt kielégítő nappali + 3 szobás, 135 m2-es családi fészek várja új lakóit.
Az ingatlan 950 m2-es telken helyezkedik el , délnyugati fekvésű. Igényes kivitelezés, átgondolt tervezés jellemzi, finom eleganciával ötvözött praktikum.
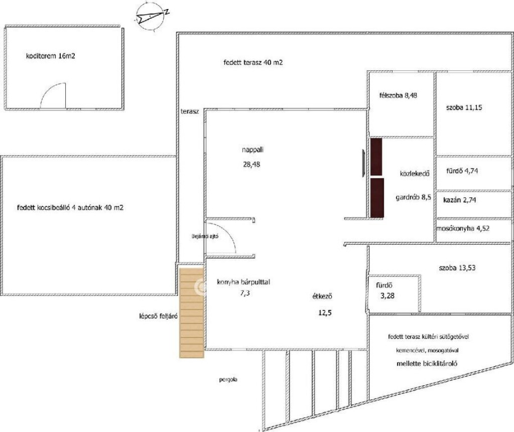
Az ingatlanba belépve egy tágas, széles előszoba tárul elénk, ahonnan nyílnak a helyiségek. Hatalmas, modern, minden igényt kielégítő konyhai gépekkel szerelt konyha bárpulttal és nagy étkezőasztallal, tágas, modern nappali hófehér dekorfallal és szekrényekkel kijárattal a teraszra, 3 szoba, beépített szekrények, két fürdőszoba, mosókonyha, amely gardróbszoba is, illetve egy pazar árnyékolható, intim környezetet biztosító fedett terasz nyújtja a kényelmet és a nyugalmat. A pezsgő élet helyszíne pedig a ház előtti részben található pergolás, nagyrészt fedett kerti sütögető és az ehhez tartozó minden igényt kielégítő kemence, mosogató, előkészítő pultok, nyolc személyes kerti bútor. Mellette szintén fedett külön tárolórész a bicikliknek, supnak, motornak, amelyek a környék felfedezésére, a mintegy 50 méterre található tavak kihasználására szuper lehetőséget kínálnak. Ha pedig a napi kondíciónkat szeretnénk karban tartani, és egyéb sportra vágyunk csak a hátsó kertig kell mennünk, ahol egy külön 16 m2-es, 32 m2-es betonalapú szigetelt faházban egy modern, szinte új gépekkel felszerelt kondi terem vár minket. Ennek betonozott terasza alkalmas lehet jakuzzi, vagy medence felállítására is, de a hátsó kert is bőven ad lehetőséget akár nagyobb medence, vagy gyermekeknek játszótér kialakítására, ehhez a több helyen kialakított kerti csap is nagy segítség. Gyönyörű zöld tujákkal, pampafüvekkel határolt a ház és a telek, a kertben jó néhány termő gyümölcsfa rügyezik.
A kényelmünket, az otthon melegét padlófűtés és 5 klíma biztosítja. A műanyag nyílászárók szúnyoghálóval és alumínium redőnyökkel szereltek. Kaputelefon, elektromos kapu, Sion security riasztó rendszer és védelem, fedett minimum 6 autó beállására lehetőséget biztosító kocsibeálló ebből 4 fedett, a padlás, tetőtér pedig további bővítési lehetőségre is adott.
Az ingatlan minden beépített bútorzattal, géppel eladó, kivétel a mosó és szárítógép, a kávéfőző. A kerti bútorok és a kondi terem összes gépe is az ár részét képezi!!!
A közlekedés Budapestre busszal, vonattal egyszerűen elérhető, az infrastruktúra kiváló. Dunavarsány, Dunaharaszti, Taksony közelsége még szélesíti az egyébként helyben is elérhető remek lokációt, kitűnő választás hosszútávon egy akár három-négy gyermekes családnak is igazi otthoni környezetet biztosítva a mindennapokra, az adottságaiban, elhelyezkedésében rejlő állandó szabadságon vagyunk érzéssel megfűszerezve.
M326249
Az OTP Ingatlanpont, mint egyetlen közvetlen banki hátterű ingatlanközvetítő társaság teljes körű ügyintézéssel áll az eladók és a vevők rendelkezésére! A kínálatunkból választott ingatlan finanszírozásához minősített fogyasztóbarát, piaci és kedvezményes hitel- és lízingkonstrukciókat kínálunk (lakásvásárlási hitel, CSOK plusz, szabad felhasználású hitel, babaváró hitel, céges hitelek, pályázatok, amennyiben az ügyfél és az ingatlan megfelel a feltételeknek). Az adásvételi szerződés megkötéséhez igény szerint megbízható ügyvédi közreműködést biztosítunk, és segítséget nyújtunk az adásvételhez kapcsolódó egyéb ügyek intézéséhez.
Ha az új ingatlana megvásárlásához a jelenlegi ingatlanát el kell adnia, abban is szívesen segítünk.
Eladóvá vált egy igazi álomotthon Pest vármegyében, Budapesttől 30 percre, Délegyházán a tavak közelében!
Egy minden igényt kielégítő nappali + 3 szobás, 135 m2-es családi fészek várja új lakóit.
Az ingatlan 950 m2-es telken helyezkedik el , délnyugati fekvésű. Igényes kivitelezés, átgondolt tervezés jellemzi, finom eleganciával ötvözött praktikum.
Az ingatlanba belépve egy tágas, széles előszoba tárul elénk, ahonnan nyílnak a helyiségek. Hatalmas, modern, minden igényt kielégítő konyhai gépekkel szerelt konyha bárpulttal és nagy étkezőasztallal, tágas, modern nappali hófehér dekorfallal és szekrényekkel kijárattal a teraszra, 3 szoba, beépített szekrények, két fürdőszoba, mosókonyha, amely gardróbszoba is, illetve egy pazar árnyékolható, intim környezetet biztosító fedett terasz nyújtja a kényelmet és a nyugalmat. A pezsgő élet helyszíne pedig a ház előtti részben található pergolás, nagyrészt fedett kerti sütögető és az ehhez tartozó minden igényt kielégítő kemence, mosogató, előkészítő pultok, nyolc személyes kerti bútor. Mellette szintén fedett külön tárolórész a bicikliknek, supnak, motornak, amelyek a környék felfedezésére, a mintegy 50 méterre található tavak kihasználására szuper lehetőséget kínálnak. Ha pedig a napi kondíciónkat szeretnénk karban tartani, és egyéb sportra vágyunk csak a hátsó kertig kell mennünk, ahol egy külön 16 m2-es, 32 m2-es betonalapú szigetelt faházban egy modern, szinte új gépekkel felszerelt kondi terem vár minket. Ennek betonozott terasza alkalmas lehet jakuzzi, vagy medence felállítására is, de a hátsó kert is bőven ad lehetőséget akár nagyobb medence, vagy gyermekeknek játszótér kialakítására, ehhez a több helyen kialakított kerti csap is nagy segítség. Gyönyörű zöld tujákkal, pampafüvekkel határolt a ház és a telek, a kertben jó néhány termő gyümölcsfa rügyezik.
A kényelmünket, az otthon melegét padlófűtés és 5 klíma biztosítja. A műanyag nyílászárók szúnyoghálóval és alumínium redőnyökkel szereltek. Kaputelefon, elektromos kapu, Sion security riasztó rendszer és védelem, fedett minimum 6 autó beállására lehetőséget biztosító kocsibeálló ebből 4 fedett, a padlás, tetőtér pedig további bővítési lehetőségre is adott.
Az ingatlan minden beépített bútorzattal, géppel eladó, kivétel a mosó és szárítógép, a kávéfőző. A kerti bútorok és a kondi terem összes gépe is az ár részét képezi!!!
A közlekedés Budapestre busszal, vonattal egyszerűen elérhető, az infrastruktúra kiváló. Dunavarsány, Dunaharaszti, Taksony közelsége még szélesíti az egyébként helyben is elérhető remek lokációt, kitűnő választás hosszútávon egy akár három-négy gyermekes családnak is igazi otthoni környezetet biztosítva a mindennapokra, az adottságaiban, elhelyezkedésében rejlő állandó szabadságon vagyunk érzéssel megfűszerezve.
M326249
Az OTP Ingatlanpont, mint egyetlen közvetlen banki hátterű ingatlanközvetítő társaság teljes körű ügyintézéssel áll az eladók és a vevők rendelkezésére! A kínálatunkból választott ingatlan finanszírozásához minősített fogyasztóbarát, piaci és kedvezményes hitel- és lízingkonstrukciókat kínálunk (lakásvásárlási hitel, CSOK plusz, szabad felhasználású hitel, babaváró hitel, céges hitelek, pályázatok, amennyiben az ügyfél és az ingatlan megfelel a feltételeknek). Az adásvételi szerződés megkötéséhez igény szerint megbízható ügyvédi közreműködést biztosítunk, és segítséget nyújtunk az adásvételhez kapcsolódó egyéb ügyek intézéséhez.
Ha az új ingatlana megvásárlásához a jelenlegi ingatlanát el kell adnia, abban is szívesen segítünk.