Eladó Ház- házrész
Hirdetéskód: 9235142

Otthon Centrum - Debrecen - Hatvan utca

Felújításhoz személyi kölcsönt keres? Kalkuláljon itt! →
FIX 3% Program

Ez a hirdetés megfelelhet a FIX 3%-os programnak.
Tudj meg többet a részletekről itt.

110.00 m2
ALAPTERÜLET
4
SZOBASZÁM
nincs megadva
ÉPÍTÉS
nincs megadva
FŰTÉS
  • CSOK igénybe vehető nem
  • Tetőtér beépíthető nem
  • Építés éve 2026
  • Klíma nem
  • Szigetelt nem
Energetikai besorolás: Nincs meghatározva
A+++
A++
A+
A
B
C
D
E
F
G
H
I

Az MBH Bank személyi kölcsön ajánlata

Fizetett hirdetés
1 millió Ft
6 évre
20 585 Ft/hó
THM: 14.5%
Részletek →
2 millió Ft
6 évre
41 169 Ft/hó
THM: 14.5%
Részletek →
3 millió Ft
6 évre
61 754 Ft/hó
THM: 14.5%
Részletek →

A tájékoztatás nem teljes körű és nem minősül ajánlattételnek.

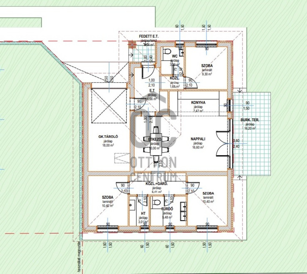
Az ingatlan leírása

FÖLDSZINTES ÚJ ÉPÍTÉSŰ CSALÁDI HÁZ, építése kezdődik MEGÚJULÓ ENERGIÁVAL
Debrecen, a Homokkert frekventált utcájában
magas műszaki tartalommal épülő családi ház 2026. decemberi átadással eladó.
Az épület főbb jellemzői:
- falazata 38 cm-es YTONG
- válaszfalak 10 cm-es válaszfal YTONG-ból falazva
- zárófödémen 30 cm-es URSA kőzetgyapot szigetelés
- homlokzati nyílászárók háromrétegű üvegezéssel, hatkamrás műanyag szerkezettel
- riasztó, térfigyelő rendszer és kaputelefon előkészítés
- burkolatválasztás műszaki leírás szerint
- Várható átadás 2026 IV. negyedév

AZ ÉPÜLET FŰTÉSE ÉS HŰTÉSE prémium kategóriás levegő-víz hőszivattyúval történik
Mindezeknek köszönhetően az ingatlan fenntartási költsége minimális.

A Homokkert a város kedvelt körzete, mivel a Belváros tömegközlekedéssel, autóval, de
akár gyalog is könnyen elérhető.
CSOK+, Támogatott hitel igénybe vehető!

Térkép

Ingatlan adásvétel ügyvédi díja
600 000 Ft
a hirdetésben szereplő ár alapján
  • A vételár 0,45%-a
  • Szerződéscsomag teljeskörű képviselettel
  • Ingyenes tulajdoni lap ellenőrzés
  • Az ÁFA-t már tartalmazza
Érdekel az ajánlat →
A tájékoztatás nem teljes körű és nem minősül ajánlattételnek. Minimum díj: 150 000 Ft, maximum díj: 600 000 Ft. A díj kizárólag lakóingatlan adásvételére vonatkozik.

A hirdető elérhetősége

Otthon Centrum - Debrecen - Hatvan utca

Koroknainé Erzsébet
+36 70 461