Eladó Ház- házrész
Hirdetéskód: 9296849

Füredi Kapu (DunaHouse)

Felújításhoz személyi kölcsönt keres? Kalkuláljon itt! →
88.00 m2
ALAPTERÜLET
4
SZOBASZÁM
nincs megadva
ÉPÍTÉS
nincs megadva
FŰTÉS
  • CSOK igénybe vehető nem
  • Tetőtér beépíthető nem
  • Építés éve 2026
  • Klíma nem
  • Szigetelt nem
Energetikai besorolás: Nincs meghatározva
A+++
A++
A+
A
B
C
D
E
F
G
H
I

Az MBH Bank személyi kölcsön ajánlata

Fizetett hirdetés
1 millió Ft
6 évre
20 585 Ft/hó
THM: 14.5%
Részletek →
2 millió Ft
6 évre
41 169 Ft/hó
THM: 14.5%
Részletek →
3 millió Ft
6 évre
61 754 Ft/hó
THM: 14.5%
Részletek →

A tájékoztatás nem teljes körű és nem minősül ajánlattételnek.

Az ingatlan leírása

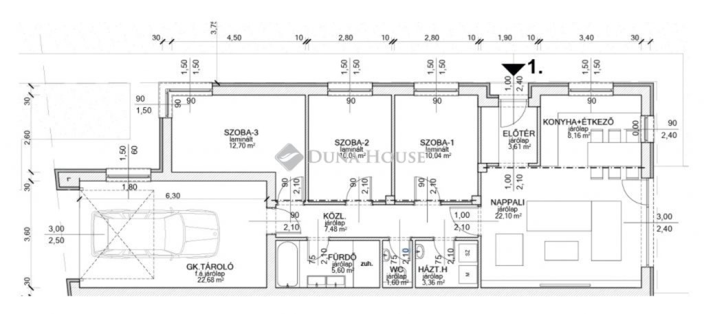
Debrecen Tócóligetben ikerházas projekt épül.A ház egy szintes, 84 nm-es, nappali + 3 szobával rendelkezik, + 20 nm-es garázs, + terasz.A 2 ingatlan elválasztó falazata dupla, így az áthallás le redukálódik a nullára.Minden lakás saját 440 nm-es telken helyezkedik el, nincsenek közös részek, utcafrontról egyedileg megközelíthető.Műszaki paraméterek:- 30-as tégla falazat- szigeteléssel- gázcirkó fűtéssel, padlózati leosztással- 2 db inverteres klíma- aranytölgy színű homlokzati nyílászárók és garázskapu- választható burkolatok.Kulcsrakész átadás várható ideje: 2026. 06. 30.További kérdéseivel kapcsolatban várom hívását!

Térkép

A hirdető elérhetősége

Füredi Kapu (DunaHouse)

Dr. Kocsár Janka Ildikó
+36 30 205